| Číslo zakázky: | 228541 | ![]() Karta nemovitosti |
|---|---|---|
| Typ zakázky: | pronájem |
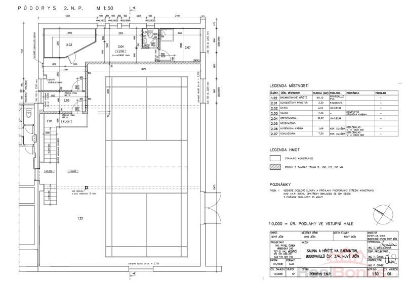
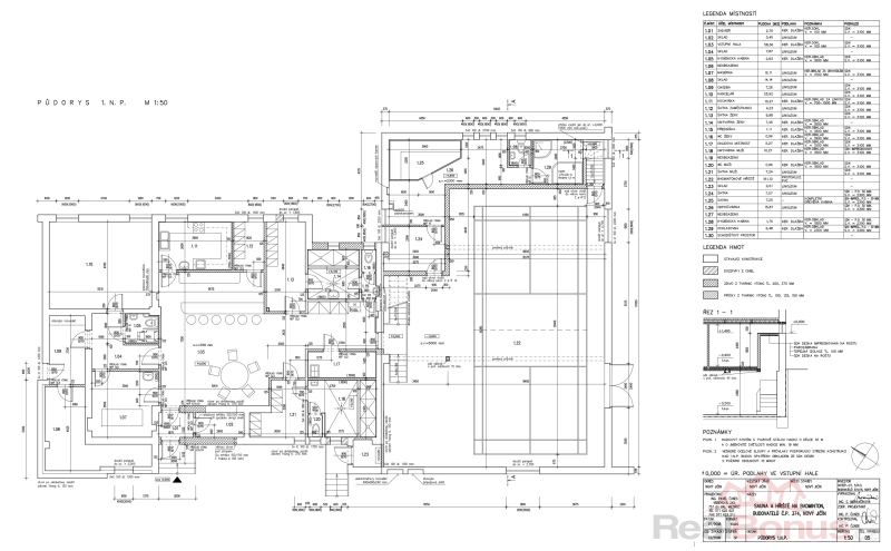
Nabízíme k dlouhodobému pronájmu samostatný objekt, který se nachází na sídlišti v Novém Jičíně. Aktuálně je zde v provozu sportoviště s badmintonovým kurtem, dvěma saunami, barem a venkovní zahrádkou. Nemovitost lze využít jako sklad, showroom, výrobnu, obchodní prostory.
V budově se nachází samostatný bar s vlastním výčepem, kapacita cca 30 míst k sezení. Dále je zde badmintonové hřiště s posezením, dvě šatny se sociálním zařízením, dvě samostatné finské sauny (sauna, relaxační místnost, šatna, ochlazovací prostor, sprcha, toaleta), kuchyňka využívaná jako kancelář, sklady, úklidová místnost. V další části budovy se pak nachází kancelář, sociální zařízení, skladový prostor, tato část je bezbariérová. Budova byla v roce 2008 kompletně zrekonstruovaná (objekt byl původně využíván jako výměníková stanice) a z části zateplená, topení je zajištěno plynovým kotlem.
Možnost převzít provoz sportoviště, saun a baru nebo využít k jinému podnikatelskému záměru.
| Cena: |
(za měsíc) 40 000,- Kč
(+ energie (převod na nájemce)
jistota dva nájmy
provize 40.000 ,- Kč)
|
|---|
| Počet podlaží objektu | 2 |
|---|---|
| Druh objektu | cihlová |
| Stav objektu | velmi dobrý |
| Energetická třída | G - Mimořádně nehospodárná |
| Vlastnictví | osobní |
| Topení | Lokální - plynové |
| Doprava | vlak silnice MHD autobus |
| Voda | dálkový vodovod |
| Odpad | Městská kanalizace |
| Plyn | Zaveden |
| Rok rekonstrukce | 2 008 |
| Celková plocha | 437 m² |
| Účel budovy | Jiný |
| Sociální zařízení | ano |
| Užitná plocha | 500 m² |
| K dispozici od | 01.05.2025 |
