| Číslo zakázky: | 234705 | ![]() Karta nemovitosti |
|---|---|---|
| Typ zakázky: | prodej |
Vyjímečná vila k rekonstrukci v Praze 4 - Braník | stavební povolení, DSP, nová střecha, nová okna, potenciál výrazného rozšíření**
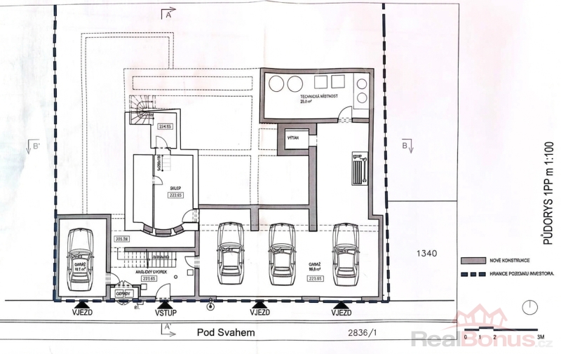
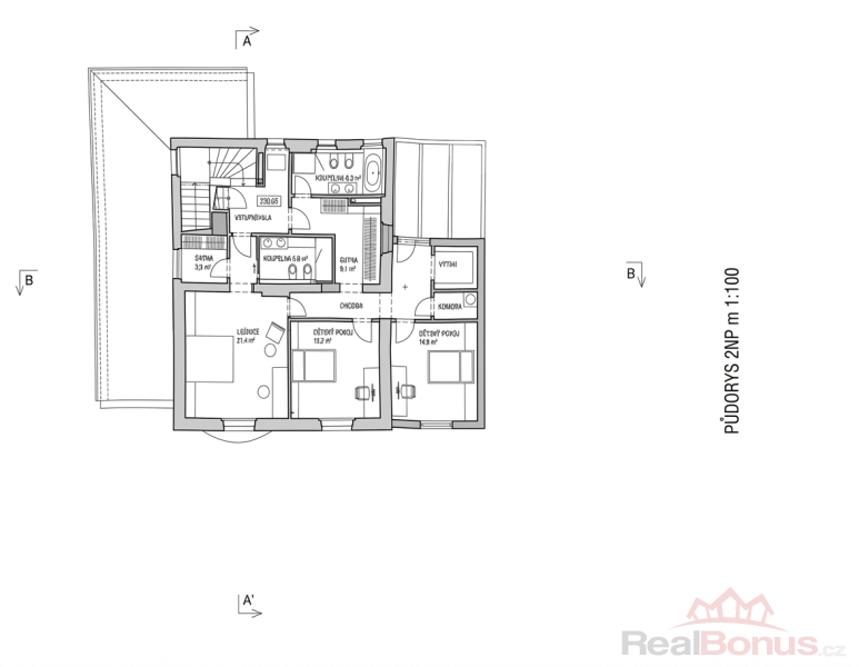
Nabízíme ke koupi vilu k celkové rekonstrukci ve vyhledávané lokalitě Praha 4 - Braník, ulice Pod Svahem. Objekt má aktuální užitnou plochu cca 250 m2; a zastavěnou plochu 271 m2;. V rámci připravené rekonstrukce lze užitnou plochu výrazně rozšířit, a to včetně řešení parkování až pro 5 automobilů. Na domě již byla provedena výměna střechy, výměna oken a sanace suterénu. K dispozici je vydané stavební povolení a kompletní projektová dokumentace DSP. Výjimečná příležitost pro klienta, který hledá reprezentativní bydlení nebo investiční projekt v prestižní pražské čtvrti.
Nabízíme ke koupi vilu s mimořádným potenciálem v jedné z nejžádanějších rezidenčních lokalit Prahy 4 - v Braníku, v ulici Pod Svahem.
Jedná se o samostatně stojící rodinný dům určený k rekonstrukci, který osloví jak zájemce o výjimečné vlastní bydlení, tak investora hledajícího projekt s připraveným administrativním základem a jasnou přidanou hodnotou. Nemovitost stojí na parcele o výměře 271 m2; a dle katastru je vedena jako zastavěná plocha a nádvoří, jehož součástí je rodinný dům č. p. 279.
Objekt má v současné podobě užitnou plochu přibližně 250 m2, přičemž zásadní výhodou je možnost jejího výrazného rozšíření v rámci povolené rekonstrukce. Součástí budoucího řešení může být také parkování až pro 5 automobilů, což je v této části Prahy mimořádně cenný benefit.
Na nemovitosti již byly provedeny důležité a nákladné stavební zásahy:
- výměna střechy,výměna oken, sanace suterénu.
Veškeré ostatní části domu jsou připraveny k dokončení dle záměru nového vlastníka. To umožňuje přizpůsobit finální podobu nemovitosti vlastním představám, ať už půjde o velkorysé rodinné bydlení, vícegenerační užívání, nebo reprezentativní vilu s vysokým standardem.
Velkou přidanou hodnotou celé nabídky je skutečnost, že je již k dispozici **vydané stavební povolení k rekonstrukci objektu** a také **kompletní projektová dokumentace DSP**. Kupující tak získává nejen samotnou nemovitost, ale i významnou úsporu času, energie a administrativních nákladů spojených s přípravou projektu.
Informace k vizualizacím:
Fotografie v inzerátu mohou obsahovat prvky virtuálního homestagingu, digitální retuše nebo úpravy provedené umělou inteligencí. Tyto úpravy slouží k ilustraci možného budoucího uspořádání prostoru nebo k dočasnému odstranění movitého majetku současného vlastníka pro zvýšení přehlednosti. Ubezpečujeme zájemce, že reálné parametry nemovitosti, jako je výměra, stavební prvky a dispozice, nebyly těmito úpravami nijak dotčeny.
| Cena: |
(za nemovitost) 25 000 000,- Kč
(včetně provize a právních služeb) (cena k jednání) (Cena k jednání s vážnými zájemci po prohlídce)
|
|---|
| Druh objektu | cihlová |
|---|---|
| Stav objektu | před rekonstrukcí |
| Energetická třída | G - Mimořádně nehospodárná |
| Vlastnictví | osobní |
| Počet podlaží pod zemí | 1 |
| Vlastní pozemek | 271 m² |
| Vybaveno | Nezařízeno |
| Elektřina | 230 V |
| Voda | dálkový vodovod |
| Odpad | Městská kanalizace |
| Zastavěná plocha | 271 m² |
| Plocha parcely | 271 m² |
| Užitná plocha | 250 m² |
| Poloha objektu | vila |
| K dispozici od | 24.03.2026 |
