Prodej samostatného RD, 180 m2, Čtyřkoly (okres Benešov)

Prodej samostatného RD, 180 m2, Čtyřkoly (okres Benešov)

Nemovitost nabízí:

Jindřich Kuthan
Jindřich Kuthan
Mobil: +420 603 150 646
reality@jindrichkuthan.cz

Kontaktovat makléře

Odeslat
Číslo zakázky: 00032  
Karta
nemovitosti
Typ zakázky: prodej
Prodej rodinného domu s pozemkem 2 111 m2, Čtyřkoly ? Posázaví

Nabízím k prodeji udržovaný rodinný dům s obytným podkrovím a rozlehlým, slunným pozemkem o celkové výměře 2 111 m2 v obci Čtyřkoly, v klidné části Posázaví, jen kousek od řeky Sázavy. Nemovitost je vhodná jak pro trvalé bydlení, tak i pro dvougenerační využití, případně jako rekreační objekt.

Dům byl kolaudován v roce 1902, zásadní rekonstrukce proběhla v roce 1993-1998, včetně vybudování a kolaudace obytného podkroví. Nemovitost je dlouhodobě velmi dobře udržovaná, včetně pečlivě upravené zahrady.

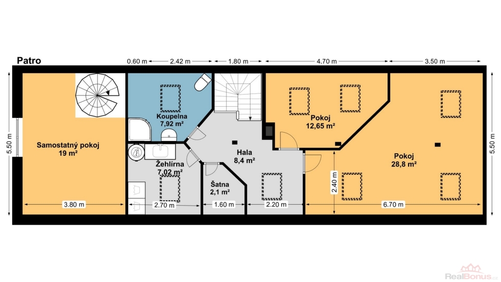
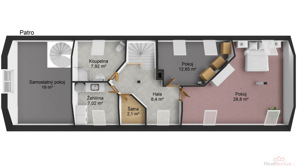
Dispozice
Dispozice domu je rozdělena do dvou podlaží s možností odděleného užívání:
? přízemí: 3+kk včetně samostatného pokoje v podkroví, obytná plocha cca 90 m2
? podkroví: 2+, obytná plocha cca 65 m2
Celková obytná plocha domu činí 155 m2.

Na obytnou část navazují další praktické prostory:
? sklep (přístupný z domu, dvě navazující místnosti): 25 m2
? pracovna, garáž, dílna, altán: 89 m2
Celková užitná plocha (včetně sklepa) činí 114 m2.
Celková plocha všech prostor je 269 m2.

V přízemí se nachází obytný prostor s kuchyní, ložnice, koupelna a chodba. Další točité schodiště je umístěno v pokoji u kuchyně a vede do samostatné obytné místnosti v podkroví. Z chodby u vstupu vede hlavní schodiště do podkroví.
Podkroví dále nabízí dva samostatné pokoje, halu, koupelnu, šatnu a technickou místnost.

Další prostory
- pracovna
- garáž
- dílna s otevřeným krovem (možnost vestavby dalšího obytného nebo mezonetového prostoru)
- navazující krytý altán

Technické informace
? smíšená stavba, obvodové zdivo cca 50-60 cm
? rekonstrukce 1993 (včetně podkroví)
? stropy hurdis + částečně trámové v jedné ploše
? podlahy betonové
? plastová okna (dvojsklo), střešní okna Velux
? zateplení podkroví (cca 18 cm Climatizer)
? střešní krytina bonnský šindel
? elektřina v mědi
? odpady v plastu, napojení na centrální ČOV
? voda: vlastní studna s pitnou vodou + možnost napojení na obecní vodovod
? vytápění: plynový kotel + elektrický kotel, ústřední topení s radiátory
? krb v obytné části
? internet ADSL
Nemovitost se prodává včetně převážné části movitého vybavení (vyjma osobních věcí a drobností).

Pozemek a exteriér
Pozemek o velikosti 2 111 m2 je velmi příjemný, vzdušný a po celý den slunný. Je rozdělen na okrasnou, udržovanou část a volnou travnatou plochu s dalším potenciálem využití.
Na dům navazuje příjemný krytý altán vhodný pro posezení. Praktické zázemí doplňuje garáž a dílna, která díky otevřenému krovu nabízí možnost další vestavby.

Dle územního plánu je pozemek určen pro bydlení v rodinných domech, což umožňuje případné rozšíření stávající stavby nebo realizaci dalších doplňkových objektů. V případě nové výstavby je možné dům nahradit novým při zachování charakteru okolní zástavby.
Maximální zastavitelnost činí přibližně 35 % plochy pozemku, přičemž významná část musí zůstat jako zeleň, což přispívá k zachování vzdušnosti a soukromí.

Lokalita a dostupnost
Obec Čtyřkoly se nachází v oblíbené oblasti Posázaví. V docházkové vzdálenosti od domu je řeka Sázava, která nabízí široké možnosti volnočasových aktivit.
Základní občanská vybavenost je v místě, kompletní služby pak zajišťují nedaleké Čerčany (obchody, restaurace, škola, školka, lékař).

Dopravní dostupnost:
? vlaková zastávka přímo v obci (trať Praha ? Benešov, pravidelné spoje)
? autobusová doprava
? dobrá dostupnost do Prahy (cca 30?40 minut)
? pro dálkové spoje možnost využití Čerčan nebo Benešova

Nemovitost nabízí kombinaci klidného bydlení v přírodě, velkorysého pozemku a variabilního dispozičního řešení s potenciálem dalšího rozšíření. Pro více informací nebo sjednání prohlídky mě neváhejte kontaktovat.

Cena: (za nemovitost)   11 500 000,- Kč
(konečná cena včetně právních služeb, náklady na bydlení cca. 7500 Kč, včetně provize, včetně právního servisu)

Informace o nemovitosti

Počet podlaží objektu2
Celková podlahová plocha269 m²
Druh objektusmíšená
Stav objektudobrý
Počet podlaží pod zemí1
Plocha sklepu25 m²
Vybavenísklep
zahrada
Umístění objektucentrum
TelekomunikaceTelefon
Internet
TopeníÚstřední - plynové
Ústřední - elektrické
Dopravavlak
dálnice
silnice
MHD
autobus
OdpadMěstská kanalizace
ČOV pro celý objekt
PlynZaveden
Rok rekonstrukce1 993
Stáří objektu124
Rok kolaudace2 000
Parkovánígaráž
Počet míst k parkování2
Celková plocha269 m²
Zastavěná plocha225 m²
Plocha parcely2 111 m²
OstatníGaráž
Parkoviště
Užitná plocha180 m²
Počet bytů - celkem1
Nebytové prostory89 m²
Plocha zahrady1 886 m²
Komunikacebetonová
Inženýrské sítěKanalizace
Plyn
Charakter okolní zástavbyobytná
Poloha objektusamostatný
RealBonus.cz

Používáme cookies!

Tyto stránky používají a ukládají soubory cookies. Některé jsou nezbytné pro jejich správné fungování (tzv. technické cookies). Dále tyto stránky využívají marketingové a analytické cookies pro zkvalitnění našich služeb a přizpůsobení zobrazovaného obsahu. Pro jejich využití je nutný Váš souhlas. Více informací o cookies.