| Číslo zakázky: | 234681 | ![]() Karta nemovitosti |
|---|---|---|
| Typ zakázky: | prodej |
Nabízíme k prodeji investiční bytovou jednotku o dispozici 1+1, situovanou ve 3. nadzemním podlaží bytového domu v atraktivní lokalitě Praha - ulice Lidická.
Byt představuje zajímavou investiční příležitost se stabilním výnosem - aktuálně je pronajat s měsíčním nájemným 19 000 Kč. Nový majitel tak může okamžitě generovat příjem bez nutnosti hledání nájemníka.
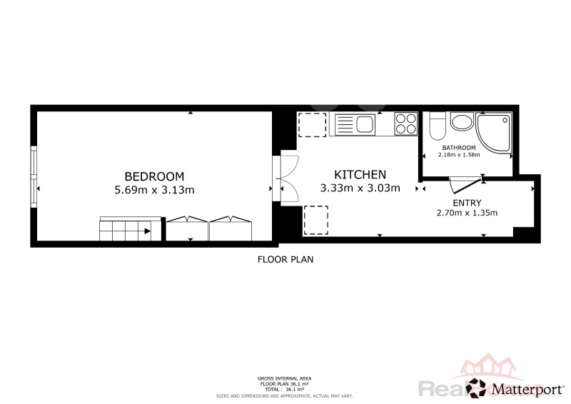
Celková užitná plocha činí 35,1 m² + 8,3 m² spací patro, které efektivně rozšiřuje obytný prostor. K jednotce dále náleží sklep v přízemí o velikosti 4,5 m² s oknem, vhodná například jako ateliér, pracovna nebo další pronajímatelný prostor.
Dispozice bytu (samostatný pokoj + samostatná kuchyň) je dlouhodobě velmi žádaná jak pro dlouhodobý pronájem, tak i pro krátkodobé ubytování.
Praktické uspořádání zvyšuje atraktivitu pro široké spektrum nájemníků.
Lokalita Lidická patří mezi vysoce poptávané adresy širšího centra Prahy, a to díky výborné dostupnosti i kompletní občanské vybavenosti. V bezprostředním okolí se nachází tramvajové zastávky, stanice metra, restaurace, obchody i kulturní vyžití.
Tato poloha zajišťuje dlouhodobě silnou poptávku po nájemním bydlení i krátkodobých pobytech. Další přidanou hodnotou je probíhající výstavba výtahu, která může pozitivně ovlivnit budoucí hodnotu nemovitosti i atraktivitu pro nájemníky.
Shrnutí:
-dispozice 1+1 (samostatný pokoj + samostatná kuchyň)
-3.nadzemní podlaží
-plocha: 35,1 m² + 8,3 m² patro + 4,5 m² sklep
-aktuální nájemné: 19 000 Kč / měsíc
-vhodné pro dlouhodobý i krátkodobý pronájem
-probíhající výstavba výtahu
-prémiová lokalita s vysokou poptávkou
| Cena: |
(za nemovitost) 6 750 000,- Kč
(včetně provize a právních služeb) (cena k jednání) (vč. provize a právního servisu)
|
|---|
| Dispozice bytu | 1+1 |
|---|---|
| Číslo podlaží v domě | 3 |
| Počet podlaží objektu | 5 |
| Celková podlahová plocha | 35 m² |
| Druh objektu | cihlová |
| Stav objektu | dobrý |
| Energetická třída | G - Mimořádně nehospodárná |
| Vlastnictví | osobní |
| Výška stropu | 340 mm |
| Plocha sklepu | 4 m² |
| Bezbariérový byt | ano |
| Vybavení | sklep |
| Umístění objektu | centrum |
| Telekomunikace | Telefon Internet Vedení PC sítě |
| Vybaveno | Částečně zařízeno |
| Topení | Lokální - elektrické |
| Doprava | vlak dálnice silnice MHD autobus |
| Elektřina | 230 V |
| Voda | zdroj pro celý objekt |
| Odpad | Městská kanalizace |
| Občanská vybavenost | Škola Školka Zdravotnická zařízení Pošta Supermarket Kompletní síť obchodů a služeb Restaurace Místní úřad Kulturní zařízení Koupaliště |
| Stáří objektu | 1 919 |
| Bytové jádro | Zděné |
| Parkování | venkovní stání |
| Užitná plocha | 35 m² |
| K dispozici od | 20.05.2026 |




