| Číslo zakázky: | 28106 | ![]() Karta nemovitosti |
|---|---|---|
| Typ zakázky: | pronájem |
+popl. 6200, , Hledáte unikátní, opravdu prostorné bydlení? Tohle vás bude zajímat takových bytů na Vysočině mnoho nenajdete.
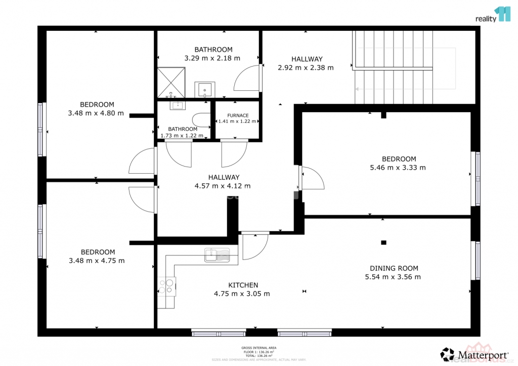
V exkluzivním zastoupení obce Příseka nabízíme k pronájmu kompletně nový obecní byt o dispozici 4+kk s velkorysou užitnou plochou 136 m. Tato nabídka zaujme především ty, kteří hledají klidné a komfortní bydlení s dostatkem prostoru, ale zároveň chtějí mít na dosah veškeré potřebné zázemí pro každodenní život.
Velkou výhodou je blízkost nedaleké Světlé nad Sázavou, kde najdete kompletní občanskou vybavenost mateřskou i základní školu, obchody, supermarkety, lékaře, lékárnu, restaurace, kavárny, poštu i další služby. Díky tomu zde můžete bydlet v příjemném a klidném prostředí menší obce, aniž byste se museli vzdát pohodlí městského zázemí.
Nájemné je stanoveno ve výši 15 000 Kč za měsíc, vratná kauce činí 30 000 Kč. Měsíční záloha na elektrickou energii činí 6 200 Kč v návaznosti na vytápění, které je řešeno elektrickými radiátory. Poplatek za likvidaci odpadu je stanoven ve výši 900 Kč za osobu ročně. Vodné a stočné se nehradí formou záloh, ale budou vyúčtovány jednou za půl roku dle skutečné spotřeby, a to dle následujících sazeb: vodné 45 Kč za m a stočné 30 Kč za m. Při podpisu nájemní smlouvy hradí zájemce provizi realitní kanceláři.
Tento byt představuje skvělou příležitost pro ty, kteří hledají nové, prostorné a pohodlné bydlení v lokalitě, která spojuje klid venkova s výhodami města na dosah. Ev. číslo: 28106. Energetický štítek: G
| Cena: |
(za měsíc) 15 000,- Kč
(+popl. 6200)
|
|---|
| Dispozice bytu | 4+kk |
|---|---|
| Číslo podlaží v domě | 3 |
| Počet podlaží objektu | 3 |
| Celková podlahová plocha | 136 m² |
| Druh objektu | smíšená |
| Stav objektu | velmi dobrý |
| Energetická třída | G - Mimořádně nehospodárná |
| Vlastnictví | osobní |
| Vybaveno | Nezařízeno |
| Užitná plocha | 136 m² |




