| Číslo zakázky: | 2218 | ![]() Karta nemovitosti |
|---|---|---|
| Typ zakázky: | pronájem |
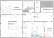
**Pronájem bytu 2+1, 63 m and sup2;, balkon Praha 8, Kobylisy, ul. Bojasova 19**
Nabízíme k pronájmu světlý a prostorný byt o dispozici 2+1 a výměře 63 m and sup2;, situovaný ve 3. patře udržovaného domu s výtahem v klidné části Prahy 8 Kobylisy. Byt disponuje balkonem a nabízí příjemné bydlení s dobrou dostupností do centra i plnou občanskou vybaveností v okolí.
### Základní informace:
* Dispozice: 2+1
* Plocha: 63 m and sup2;
* Balkon
* 3. patro s výtahem
* Klidná lokalita
### Cena:
* Nájemné: 22 800 Kč / měsíc
* Poplatky: 5 000 Kč / měsíc
* Elektřina a plyn: přepis na nájemce
* Kauce: 41 775 Kč
* Provize RK: 27 800 Kč
### Lokalita a občanská vybavenost:
Byt se nachází v oblíbené rezidenční lokalitě Praha 8 Kobylisy, která nabízí ideální kombinaci klidného bydlení a výborné dostupnosti do centra.
* Metro C Kobylisy v docházkové vzdálenosti
* Zastávky tramvají a autobusů v blízkosti domu
* Supermarkety (např. Lidl, Albert, Billa) a menší obchody
* Restaurace, kavárny a služby v okolí
* Školy, školky a dětská hřiště
* Poliklinika Kobylisy a lékárny
* Blízkost přírody Ďáblický háj, Čimický háj, vhodné pro procházky i sport
### Dostupnost:
* Volné ihned / dle dohody
**Kontakt**
Realitní kancelář: Můj domov REALITY s.r.o.
Makléřka: Lidiya Savynets
WhatsApp / Viber / Telegram: @LidiyaSyvynets
V případě zájmu o více informací nebo sjednání prohlídky nás neváhejte kontaktovat.
| Cena: | (za měsíc) 22 800,- Kč |
|---|
| Dispozice bytu | 2+1 |
|---|---|
| Číslo podlaží v domě | 2 |
| Počet podlaží objektu | 5 |
| Celková podlahová plocha | 63 m² |
| Druh objektu | smíšená |
| Stav objektu | dobrý |
| Vlastnictví | osobní |
| Druh bytu | v panelovém domě |
| Počet podlaží pod zemí | 1 |
| Vybavení | výtah |
| Umístění objektu | klidná část obce |
| Vybaveno | Částečně zařízeno |
| Topení | Ústřední - dálkové |
| Užitná plocha | 63 m² |
| Druh stavby | budova/y, hala/y |
| Poloha objektu | v bloku |




