| Číslo zakázky: | 2026003 | ![]() Karta nemovitosti |
|---|---|---|
| Typ zakázky: | prodej |
Nabízíme k prodeji rozměrný rodinný dům v klidné části obce Tatenice, situovaný na mimořádně velkorysém pozemku o výměře 5 457 m2. Dům byl postaven v 80. letech a díky své dispozici, technickému zázemí i rozsahu pozemku představuje zajímavou příležitost pro rodinné bydlení i budoucí rozvoj.
Dům má tři podlaží a celková podlahová plocha činí přibližně 313 m2. Součástí je také terasa o výměře cca 19 m2 a tři balkony o celkové ploše cca 5 m2. Nemovitost je v původním, průměrném technickém stavu a je určena spíše k modernizaci, což novému majiteli umožní upravit si dům přesně podle vlastních představ.
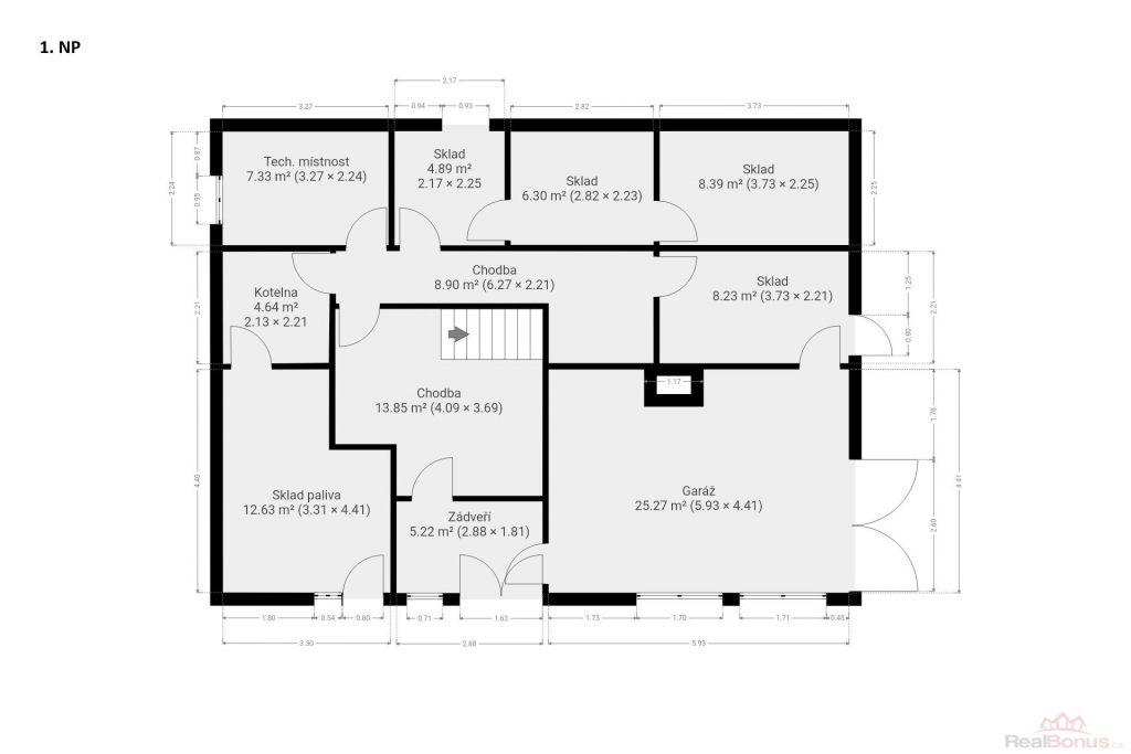
Dispozice domu
1. nadzemní podlaží tvoří především technické a hospodářské zázemí domu. Nachází se zde prostorná garáž, kotelna, technická místnost, několik skladů, prostor pro palivo, zádveří a chodby. Toto podlaží nabízí velké množství úložných a provozních ploch, které u rodinného domu ocení každý, kdo potřebuje místo pro dílnu, skladování, hobby nebo sezonní vybavení.
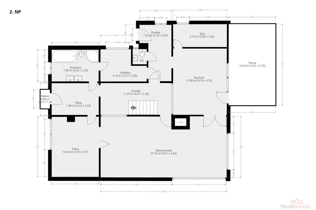
2. nadzemní podlaží slouží jako hlavní obytné patro. Dominantou je velkorysý obývací pokoj o ploše přes 37 m2, který přirozeně tvoří centrum rodinného života. Na něj navazuje kuchyně se spíží a přímým vstupem na terasu, což vytváří velmi praktické propojení interiéru s venkovním prostorem. Dále je zde samostatný pokoj, koupelna, šatna, prádelna, samostatné WC a centrální chodba se schodištěm.
3. nadzemní podlaží představuje klidovou zónu domu. Nacházejí se zde tři samostatné pokoje, další koupelna, samostatné WC, dva sklady a prostorná centrální chodba. Dva pokoje mají přístup na balkon. Toto patro nabízí dostatek soukromí pro ložnice, dětské pokoje i pracovnu a dobře odpovídá potřebám větší rodiny.
Technické informace
Dům je napojen na elektřinu, plyn, vodovod i kanalizaci. Vytápění je možné plynovým kotlem nebo kotlem na tuhá paliva. Ohřev vody zajišťuje bojler.
Pozemek a další potenciál
Jedním z hlavních benefitů této nabídky je rozsáhlý pozemek o výměře 5 457 m2, který nabízí dostatek prostoru pro zahradu, odpočinek, hospodářské využití i další budoucí záměry. V horní části pozemku se nachází další stavba stodoly ve špatném technickém stavu. Po jejím odstranění a po prověření záměru na příslušných úřadech se zde nabízí zajímavý potenciál pro vznik další stavební parcely s přístupem z horní strany pozemku.
Pro koho je dům vhodný
Nemovitost je ideální pro rodinu, která hledá prostorné bydlení v klidné lokalitě, ocení velké technické zázemí domu a zároveň vidí potenciál v postupné modernizaci. Dům zaujme i zájemce, kteří hledají kombinaci soukromí, velkého pozemku a možnosti dalšího využití do budoucna.
| Cena: | (za nemovitost) 5 995 000,- Kč |
|---|
| Počet podlaží objektu | 3 |
|---|---|
| Druh objektu | cihlová |
| Stav objektu | dobrý |
| Energetická třída | G - Mimořádně nehospodárná |
| Plocha balkonu | 5 m² |
| Plocha teras | 19 m² |
| Vybavení | balkon terasa |
| Umístění objektu | centrum |
| Ostatní rozvody | Satelit |
| Topení | Lokální - tuhá paliva Ústřední - plynové Ústřední - tuhá paliva |
| Doprava | vlak silnice autobus |
| Voda | dálkový vodovod |
| Odpad | Městská kanalizace |
| Plyn | Zaveden |
| Stáří objektu | 46 |
| Parkování | garáž |
| Zastavěná plocha | 182 m² |
| Plocha parcely | 5 457 m² |
| Ostatní | Garáž |
| Užitná plocha | 263 m² |
| Komunikace | dlážděná |
| Inženýrské sítě | Vodovod Kanalizace Plyn |
| Charakter okolní zástavby | obytná |
| Poloha objektu | samostatný |




