| Číslo zakázky: | 234751 | ![]() Karta nemovitosti |
|---|---|---|
| Typ zakázky: | prodej |
Dovolujeme si vám nabídnout dva apartmány: 1+kk: Nabízíme k prodeji moderní apartmánový byt situovaný v 2NP revitalizovaného bytového domu s výtahem, který se nachází v malebném podhorském městě Vrbno pod Pradědem. Dům je energeticky nenáročný a poskytuje svým obyvatelům komfortní a úsporné bydlení v těsné blízkosti přírody. Apartmán je orientovaný na západ, díky čemuž nabízí krásné výhledy na okolní přírodu a dokonalé večerní atmosféry na prostorné z části kryté střechou terase. Interiér je nadčasově a velmi kvalitně vybaven, a to včetně moderního systému podlahového vytápění s možností dálkového ovládání. Stejně tak je i vstup do apartmánu řešen chytrým kódovým zámkem, ideálním v případě využití nemovitosti k rekreačním pronájmům. Stejně tak i k trvalému bydlení.
Předsíň - s vestavnými skříněmi a botníkem
Koupelna s WC - sprchový kout, elektrický žebřík, místo pro pračku a bojler
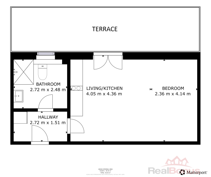
Obývací pokoj a kuchyňský kout - skříňky na míru, stůl a rozkládací sedací souprava, vstup na terasu, dominantou pokoje je manželská postel, nad kterou je střešní okno. Plně vybavená kuchyňská linka (vestavná kombinovaná mikrovlnná trouba s grilem, myčka, varná deska, odsavač par). Celková kapacita apartmánu je až 4 osoby, popřípadě lze přidat i přistýlku, což představuje ideální příležitost pro investici do rekreačního bydlení v oblíbené lokalitě Jeseníků.
A 2+kk: 1NPpodlaží revitalizovaného bytového domu z bezbariérovým , který se nachází v malebném podhorském městě Vrbno pod Pradědem. Dům je energeticky nenáročný a poskytuje svým obyvatelům komfortní a úsporné bydlení v těsné blízkosti přírody. Interiér je nadčasově a velmi kvalitně vybaven, a to včetně moderního systému podlahového vytápění s možností dálkového ovládání. Stejně tak je i vstup do apartmánu řešen chytrým kódovým zámkem, ideálním v případě využití nemovitosti k rekreačním pronájmům.
Předsíň - s vestavnými skříněmi a botníkem
Koupelna s WC - sprchový kout, elektrický žebřík, prostor pro pračku a bojler
Obývací pokoj - rozkládací sedací souprava, sklopná zabudovaná postel
Kuchyňský kout - plně vybavená kuchyňská linka (vestavná mikrovlnná trouba, myčka, varná deska, odsavač par) a rozkládací jídelní stůl
Ložnice - velká manželská postel, sklopná postel a přístup na balkon
Celková kapacita apartmánu je až 5 lůžek, což představuje ideální příležitost pro investici do rekreačního bydlení v oblíbené lokalitě Jeseníků. Velikost je 42m2, balkon 7m2, sklep 3m2. V blízkosti nemovitosti se nachází fungující restaurace, kde lze zajistit stravování pro hosty při pronájmu apartmánu. Tento apartmán je perfektní volbou pro ty, kteří hledají kombinaci moderního bydlení, chytrých technologií a nádherné přírodní scenerie - ať už pro vlastní rekreaci nebo jako investici s vynikajícím potenciálem. Náklady na bydlení jsou 1895kč a elektřina dle spotřeby. K apartmánu náleží sklepní koje a možnost parkování před domem. Nemovitost má vlastní webové stránky a je plně řízená systémem JABLOTRON. Ve městě Vrbno pod Pradědem
| Cena: |
(za nemovitost) 6 600 000,- Kč
(včetně provize a právních služeb) (cena k jednání)
|
|---|
| Dispozice bytu | 1+kk |
|---|---|
| Počet podlaží objektu | 2 |
| Druh objektu | smíšená |
| Stav objektu | velmi dobrý |
| Energetická třída | C - Úsporná |
| Vlastnictví | osobní |
| Počet podlaží pod zemí | 1 |
| Vlastní pozemek | 1 720 m² |
| Vybavení | balkon terasa sklep |
| Umístění objektu | klidná část obce |
| Telekomunikace | Internet |
| Ostatní rozvody | Kabelová televize Kabelové rozvody Ostatní rozvody |
| Topení | Ústřední - elektrické Ústřední - dálkové |
| Doprava | vlak silnice autobus |
| Elektřina | 230 V |
| Voda | dálkový vodovod |
| Odpad | Městská kanalizace |
| Rok rekonstrukce | 2 024 |
| Parkování | venkovní stání |
| Zastavěná plocha | 828 m² |
| Plocha parcely | 1 720 m² |
| Ostatní | Bezbariérový přístup Parkoviště Sociální zařízení |
| Užitná plocha | 79 m² |
| Plocha zahrady | 892 m² |
| Poloha objektu | samostatný |
| Typ zařízení | Penzion |
| K dispozici od | 31.03.2026 |




