| Číslo zakázky: | 16829 | ![]() Karta nemovitosti |
|---|---|---|
| Typ zakázky: | pronájem |
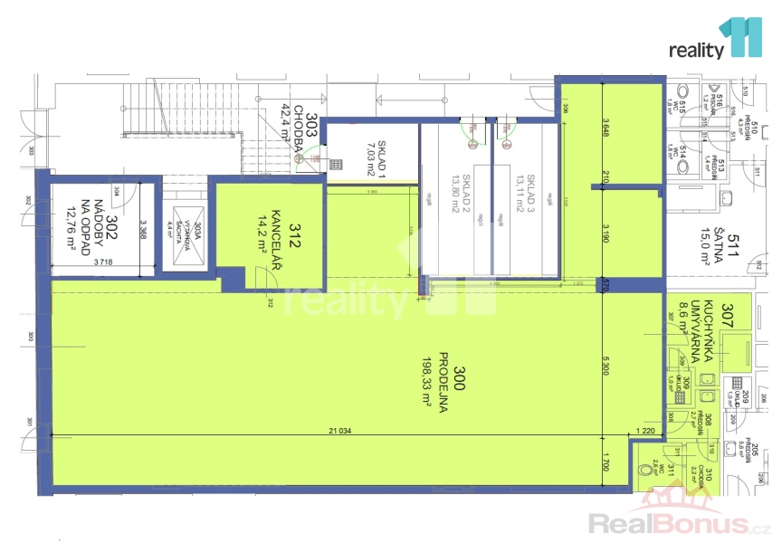
+popl. 7000, , Reality 11 Vám zprostředkují pronájem skladu/ prodejny / dílny v areálu Dvorana. Nyní platí akční sleva na celý první rok pronájmu. Jedná se o prostor v přízemí, který lze využít jako např. prodejnu, dílnu či sklad. Prostor je o velikosti 213m a disponuje vlastním sociálním zázemím, sprchou, kuchyňkou a kanceláří o velikosti 14 m. Prostor má vlastní vstup a velká vrata k možnosti vjezdu. Umístění reklamy nad vstupními dveřmi, ale i na informačních cedulích u hlavní silnice. Prostor je hned u vjezdové brány do areálu. Prostor je velmi prostorný. Vytápění objektu zajišťuje plynový kotel. Parkování přímo před prostorem. Zajištěny veškeré služby - odpad, požární ochrana, zabezpečení PCO, úklid spol. prostor. Možnost rychlého internetu a pevných telefonních linek. Zastávka autobusu 50m, vlaková stanice 200m. Určitě doporučujeme prohlídku tohoto prostoru. Ev. číslo: 16829. Energetický štítek: B
| Cena: |
(za měsíc) 25 000,- Kč
(+popl. 7000)
|
|---|
| Druh objektu | cihlová |
|---|---|
| Stav objektu | velmi dobrý |
| Energetická třída | B - Velmi úsporná |
| Vybaveno | Nezařízeno |
| Počet míst k parkování | 3 |
| Užitná plocha | 213 m² |
| Druh prostor | Skladovací |
