| Číslo zakázky: | 234647 | ![]() Karta nemovitosti |
|---|---|---|
| Typ zakázky: | prodej |
Představte si ráno s kávou na lodžii, klid, světlo a prostor, kde se budete cítit opravdu doma. Tento moderní byt v oblíbené lokalitě Praha - Letňany vám přesně takový pocit nabídne.
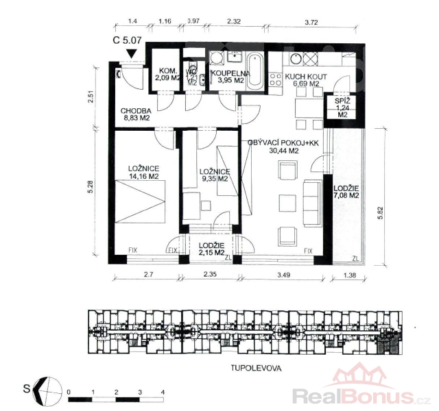
Nabízíme k prodeji světlý a velmi příjemný byt o dispozici 3+kk a celkové ploše 76,83 m², který se nachází v moderní novostavbě z roku 2019 na adrese Tupolevova, Praha 9 - Letňany.
Dominantou bytu je prostorný obývací pokoj s kuchyňským koutem a jídelní částí, který tvoří přirozené centrum celého bytu. Díky velkým oknům a přístupu na lodžii je prostor krásně prosvětlený a působí velmi vzdušně.
Kuchyňská linka je řešena v moderním designu s důrazem na praktičnost a každodenní komfort. Dispozice bytu nabízí dva samostatné pokoje, ideální jako ložnice a dětský pokoj nebo pracovna.
Velkým benefitem jsou dvě lodžie, které rozšiřují obytný prostor a poskytují ideální místo pro relaxaci - ať už ráno u kávy nebo večer po práci.
Součástí prodeje je garážové stání přímo v domě, které zajišťuje maximální komfort a bezpečné parkování bez kompromisů.
Byt je ve velmi dobrém stavu a připraven k okamžitému užívání s možností drobných úprav dle vlastních představ.
Lokalita Letňany nabízí kompletní občanskou vybavenost - školy, školky, obchody, restaurace i výbornou dopravní dostupnost do centra Prahy.
V dané kategorii novostaveb a lokalitě se jedná o velmi zajímavou nabídku, která spojuje moderní bydlení, praktičnost a dlouhodobou hodnotu.
Byt je vybaven integrovanou klimatizací a systémem cirkulace vzduchu, který zajišťuje optimální vnitřní klima v průběhu celého roku. K vysokému standardu bydlení přispívají také kvalitní zvukově izolační okna, která poskytují maximální klid a soukromí.
Tento byt nabízí kombinaci komfortu, prostoru a příjemné atmosféry, kterou je nejlepší zažít osobně.
✔ novostavba z roku 2019
✔ dispozice 3+kk, 76,83 m²
✔ 2 lodžie
✔ garážové stání v domě
✔ praktické dispoziční řešení
✔ světlý a vzdušný interiér
✔ výborná dostupnost do centra
✔ ideální pro vlastní bydlení i investici
Pro více informací nebo sjednání prohlídky mě neváhejte kontaktovat.
Prohlídky již probíhají a o tento typ bytu je v této lokalitě dlouhodobě vysoký zájem.
Doporučuji domluvit si termín co nejdříve.
Ráda vám byt osobně představím - stačí zavolat nebo napsat a ráda se vám budu věnovat.
| Cena: |
(za nemovitost) 12 235 000,- Kč
(včetně provize a právních služeb) (cena k jednání) ((včetně garážového stání))
|
|---|
| Dispozice bytu | 3+kk |
|---|---|
| Číslo podlaží v domě | 4 |
| Počet podlaží objektu | 4 |
| Celková podlahová plocha | 76 m² |
| Druh objektu | cihlová |
| Stav objektu | dobrý |
| Energetická třída | C - Úsporná |
| Vlastnictví | osobní |
| Počet podlaží pod zemí | 1 |
| Lodžie | 9 m² |
| Vybavení | výtah lodžie |
| Vybaveno | Částečně zařízeno |
| Topení | Ústřední - dálkové |
| Doprava | MHD autobus |
| Elektřina | 230 V |
| Voda | dálkový vodovod |
| Odpad | Městská kanalizace |
| Občanská vybavenost | Škola Školka Pošta Supermarket Kompletní síť obchodů a služeb Restaurace Kulturní zařízení Koupaliště |
| Stáří objektu | 2 019 |
| Rok kolaudace | 2 019 |
| Bytové jádro | Zděné |
| Parkování | garáž |
| Počet míst k parkování | 1 |
| Užitná plocha | 71 m² |




