| Číslo zakázky: | 26-01-054 | ![]() Karta nemovitosti |
|---|---|---|
| Typ zakázky: | pronájem |
Místo pro váš nový začátek!
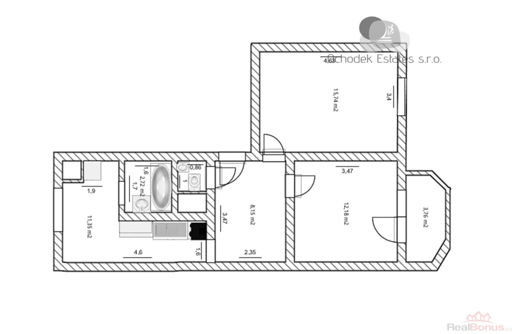
Byt o dispozici 2+1 je připraven být tím pravým místem pro vaši novou kapitolu života. Bude se vám tu dobře žít, je moderně zrekonstruovaný, v blízkosti máte kompletní občanskou vybavenost i prostor pro procházky.
Byt o výměře 54m2 v druhém patře prošel před pěti lety kompletní rekonstrukcí zahrnující novou koupelnu i WC, nová kuchyňská linka, podlahy, elektřina, dveře včetně zárubní. Nyní je pro vás i čistě vymalovaný na bílo.
Jsou zde dva neprůchozí pokoje z nichž je jeden i s velkým balkonem orientovaným na jižní stranu. A díky vzrostlým stromům se na něm ani v horkém létě neupečete. Kuchyň je dělaná na míru včetně skříňové spíže. Koupelna je upravena tak, aby tu bylo i místo na velkou pračku.
Po domluvě je možné uvolnit i sklep.
Dům je klidný, po renovaci, zateplený, plastová okna, opravené stupačky. Parkování na ulici.
Měsíční nájem 12.500Kč
Poplatky + energie cca 4.000Kč
Kauce 20.000Kč
Zprostředkovatelský poplatek 20.000Kč (1 nájem+energie+DPH)
Projděte si byt virtuální prohlídkou a ozvěte se na prohlídku. Ráda vás tu provedu.
| Cena: |
(za měsíc) 12 500,- Kč
(20.000Kč kauce, 20.000Kč zprostředkovatelský poplatek)
|
|---|
| Dispozice bytu | 2+1 |
|---|---|
| Číslo podlaží v domě | 2 |
| Počet podlaží objektu | 8 |
| Celková podlahová plocha | 54 m² |
| Druh objektu | panelová |
| Stav objektu | po rekonstrukci |
| Energetická třída | C - Úsporná |
| Vlastnictví | osobní |
| Počet podlaží pod zemí | 1 |
| Plocha balkonu | 4 m² |
| Vybavení | balkon |
| Umístění objektu | klidná část obce |
| Odpad | Městská kanalizace |
| Plyn | Zaveden |
| Užitná plocha | 54 m² |




