| Číslo zakázky: | 28122 | ![]() Karta nemovitosti |
|---|---|---|
| Typ zakázky: | prodej |
, Hledáte byt v Ledči nad Sázavou, kam se můžete rovnou nastěhovat bez dalších investic a každý den si užívat krásné bydlení?
Nabízíme k prodeji byt o dispozici 2+1 v ulici Na Sibiři v Ledči nad Sázavou, který nabízí příjemné a prakticky řešené bydlení.
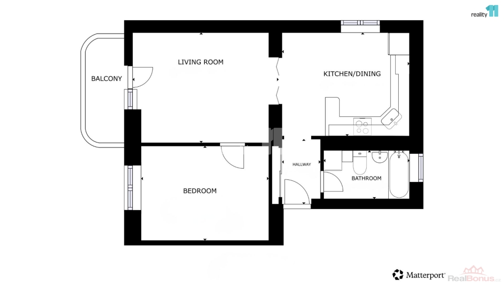
Dispozice bytu je navržena tak, aby nabídla pohodlné a praktické bydlení na užitné ploše 47,3 m. Najdete zde vstupní chodbu, koupelnu s WC, prostornou kuchyni, obývací pokoj i samostatnou ložnici, takže každý prostor má své jasné využití. Příjemným benefitem je také balkón o velikosti 4 m, kde si můžete dopřát čerstvý vzduch a chvíle klidu kdykoliv během dne. K bytu dále náleží dva sklepy o velikosti 5,05 m a 1,40 m, které nabídnou dostatek úložného prostoru pro všechny vaše potřeby. Za domem navíc najdete dostatek parkovacích míst, což vám výrazně usnadní každodenní fungování.
Ledeč nad Sázavou leží v srdci Vysočiny a nabízí ideální kombinaci klidného bydlení a kompletní občanské vybavenosti. Najdete zde mateřské i základní školy, obchody, lékaře, restaurace i sportovní zázemí. Okolí města je doslova protkané krásnou přírodou ať už se vydáte na cyklostezku podél řeky Sázavy, vyrazíte na procházku do přírodní rezervace Stvořidla, nebo se projdete na vrchol Melechov, vždy budete mít přírodu na dosah ruky. Dominantou města je navíc hrad, který dotváří jedinečnou atmosféru celého místa.
K dispozici máme také 3D virtuální prohlídku, díky které si můžete byt projít z pohodlí domova. Na vyžádání ji velmi rádi zašleme.
Zaujal vás tento byt?
Neváhejte mě kontaktovat. Ev. číslo: 28122. Energetický štítek: D
| Cena: | (za nemovitost) 3 490 000,- Kč |
|---|
| Dispozice bytu | 2+1 |
|---|---|
| Číslo podlaží v domě | 1 |
| Počet podlaží objektu | 3 |
| Celková podlahová plocha | 47 m² |
| Druh objektu | cihlová |
| Stav objektu | velmi dobrý |
| Energetická třída | D - Méně úsporná |
| Vlastnictví | osobní |
| Vybavení | balkon |
| Vybaveno | Nezařízeno |
| Užitná plocha | 47 m² |




