| Číslo zakázky: | 655749 | ![]() Karta nemovitosti |
|---|---|---|
| Typ zakázky: | prodej |
Cena včetně pozemku, výstavby RD, IS, příjezdové komunikace a DPH., Dumrealit.cz Vám zprostředkuje exkluzivní prodej patrového rodinného domu typu Lotus o velikosti 5+kk o podlahové výměře 149 m v Uherském Brodě části Těšov. Rodinný dům Lotus je typ rodinného domu vhodný do rovinatého, ale i mírně svažitého terénu. Součásti uvedené ceny, která již zahrnuje DPH je dům na klíč, inženýrské sítě v dosahu a připojené místo EDG (EON), mimo plynu, pozemek a veškeré projektové práce i stavebního povolení. Pozemek (E) o výměře 1331 m je na klidném místě obce. Šíře pozemku je 21,5 m. Navíc k nabízenému pozemku je i podíl na dalším pozemku za zahradou. Dle územního plánu je pozemek veden a schválen pro rodinné bydlení. Jedná se o zděnou stavbu a nabízí se ve variantě na klíč. Uvedená cena domu obsahuje základovou desku, DPH a stavba bude provedena na klíč a předána po kolaudaci k okamžitému užívání. V projektu jsou možné variabilní úpravy dispozice (posuny příček či oken).
Dům je ideální pro 5 člennou rodinu s nízkými provozními náklady. Uvedená cena je za pozemek, kompletní stavbu domu v provedení na klíč, projektové dokumentace, vyřízení stavebního povolení, základové desky až po kolaudaci. V uvedené ceně můžete počítat také s finálními povrchovými úpravami exteriéru i interiéru, a to včetně elektroinstalací, sanitárního vybavení s bateriemi, interiérovými dveřmi včetně obložek a vytápění bude řešeno teplovodním podlahovým topením v kombinaci tepelného čerpadla se 180L zásobníkem na teplou vodu. Dle dohody změníme systém vytápění nebo vystavíme komín pro krbové kamna nebo pro využití krbové vložky. Kryté garážové stání spojené s domem nebo venkovní krytou či nekrytou terasu za příplatek. Pro náročnější klienty máme nabídku nadstandardního vybavení chytré domácnosti, klimatizaci, externí žaluzie, rolety, rekuperaci nebo fotovoltaiku. Doba výstavby cca 12-14 měsíců od vydání stavebního povolení a stavbu zahájíme do 10 dnů od jeho vydání. Smlouvy o dílo zašleme na vyžádání včetně položkového rozpočtu.
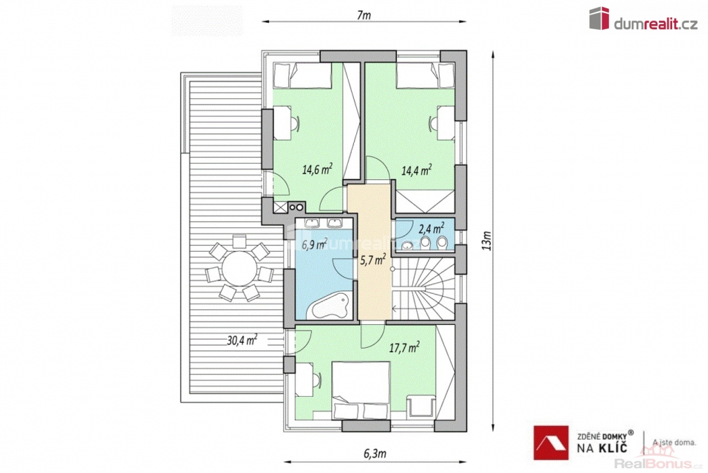
Parametry domu: užitná plocha 149 m zastavěná plocha domu 111 m. V domě se nachází hlavní obytný prostor s kuchyňským koutem, sklad, technickou místnost a WC s umyvadlem, zařízená koupelna, 4 pokoje. V blízkosti je veškerá občanská vybavenost. (Součástí ceny není kuchyňská linka a světla dokážeme za zvýhodněných podmínek zajistit přes naše dodavatele). Financování zajišťujeme a můžete využití našich služeb, při prodeji Vaší nemovitosti. Doporučuji prohlídku pozemku. Možnost změnit na jiný dům dle požadavků a nebo jiné dva pozemky vedle sebe. Více informací u makléře. Ev. číslo: 655135. Energetický štítek: A (49 kWh/m2/rok).
| Cena: |
na vyžádání v RK (Cena včetně pozemku, výstavby RD, IS, příjezdové komunikace a DPH.)
|
|---|
| Počet podlaží objektu | 1 |
|---|---|
| Celková podlahová plocha | 149 m² |
| Druh objektu | cihlová |
| Stav objektu | ve výstavbě (hrubá stavba) |
| Energetická třída | A - Mimořádně úsporná |
| Vlastní pozemek | 1 331 m² |
| Umístění objektu | klidná část obce |
| Zastavěná plocha | 149 m² |
| Užitná plocha | 149 m² |
| Poloha objektu | samostatný |




