| Číslo zakázky: | 2026-164 | ![]() Karta nemovitosti |
|---|---|---|
| Typ zakázky: | prodej |
Ve výhradním zastoupení majitele vám zprostředkujeme prodej družstevního bytu 3+1 s balkonem v blízkosti centra Uherského Hradiště.
Byt se nachází ve 4. nadzemním podlaží zděného bytového domu a nabízí celkovou plochu 68 m a sklepní kóji.
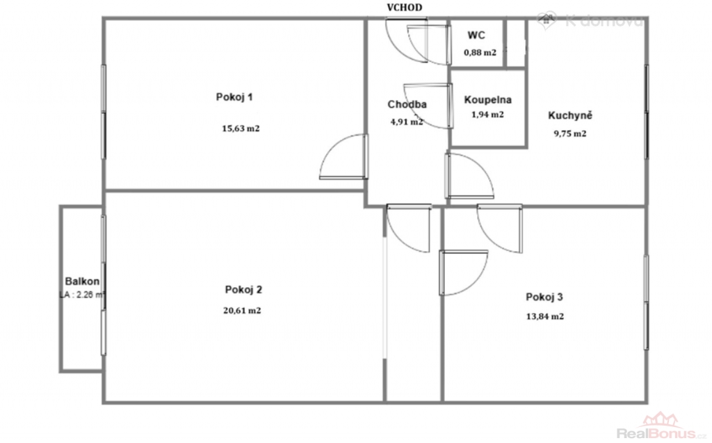
Dispozice bytu je velmi praktická: samostatná kuchyně, prostorný obývací pokoj s balkonem a dvě ložnice.
Byt je v původním technickém stavu a určený ke kompletní rekonstrukci. V obytných místnostech jsou původní parketové podlahy, stěny jsou hladké, omítky původní, plastová okna. Koupelna je vybavena vanou, WC je samostatné. Kuchyně je původní s plynovým sporákem, rozvody jsou původní. Měsíční náklady na bydlení činí přibližně 3 000 Kč (záloha na vodu, služby vč. fondu oprav, poplatky za správu) + zálohy na elektřinu a plyn, což z bytu dělá ekonomicky velmi zajímavou nemovitost.
Velkou předností je klidná lokalita v blízkosti centra Uherského Hradiště a řeky Moravy. Ideální pro rodiny s dětmi na procházky kolem Moravy, hřiště u domu a cyklostezka. V pěší dostupnosti najdete náměstí, obchody, kavárny, restaurace, školy, školky, lékaře i úřady. Město nabízí kompletní občanskou vybavenost, bohatý kulturní život a výbornou dopravní dostupnost vlakové i autobusové nádraží jsou jen pár minut chůze.
Tato nemovitost je ideální volbou pro klienty, kteří hledají byt v top lokalitě s možností zhodnocení po rekonstrukci, ať už pro vlastní bydlení nebo jako investici.
| Cena: |
(za nemovitost) 4 900 000,- Kč
(Cena k jednání)
|
|---|
| Dispozice bytu | 3+1 |
|---|---|
| Číslo podlaží v domě | 4 |
| Celková podlahová plocha | 71 m² |
| Druh objektu | cihlová |
| Stav objektu | před rekonstrukcí |
| Energetická třída | G - Mimořádně nehospodárná |
| Vlastnictví | družstevní |
| Plocha balkonu | 2 m² |
| Plocha sklepu | 4 m² |
| Vybavení | balkon |
| Umístění objektu | klidná část obce |
| Doprava | vlak |
| Rok rekonstrukce | 2 005 |
| Užitná plocha | 68 m² |
| Charakter okolní zástavby | obytná |




