| Číslo zakázky: | 01490 | ![]() Karta nemovitosti |
|---|---|---|
| Typ zakázky: | prodej |
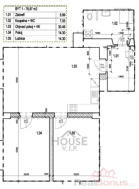
Nabízíme Vám k prodeji byt o velikosti 3 + kk, 79 m2, v Nučicích, okres Praha - východ.
Nově vznikající byt se nachází v 1. NP cihlovém činžovního domě, který prochází kompletní rekonstrukcí.
Kolaudace - červen 2026.
K bytu je možno zakoupit parkovací stání na vlastním pozemku domu - 300.000,- Kč.
Na pozemku domu bude také zřízena grilovací zóna s posezením.
Vytápění bude řešeno tepelným čerpadlem, každý byt bude mít své měřiče na teplo a vodu.
V domě se nachází dalších šest bytů k prodeji o velikostech 1 + kk, 2 + kk a 3 + kk.
Nádherné bydlení nebo výborná investiční příležitost.
Fotografie interiéru je vizualizace.
Doporučujeme.
| Cena: |
(za nemovitost) 7 900 000,- Kč
(včetně provize, včetně právního servisu)
|
|---|
| Dispozice bytu | 3+kk |
|---|---|
| Číslo podlaží v domě | 1 |
| Počet podlaží objektu | 4 |
| Celková podlahová plocha | 79 m² |
| Druh objektu | cihlová |
| Stav objektu | ve výstavbě (hrubá stavba) |
| Energetická třída | G - Mimořádně nehospodárná |
| Vlastnictví | osobní |
| Počet podlaží pod zemí | 1 |
| Umístění objektu | centrum |
| Topení | Ústřední - elektrické Jiné |
| Doprava | silnice MHD |
| Voda | dálkový vodovod |
| Rok kolaudace | 2 026 |
| Počet míst k parkování | 1 |
| Celková plocha | 79 m² |
| Ostatní | Parkoviště |
| Užitná plocha | 79 m² |
| Inženýrské sítě | Vodovod |
| Charakter okolní zástavby | obytná |
| Poloha objektu | samostatný |




