| Číslo zakázky: | 234846 | ![]() Karta nemovitosti |
|---|---|---|
| Typ zakázky: | prodej |
Hledáte bydlení v klidné části města s dostatkem prostoru pro rodinu nebo více generací? Nabízíme k prodeji rodinný dům se třemi podlažími, terasou a zahradou, situovaný v tiché ulici 1. května v městské části Brno-Tuřany.
Celková podlahová plocha domu je přibližně 150 m2. Nemovitost je průběžně udržovaná a díky praktickému uspořádání nabízí široké možnosti využití - ať už pro rodinné bydlení, nebo jako dvougenerační dům.
V přízemí se nachází byt o dispozici 2+1, který je vhodný k modernizaci dle vlastních představ. Horní byt 2+kk je naopak ve velmi dobrém stavu a připraven k okamžitému užívání. Ve třetím podlaží je k dispozici samostatný pokoj a půda.
Technický stav domu zahrnuje novější rozvody, plynový kotel, plastová okna instalovaná v roce 2014 a zateplený strop.
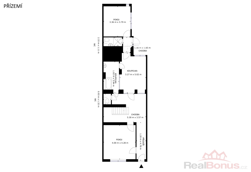
Dispozice domu:
1.NP (přízemí): vstupní chodba, schodiště, kuchyně s jídelním koutem, obývací pokoj, ložnice, dvě koupelny, samostatná toaleta.
2.NP (1. patro): obývací pokoj, kuchyně s jídelním koutem a spíží, ložnice a terasa.
3.NP (půda): samostatný pokoj s lodžií s pěkným výhledem do zahrady, půdní prostor v dobrém technickém stavu.
Na dvoře je umístěn obyvatelný přístavek. Další přístavek lze využít jako dílnu nebo sklad.
Samozřejmostí je sklep pod částí domu. Vytápění i zajišťuje plynový kotel.
Lokalita nabízí příjemné a klidné bydlení s výbornou dostupností do centra a kompletní občanskou vybaveností - školy, školky, zdravotnické služby, pošta, restaurace i další obchody. V blízkosti se nachází sportovní hřiště a zastávka MHD je vzdálena jen pár minut chůze.
Z důvodu nedodání energetického štítku je uvedena energetická náročnost třídy G.
Zaujala Vás tato nemovitost? Zavolejte mi pro více informací nebo domluvení prohlídky.
| Cena: |
(za nemovitost) 9 990 000,- Kč
(včetně provize a právních služeb) (Cena včetně provize RK a právních služeb)
|
|---|
| Počet podlaží objektu | 3 |
|---|---|
| Druh objektu | cihlová |
| Stav objektu | dobrý |
| Energetická třída | G - Mimořádně nehospodárná |
| Vlastnictví | osobní |
| Vlastní pozemek | 233 m² |
| Vybavení | balkon lodžie terasa sklep zahrada podkroví |
| Umístění objektu | klidná část obce |
| Telekomunikace | Telefon Internet |
| Ostatní rozvody | Kabelová televize Ostatní rozvody |
| Vybaveno | Částečně zařízeno |
| Topení | Ústřední - plynové |
| Doprava | vlak dálnice silnice MHD autobus letiště |
| Elektřina | 230 V 380 V |
| Voda | dálkový vodovod |
| Odpad | Městská kanalizace |
| Plyn | Zaveden |
| Občanská vybavenost | Škola Školka Zdravotnická zařízení Pošta Supermarket Kompletní síť obchodů a služeb Restaurace Místní úřad Kulturní zařízení Koupaliště |
| Parkování | u domu (veřejné) |
| Zastavěná plocha | 113 m² |
| Plocha parcely | 233 m² |
| Ostatní | Plot |
| Užitná plocha | 150 m² |
| Počet bytů - celkem | 2 |
| Komunikace | asfaltová |
| Poloha objektu | řadový |
| Další nebytový objekt | patrový |
| Velikost bytů (3+1, 2+kk atd.) | 1.NP 2+1, 2.NP 2+kk, 3.NP pokoj |
| K dispozici od | 01.03.2026 |




