| Číslo zakázky: | 21686 | ![]() Karta nemovitosti |
|---|---|---|
| Typ zakázky: | pronájem |
Pronájem prostorného bytu 3+1 s balkonem, 109 m2 ? historické centrum Olomouce, Náměstí Hrdinů
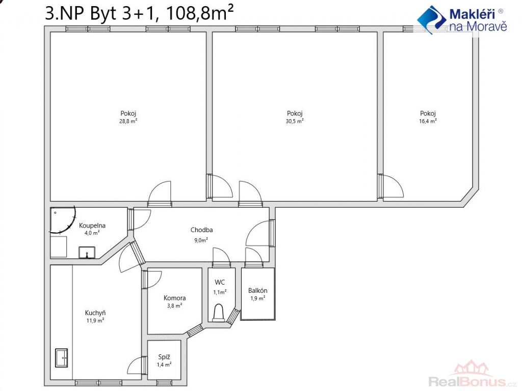
Nabízíme k dlouhodobému pronájmu krásný, prostorný byt o dispozici 3+1 s balkonem o celkové výměře 109 m2, situovaný ve 2. nadzemním podlaží domu s výtahem přímo na Náměstí Hrdinů v historickém centru Olomouce.
Byt prošel kompletní rekonstrukcí a je ve výborném stavu. Pronajímá se nezařízený, což nabízí novému nájemci možnost přizpůsobit si interiér dle vlastních představ.
Dispozice bytu zahrnuje tři samostatné pokoje, kuchyni, spíž, komoru v bytě, koupelnu a samostatné WC. K bytu náleží také balkon a sklep, který poskytuje další úložný prostor.
Velkou výhodou je výborná lokalita ? přímo v centru města, s veškerou občanskou vybaveností v docházkové vzdálenosti. Zastávka MHD se nachází přímo u domu, v blízkosti je také park pro odpočinek i volnočasové aktivity.
Vytápění bytu je zajištěno vlastním plynový kotlem, elektřinu a plyn si nájemníci přepíši na sebe.
Hlavní výhody:
dispozice 3+1, 109 m2
balkon a sklep
2NP s výtahem
kompletní rekonstrukce
nezařízený byt
spíž a komora v bytě
historické centrum města
MHD u domu
park v blízkosti
vhodné pro dlouhodobý pronájem
Pro více informací nebo sjednání prohlídky nás neváhejte kontaktovat.
| Cena: |
(za měsíc) 21 500,- Kč
(+ el a plyn přepisem na nájemníka cca 4500,-Kč)
|
|---|
| Dispozice bytu | 3+1 |
|---|---|
| Číslo podlaží v domě | 2 |
| Celková podlahová plocha | 109 m² |
| Druh objektu | cihlová |
| Stav objektu | velmi dobrý |
| Energetická třída | G - Mimořádně nehospodárná |
| Vlastnictví | osobní |
| Plocha balkonu | 3 m² |
| Plocha sklepu | 10 m² |
| Vybavení | balkon sklep |
| Umístění objektu | centrum |
| Užitná plocha | 109 m² |
| Poloha objektu | řadový |
| K dispozici od | 01.05.2026 |




