| Číslo zakázky: | 655836 | ![]() Karta nemovitosti |
|---|---|---|
| Typ zakázky: | prodej |
Cena je včetně provize RK a právního servisu. Více informací Vám poskytne makléř Tomáš Pelda. , Dumrealit.cz Vám zprostředkuje prodej stavebního pozemku o celkové výměře 1.713 m určeného dle územního plánu ke smíšené zástavbě, se stavbou určenou k totální rekonstrukci nebo demolici, na krásném místě na okraji města Volary, ul. Mlýnská č.p. 181.
Prodávaný pozemek s objektem se nachází na LV č. 2103 v kú Volary. Na pozemku parc. č.233/1 o výměře 385 m se nachází stavba bývalé cihelny.
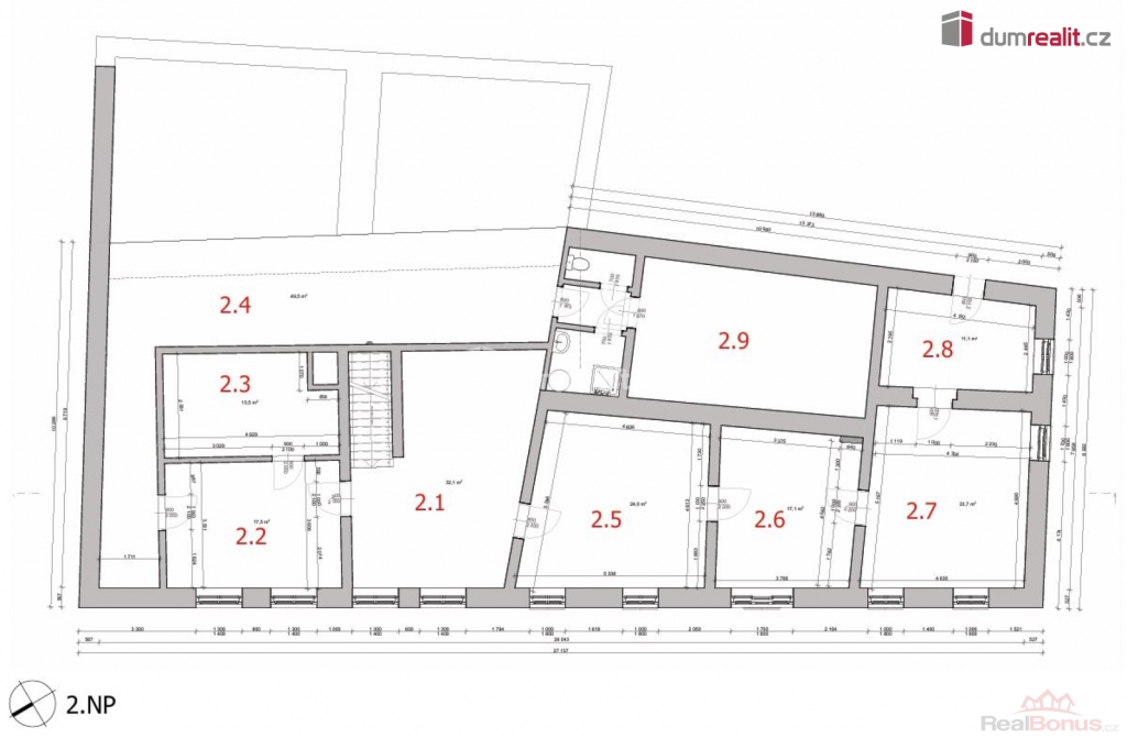
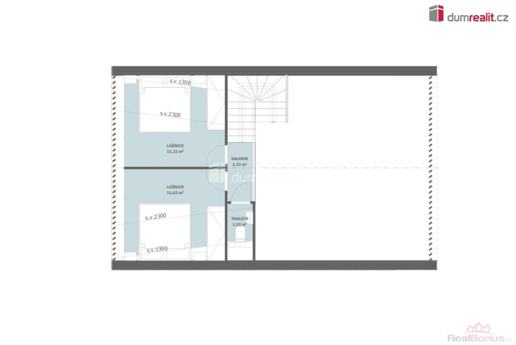
Částečně podsklepený dvoupodlažní objekt ze smíšeného zdiva se skládá ze dvou stavebních celků rozdílného stavu a stáří. Severní část je zchátralá. Jižní navazující polovina stavby je částečně podsklepená a místy udržovaná. Východní obvodovou zeď lemují přízemní přístavby. Součástí objektu je historická studna. Stávající svislé nosné konstrukce jsou tvořeny zdivem z cihel plných pálených (z místní cihelny), v přízemí objektu je možno předpokládat zdivo smíšené s kameny. Stávající stropy v objektu jsou v přízemí tvořeny zčásti klenbou a zčásti dřevěnými trámy. V nadzemních podlažích jsou stropy dřevěné trámové. V objektu se nachází původní schodiště s kamennými nášlapy. Střechy jsou standardní krovové soustavy sedlové s valbovou dostavbou ze severní části v dobrém stavu - bez zatékání. Střešní plášť je tvořený keramickou taškovou krytinou a oplechování střechy je provedeno z pozinkovaného plechu. Příčky jsou z cihel plných pálených.
Objekt je připojen na veřejný vodovod a elektřinu. Kanalizace je řešena jímkou.
K dispozici máme rozhodnutí k odstranění stavby včetně pasportu stavby.
Máme vytvořenou studii na nové zastavění plochy, předáme zájemci při prohlídce domu a jeho okolí.
Zajistíme Vám financování a veškerý právní servis.
Více informací Vám poskytne realitní makléř Tomáš Pelda z realitní kanceláře A TEMPO fungující pod ochranou známkou dumrealit.cz. Ev. číslo: 655222. Energetický štítek: G
| Cena: |
(za nemovitost) 5 300 000,- Kč
(Cena je včetně provize RK a právního servisu. Více informací Vám poskytne makléř Tomáš Pelda.) (včetně provize)
|
|---|
| Počet podlaží objektu | 2 |
|---|---|
| Celková podlahová plocha | 465 m² |
| Druh objektu | smíšená |
| Stav objektu | určený k demolici |
| Energetická třída | G - Mimořádně nehospodárná |
| Vlastní pozemek | 1 713 m² |
| Zastavěná plocha | 385 m² |
| Užitná plocha | 465 m² |
| Poloha objektu | samostatný |




