| Číslo zakázky: | N0025346 | ![]() Karta nemovitosti |
|---|---|---|
| Typ zakázky: | prodej |
V klidné a zelené části Prahy ? Lipence ? nabízíme výjimečně prostorné rodinné bydlení o dispozici 6+1 a celkové ploše 213 m2, které představuje ideální alternativu k bytu a svým charakterem se blíží rodinnému domu.
Nemovitost je řešena jako třípodlažní celek s vlastním vstupem, terasou, zahradou a garáží, takže poskytuje komfort a soukromí, které u klasických bytů nenajdete. Představte si rána na terase se sluncem nad zahradou, klidné večery v zeleni a dostatek prostoru pro každého člena rodiny.
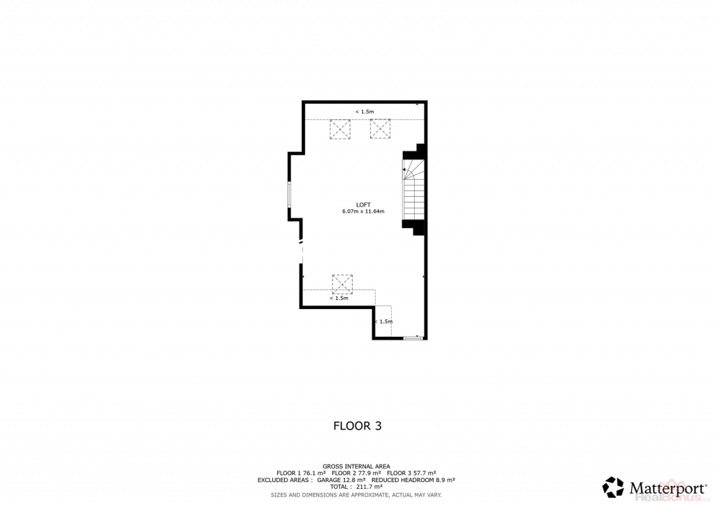
Dispozice je velmi praktická:
přízemí: obývací pokoj (30 m2) s krbem, jídelna (21 m2), kuchyně (13 m2), předsíň a toaleta
1.patro: ložnice (22 m2), dva pokoje (15 m2 a 14 m2), koupelna (8 m2) a chodba
2.patro: otevřený prostor (62 m2), ideální jako pracovna, dětská herna, ateliér nebo další ložnice
Interiér působí vzdušně a příjemně, s důrazem na světlo, dřevo a kvalitní materiály. Obývací pokoj je vybaven krbem, kuchyně kuchyňskou linkou se spotřebiči, koupelna vanou. Vytápění a ohřev vody zajišťuje elektrický kotel. Nemovitost prošla renovací, která zvýšila standard bydlení.
Velkou přidanou hodnotou je vlastní zahrada, terasa a garáž ? tedy zázemí, které u běžných bytů v Praze nenajdete.
Tato nemovitost je ideální volbou pro rodinu, která hledá klidné bydlení v přírodě, ale zároveň chce zůstat v Praze.
Lokalita Lipence patří mezi vyhledávané rezidenční části Prahy díky své klidné atmosféře, blízkosti přírody v okolí Berounky a dobré dostupnosti do centra města. Okolí nabízí široké možnosti sportu, cyklistiky i relaxace. Výhodou je také rychlé napojení na dálnici D4 (cca 6 minut jízdy).
Jedná se o samostatnou bytovou jednotku se samostatným listem vlastnictví, vlastním vstupem a plnohodnotným užíváním.
Nemovitost lze financovat hypotečním úvěrem, který vám rádi pomůžeme zajistit. Pro více informací nebo domluvení prohlídky nás neváhejte kontaktovat.
| Cena: | (za nemovitost) 13 690 000,- Kč |
|---|
| Dispozice bytu | 6+kk |
|---|---|
| Číslo podlaží v domě | 1 |
| Počet podlaží objektu | 3 |
| Celková podlahová plocha | 213 m² |
| Druh objektu | cihlová |
| Stav objektu | po rekonstrukci |
| Energetická třída | F - Velmi nehospodárná |
| Vlastnictví | osobní |
| Vybavení | zahrada |
| Topení | Lokální - tuhá paliva Ústřední - elektrické Jiné |
| Voda | dálkový vodovod |
| Odpad | ČOV pro celý objekt |
| Rok rekonstrukce | 2 025 |
| Parkování | garáž |
| Ostatní | Garáž |
| Užitná plocha | 213 m² |
| Plocha zahrady | 209 m² |
| Inženýrské sítě | Vodovod |




