| Číslo zakázky: | 234763 | ![]() Karta nemovitosti |
|---|---|---|
| Typ zakázky: | prodej |
Exkluzivně nabízíme prodej rodinného domu v obci Svatoslav.
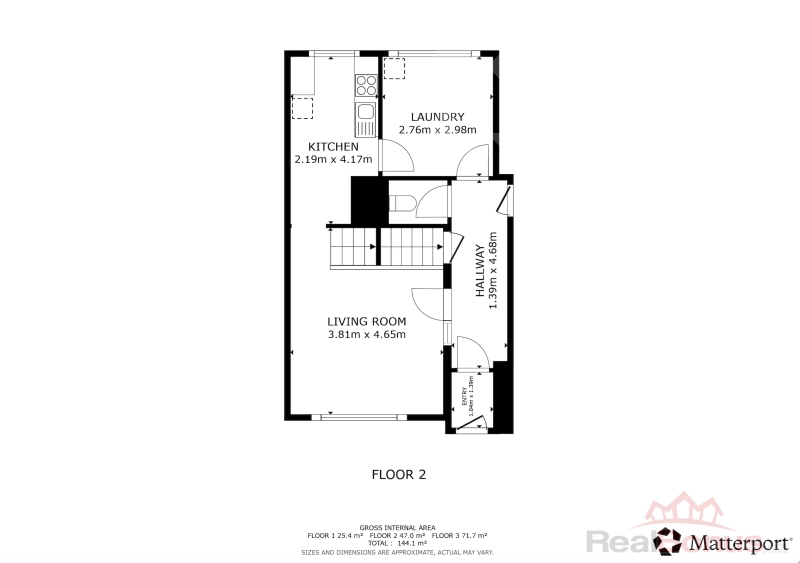
Jedná se o dvoupodlažní řadový rodinný dům, navíc s velkým sklepem. Dům prošel částečnou rekonstrukcí, a je ve velmi dobrém stavu, s možností se ihned nastěhovat bez nutných investic a oprav. Je zde nová koupelna, nová plastová okna. Velká garáž a parkovací místo z přední části domu a ze zadní části je možný vjezd na zahradu a k zahradnímu domku který může sloužit i jako dílna, tyto možnosti nabízí mnohá využití.
Financování zajistíme opravdu všem. Doporučuji prohlídku.
| Cena: |
(za nemovitost) 5 490 000,- Kč
(včetně provize a právních služeb)
|
|---|
| Počet podlaží objektu | 2 |
|---|---|
| Druh objektu | cihlová |
| Stav objektu | velmi dobrý |
| Energetická třída | G - Mimořádně nehospodárná |
| Vlastnictví | osobní |
| Počet podlaží pod zemí | 1 |
| Vlastní pozemek | 510 m² |
| Vybavení | lodžie terasa sklep zahrada |
| Topení | Ústřední - plynové Ústřední - tuhá paliva |
| Doprava | silnice autobus |
| Elektřina | 230 V 380 V |
| Voda | dálkový vodovod |
| Odpad | Městská kanalizace |
| Plyn | Zaveden |
| Zastavěná plocha | 95 m² |
| Plocha parcely | 510 m² |
| Délka | 56 m |
| Šířka | 9 m |
| Ostatní | Plot Garáž Parkoviště |
| Užitná plocha | 170 m² |
| Plocha zahrady | 425 m² |
| Poloha objektu | řadový |
| K dispozici od | 01.05.2026 |




