| Číslo zakázky: | 286 | ![]() Karta nemovitosti |
|---|---|---|
| Typ zakázky: | prodej |
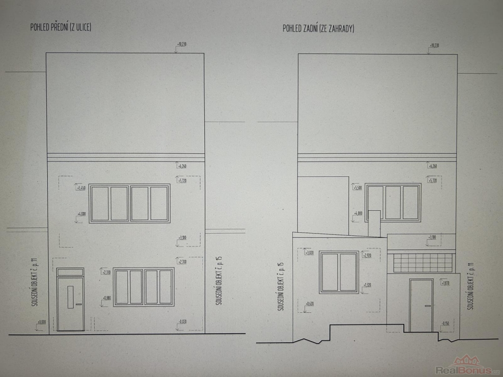
Nabízíme k prodeji rodinný řadový dům v klidné a vyhledávané lokalitě Šlapanice u Brna na ulici Wurmova. Nemovitost byla zkolaudována v roce 1980. Je v původním, udržovaném stavu a je plně obyvatelná, nicméně vhodná k modernizaci či rekonstrukci dle vlastních představ.
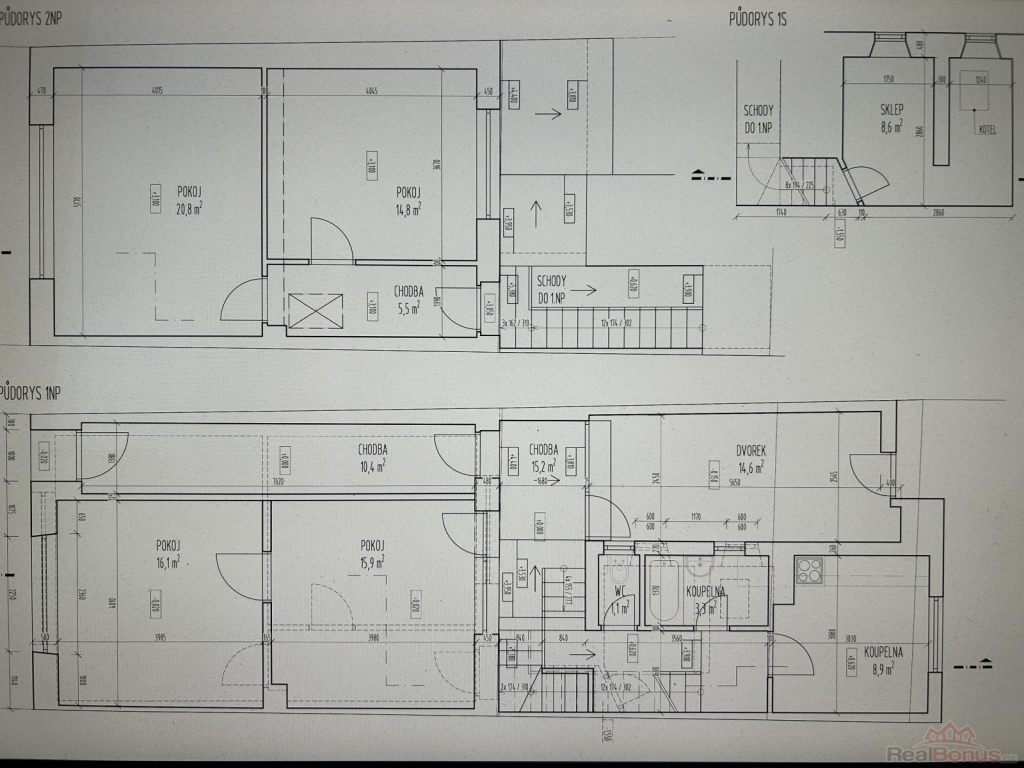
Dům nabízí jednu bytovou jednotku o dvou obytných podlažích, dále je částečně podsklepený a disponuje půdou pod sedlovou střechou.
Dispozice a technické údaje:
zastavěná plocha: 103 m
obytná plocha: cca 90 m
zahrada: 105 m
předzahrádka: 17 m
stavba zděná (pálená cihla), dřevěná okna
vytápění zajišťuje plynový kotel
napojení na obecní vodovod a kanalizaci
Dům se nachází v klidné části Šlapanic s velmi dobrou dostupností do centra Brna. V blízkosti se nachází veškerá občanská vybavenost školy, školky, obchody, zdravotní služby i sportoviště.
Nemovitost je vhodná jak pro rodinné bydlení, tak i pro zájemce hledající možnost investice a rekonstrukce.
| Cena: |
(za nemovitost) 9 900 000,- Kč
(Cena je k jednání.)
|
|---|
| Číslo podlaží v domě | 1 |
|---|---|
| Počet podlaží objektu | 2 |
| Celková podlahová plocha | 90 m² |
| Druh objektu | cihlová |
| Stav objektu | dobrý |
| Počet podlaží pod zemí | 1 |
| Vlastní pozemek | 225 m² |
| Vybavení | sklep |
| Umístění objektu | klidná část obce |
| Vybaveno | Částečně zařízeno |
| Topení | Ústřední - plynové |
| Plyn | Zaveden |
| Zastavěná plocha | 103 m² |
| Plocha parcely | 225 m² |
| Užitná plocha | 90 m² |
| Plocha zahrady | 122 m² |
| Inženýrské sítě | Vodovod Plyn |
| Druh stavby | rodinný dům, rekreační chalupa, rekreační pozemek |
| Poloha objektu | řadový |




