| Číslo zakázky: | 1733 | ![]() Karta nemovitosti |
|---|---|---|
| Typ zakázky: | prodej |
Výstavba PENZIONU KUNOVICE - STAVEBNÍ POVOLENÍ V RUCE
Okamžitý start - 14 ubytovacích jednotek - 743 m and sup2; užitné plochy
PŘIPRAVENÝ INVESTIČNÍ PROJEKT
Výjimečná příležitost pro investory! Nabízíme kompletně připravený projekt výstavby penzionu v Kunovicích s platným stavebním povolením a hotovou projektovou dokumentací. Začněte stavět prakticky ihned!
KLÍČOVÉ PARAMETRY INVESTICE
Užitná plocha: 743,60 m and sup2; na třech podlažích
Kapacita: 14 ubytovacích jednotek + wellness zázemí
Parkování: 12 stání na vlastním pozemku (včetně ZTP)
Lokalita: Kunovice, ul. Lidická - výborná dostupnost
Stav: platné stavební povolení, okamžitý start možný
Klíčové výhody investice: platné stavební povolení umožňuje okamžitý start bez zbytečného zdržení, atraktivní lokalita v zavedené zástavbě s výbornou dostupností a strategická poloha u hlavní komunikace podporují vysoký potenciál vytíženosti, v objektu je zároveň možné vybudovat menší bytové jednotky pro dlouhodobé nájemní bydlení. K dispozici je velkorysá užitná plocha 743,60 m and sup2; na třech podlažích.
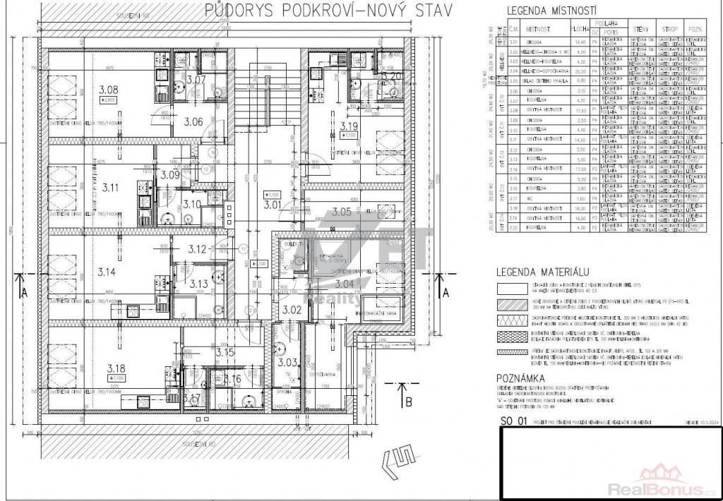
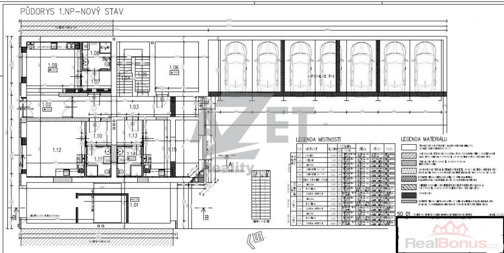
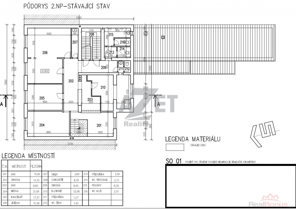
DISPOZICE PENZIONU
Podlaží Plocha Pobytová plocha Jednotky
1.NP 188 m and sup2; 58 m and sup2; 3 jednotky
2.NP 277 m and sup2; 103 m and sup2; 6 jednotek
Podkroví 278 m and sup2; 67 m and sup2; 5 jednotek
CELKEM 743 m and sup2; 28 m and sup2; 14 jednotek
TECHNICKÉ ŘEŠENÍ
Konstrukce: Nové nosné zdivo Ytong, příčky SDK
Kontaktní zateplení 150 mm
Nové stropy (ocelové profily + ŽB deska)
Krov a krytina Prefa Prefalz
Plastová okna s trojsklem
Vytápění a TUV:
Elektrické podlahové vytápění
Elektrické bojlery 100 l
Sítě:
Vodovod, kanalizace, elektřina - připojeno
Retenční nádrž pro dešťové vody
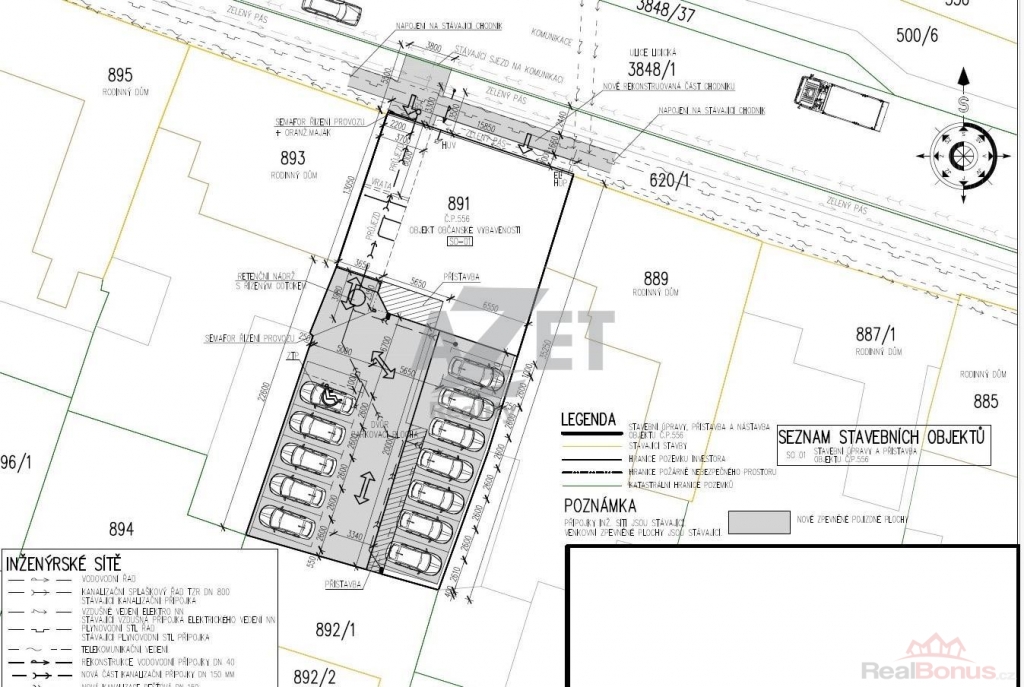
LOKALITA A DOSTUPNOST
Kunovice - ulice Lidická
Strategická poloha u hlavní komunikace
Zavedená zástavba rodinných domů
Výborné dopravní napojení
Blízkost městské infrastruktury
Vlastní dvůr s parkováním
FLEXIBILNÍ MOŽNOSTI
Územní plán umožňuje změnu záměru na:
Dům s nájemními byty
Apartmánový dům
Firemní ubytování
Kombinace bydlení a služeb
VHODNÉ PRO
Investory hledající okamžitý start projektu
Developery se zaměřením na ubytovací služby
Podnikatele v cestovním ruchu
Firmy řešící ubytování zaměstnanců
STAVEBNÍ ÚDAJE
Zastavěná plocha: 362 m and sup2;
Obestavěný prostor: 3.868 m and sup3;
Pozemek: s vlastním dvorem a parkováním
Stav objektu: připraven k rekonstrukci dle PD
CO ZÍSKÁTE
Platné stavební povolení
Kompletní projektovou dokumentaci
Připravený pozemek se sítěmi
Možnost okamžitého startu
Flexibilní využití objektu
Garantovanou návratnost investice
UPOZORNĚNÍ
Vizualizace jsou ilustrativní a slouží k lepší představě o potenciálu projektu. Závazné jsou údaje z projektové dokumentace.
KONTAKT
Maximalizujte potenciál této investice! Pro kompletní projektovou dokumentaci, finanční analýzu projektu, domluvení prohlídky nebo individuální investiční scénář mě kontaktujte.
Připraven k okamžitému startu Platné povolení Výnosná investice
Investiční projekt s garantovaným potenciálem v atraktivní lokalitě Kunovic
| Cena: |
(za nemovitost) 7 000 000,- Kč
(Konečná cena včetně právního servisu a provize RK.)
|
|---|
| Číslo podlaží v domě | 1 |
|---|---|
| Počet podlaží objektu | 3 |
| Celková podlahová plocha | 229 m² |
| Druh objektu | cihlová |
| Stav objektu | před rekonstrukcí |
| Počet podlaží pod zemí | 1 |
| Vlastní pozemek | 564 m² |
| Vybavení | sklep |
| Umístění objektu | klidná část obce |
| Vybaveno | Částečně zařízeno |
| Topení | Lokální - elektrické |
| Elektřina | 230 V |
| Připojení na internet | Jiné |
| Zastavěná plocha | 362 m² |
| Plocha parcely | 564 m² |
| Užitná plocha | 229 m² |
| Plocha zahrady | 120 m² |
| Inženýrské sítě | Vodovod Kanalizace Elektřina |
| Druh stavby | budova/y, hala/y |
| Poloha objektu | řadový |
| Typ zařízení | Penzion |
| Druh prostor | Obchodní |
