| Číslo zakázky: | 229642 | ![]() Karta nemovitosti |
|---|---|---|
| Typ zakázky: | prodej |
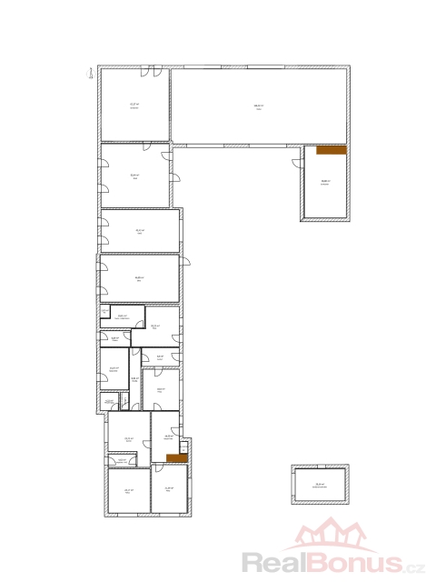
Nabízíme Vám ve výhradním zastoupení k prodeji rozsáhlou částečně zrekonstruovanou zemědělskou usedlost v obci Librantice (na okraji Hradce Králové s dojezdem do 10 min) s užitnou plochou cca 785 m2 (lze dále rozšířit o celé 2. NP - podkroví, které v současné době není využité, možnost využití i 3. NP). Část uzavřeného statku je zrekonstruována a v současné době slouží jako velkorysá rekreační chalupa (dříve sloužila k trvalému bydlení). Celý objekt je napojen na inženýrské sítě jako kanalizace, elektřina, plyn, voda vlastní zdroj ze studny, která je umístěna uvnitř stavby. Zahrada je rozdělena na dvůr (zděný plot se vstupní bránou a brankou, zahradní dům/garáž) a dále na zadní zahradu. Výhodou tohoto objektu je naprosté soukromí s dostatečným prostorem pro další budování obytných i užitných částí, velká zahrada a krásná stodola (vše cca 2.182 m2). Volné ihned. Pro více informací či pro domluvení prohlídky kontaktujte makléře.
| Cena: |
(za nemovitost) 12 499 000,- Kč
(včetně provize a právních služeb)
|
|---|
| Druh objektu | cihlová |
|---|---|
| Stav objektu | dobrý |
| Energetická třída | G - Mimořádně nehospodárná |
| Vlastnictví | osobní |
| Vlastní pozemek | 2 182 m² |
| Vybaveno | Částečně zařízeno |
| Zastavěná plocha | 2 393 m² |
| Plocha parcely | 2 182 m² |
| Užitná plocha | 785 m² |
| Plocha zahrady | 1 655 m² |
| Poloha objektu | samostatný |
| K dispozici od | 01.11.2025 |




