| Číslo zakázky: | 2926 | ![]() Karta nemovitosti |
|---|---|---|
| Typ zakázky: | pronájem |
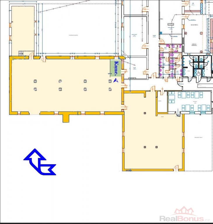
Nabízíme k nájmu přízemní sklady 413 m2, pod uzamčením, kancelář, WC.
--------------------------------------------
Velikost : 413 m2
Nájemné: 79,-Kč/m2/měsíc
-------------------------------------------
Sklad je vjezdový pro Destu, více částí, zděný izolovaný - vytápěný el. přímotop. tělesem. Hala sloužila jako Skla + E shop. Příjezd nákladní dopravou, velké manipulační prostory, zdarma parkování pro 4x osobní auto.
Rozvody 220/380 V, zářivkové osvětlení, provoz 24/7 bez omezení. Součástí prostor je i kancelář - viz foto. Dále ve spol. prostorách WC a umyvadlo s tekoucí vodou.
---------------------
ČERNÝ Pavel
ARCHA - průmyslová kancelář ( Praha, Beroun, Benešov )
-Prodej a pronájem skladů/dílen/kanceláří
-Prodej pozemků pro průmysl
-Výstavba skladů/dílen/areálů pro logistiku
| Cena: |
(za m2 / měsíc) 79,- Kč
(+ vlastní spotřeba 220/380V, + DPH)
|
|---|
| Číslo podlaží v domě | 1 |
|---|---|
| Počet podlaží objektu | 1 |
| Druh objektu | smíšená |
| Stav objektu | dobrý |
| Umístění objektu | centrum |
| Vybaveno | Částečně zařízeno |
| Topení | Lokální - elektrické |
| Elektřina | 230 V |
| Účel budovy | Sklad |
| Výrobní plocha | 380 m² |
| Dílna | 380 m² |
| Inženýrské sítě | Elektřina |
| Druh stavby | budova/y, hala/y |
| Poloha objektu | v bloku |
| Druh prostor | Skladovací |
