| Číslo zakázky: | 216 | ![]() Karta nemovitosti |
|---|---|---|
| Typ zakázky: | prodej |
Cena k jednání. SKZ REALITY nabízí jedinečnou příležitost k podnikání v rekreačním oblasti u Velkovřešťovského rybníka, nedaleko obce Velký Vřešťov. Máme pro vás na prodej letní restauraci s veškerým vybavením pro okamžitý začátek podnikání s cenou k jednání. Není třeba nic zařizovat, kolaudovat či měnit. Tato letní restaurace s kvalitní nabídkou je zde v provozu mnoho let a právě to zajišťuje každou sezónu dostatek zákazníků a tomu odpovídající zisky.
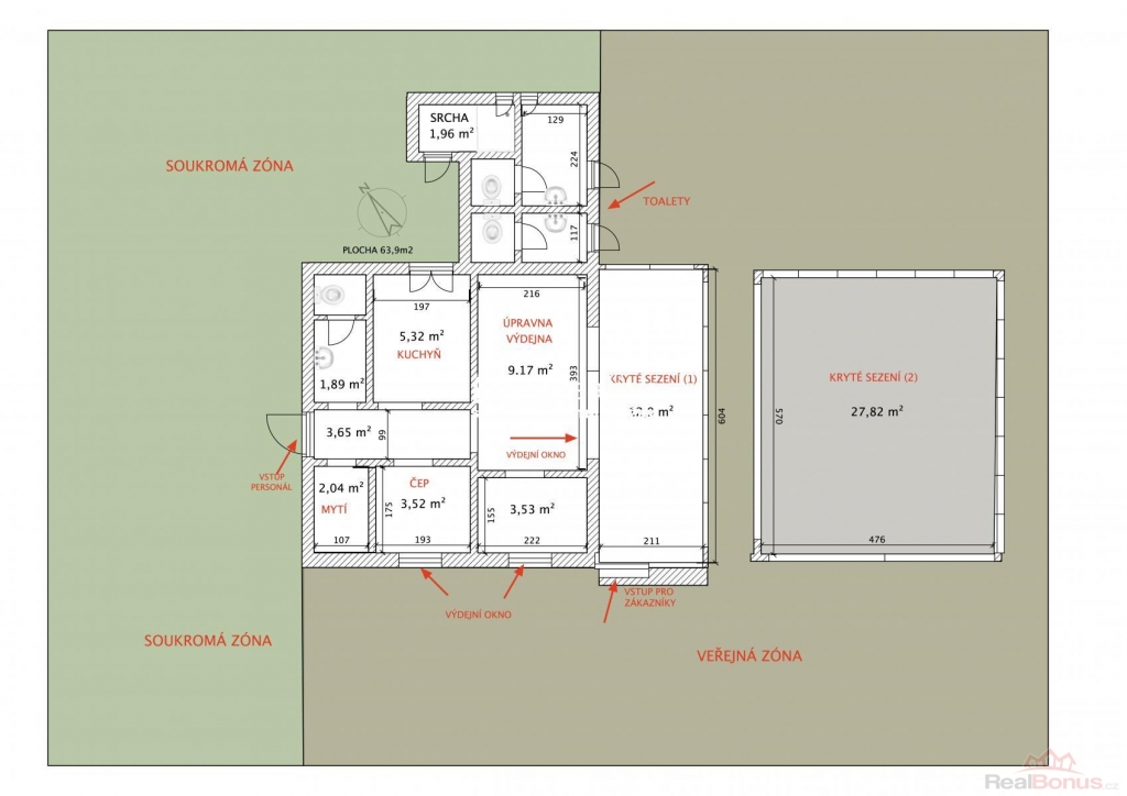
Základem všeho je zděná stavba, kde najdete vše, co k provozování hostinství potřebujete. Dispozice jsou znázorněny na fotografii půdorysu. Zadním vstupem se dostanete do chodby. Vlevo se nachází 2 prostory: WC s umyvadlem a kuchyně. Vpravo je přípravna, čep s výdejním okénkem a prostor pro výdej zmrzliny. Výdej jídel, fritéza, konvektomat, mikrovlná trouba atd. je největším pracovním prostorem a je na konci chodby s výdejním oknem do prostoru uzavřeného posezení pro hosty. Dispoziční uspořádání stavby je deální pro rychlou a pohodlnou přípravu jídel a nápojů se snadným obstaráváním hostů. Na severovýchodní straně se nachází přístavba, kde najdete WC pro hosty a sprchový kout pro personál. Součástí nabídky je mj. vagon, karavan, dva prodejní stánky a 2 foliovníky. Lze využít i studnu pro čerpání užitkové vody.
V oploceném areálu je dostatek míst k sezení. Kromě přístavby (14 míst) hlavní stavby je k dispozici zastřešené polo uzavřené posezení s kapacitou 24 míst a další venkovní stoly pro dalších 24 hostů. Celkem je zde možné obsluhovat na 60-70 návštěvníků.
Hosté se rekrutují z přilehlého rekreačního střediska (kempu) u rybníka, majitelů karavanů a obytných vozů, rekreačních hostů obývajících chatky, vlastníků chat na protějším břehu rybníka, turistů, cyklistů a velkého množství vášnivých rybářů. Klientela této sezónní restaurace je tedy zajištěna od dubna do října. Lokalita kolem rybníku je ideální pro aktivní odpočinek (rybaření, turistika, cyklistika) a výlety do blízkých měst jako jsou Hořice, Dvůr Králové, Jaroměř a krajské město Hradec Králové.
Nepropásněte příležitost podnikat na tomto krásném místě, neboť i podle územního plánu je zde velký potenciál rozšíření možností př. o ubytování či jiné podnikatelské aktivity. Kontaktujte nás včas.
| Cena: |
(za nemovitost) 3 999 000,- Kč
(včetně právního servisu a provize, bez poplatků)
|
|---|
| Číslo podlaží v domě | 1 |
|---|---|
| Počet podlaží objektu | 1 |
| Celková podlahová plocha | 77 m² |
| Druh objektu | cihlová |
| Stav objektu | velmi dobrý |
| Energetická třída | G - Mimořádně nehospodárná |
| Umístění objektu | okrajová zástavba |
| Vybaveno | Částečně zařízeno |
| Elektřina | 230 V |
| Užitná plocha | 77 m² |
| Plocha zahrady | 637 m² |
| Inženýrské sítě | Vodovod Elektřina |
| Druh stavby | budova/y, hala/y |
| Poloha objektu | samostatný |
| Typ zařízení | Restaurace |
| Druh prostor | Skladovací |
