| Číslo zakázky: | 2026-171 | ![]() Karta nemovitosti |
|---|---|---|
| Typ zakázky: | pronájem |
Popis nabídky
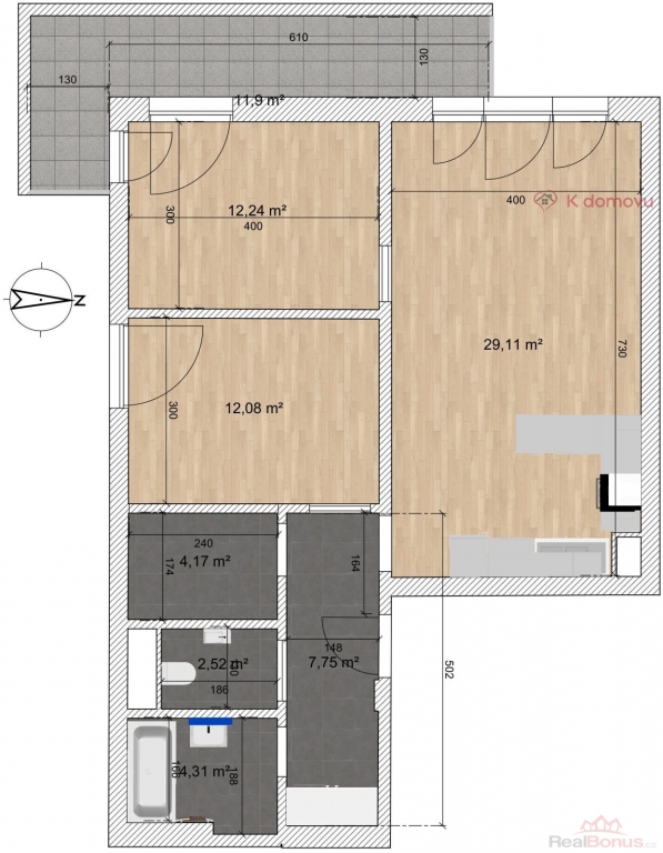
Nabízíme k pronájmu moderní, slunný a prostorný byt 3+kk o přibližné podlahové ploše 72 m2, který se nachází v Brně Líšni na ulici Houbalova.
Dispozice a vybavení
Byt je situován na jihozápad, v 6. patře sedmipodlažního domu s výtahem (dům cca 10 let starý).
Hlavní obytná místnost (29 m2) je vybavena moderní kuchyňskou linkou: myčka, sklokeramická varná deska, digestoř, horkovzdušná trouba, vestavná lednice s mrazákem.
Ložnice (12 m2) a hlavní obytná místnost mají vstup na terasu (12 m2) s výjimečným výhledem.
Třetí pokoj rovněž nabízí podlahovou plochu 12 m2.
Prostorná komora (4 m2) s přípojkou na pračku.
Koupelna (4 m2) vybavená vanou, umyvadlem se skříňkou, samostatnou koupelnovou skříňkou, topným žebříkem, přípojkou na pračku.
Toaleta se závěsným WC a praktickým umyvadlem.
Vestavná skříň v chodbě.
Všechna okna vybavena roletami den/noc.
Plovoucí podlaha v obytných místnostech, dlažba v chodbě, komoře a koupelně.
Další výhody
Garážové stání v suterénu bytového domu.
Sklep přímo u garážového stání.
Blízkost nákupního centra, školy, školky.
Blízkost přírodních lokalit: Hády, Velká Klajdovka, Moravský kras, Mariánské údolí
Cena
Nájem 26 000 Kč
Energie a služby 5 500 Kč
Kauce 32 000 Kč
Provize 26 000 Kč
| Cena: |
(za měsíc) 26 000,- Kč
(+ náklady na bydlení 5500 Kč)
|
|---|
| Dispozice bytu | 3+kk |
|---|---|
| Číslo podlaží v domě | 6 |
| Celková podlahová plocha | 72 m² |
| Druh objektu | cihlová |
| Stav objektu | velmi dobrý |
| Energetická třída | G - Mimořádně nehospodárná |
| Vlastnictví | osobní |
| Plocha teras | 12 m² |
| Plocha sklepu | 2 m² |
| Umístění objektu | klidná část obce |
| Stáří objektu | 10 |
| Počet míst k parkování | 1 |
| Užitná plocha | 72 m² |




