| Číslo zakázky: | 001904 | ![]() Karta nemovitosti |
|---|---|---|
| Typ zakázky: | prodej |
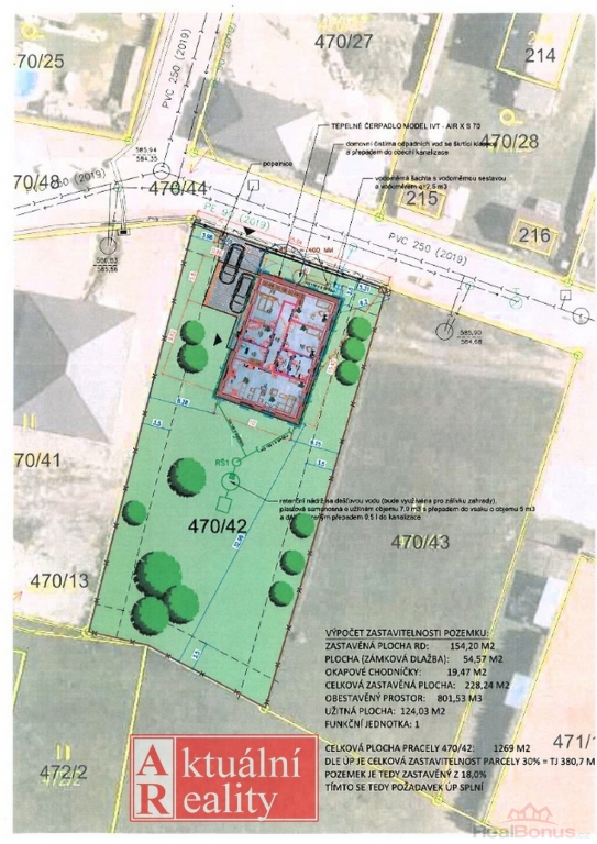
Nabízíme k prodeji pěkný rovinatý pozemek v obci Slavče nedaleko Trhových Svinů. Pozemek se nachází v lokalitě s výstavbou nových rodinných domů v klidné části na okraji obce. Vydáno platné stavební povolení, projekt a veškerá dokumentace součástí ceny. Na pozemku možnost připojení na inženýrské sítě. V obci Slavče se nachází základní občanská vybavenost. Veškerou vybavenost najdete v nedaleko vzdáleném městě Trhové Sviny (cca. 6 km). České Budějovice 25 km. Lokalita je vhodná pro rodiny hledající klidné bydlení a zároveň aktivní styl života - okolí Slavče tvoří kopcovitá zalesněná krajina s téměř nedotčenou přírodou. Oblast láká jak k pěší turistice, tak k cyklistickým vyjížďkám, možnost krásného koupání nabízí malá přehradní nádrž v Dobrkovské Lhotce.
Více info při osobní prohlídce. DOPORUČUJEME.
| Cena: | (za nemovitost) 2 999 000,- Kč |
|---|
| Stav objektu | velmi dobrý |
|---|---|
| Vlastní pozemek | 1 269 m² |
| Umístění objektu | klidná část obce |
| Užitná plocha | 1 269 m² |
| Komunikace | asfaltová |
| Druh pozemku | pro bydlení |




