| Číslo zakázky: | 4140665 | ![]() Karta nemovitosti |
|---|---|---|
| Typ zakázky: | prodej |
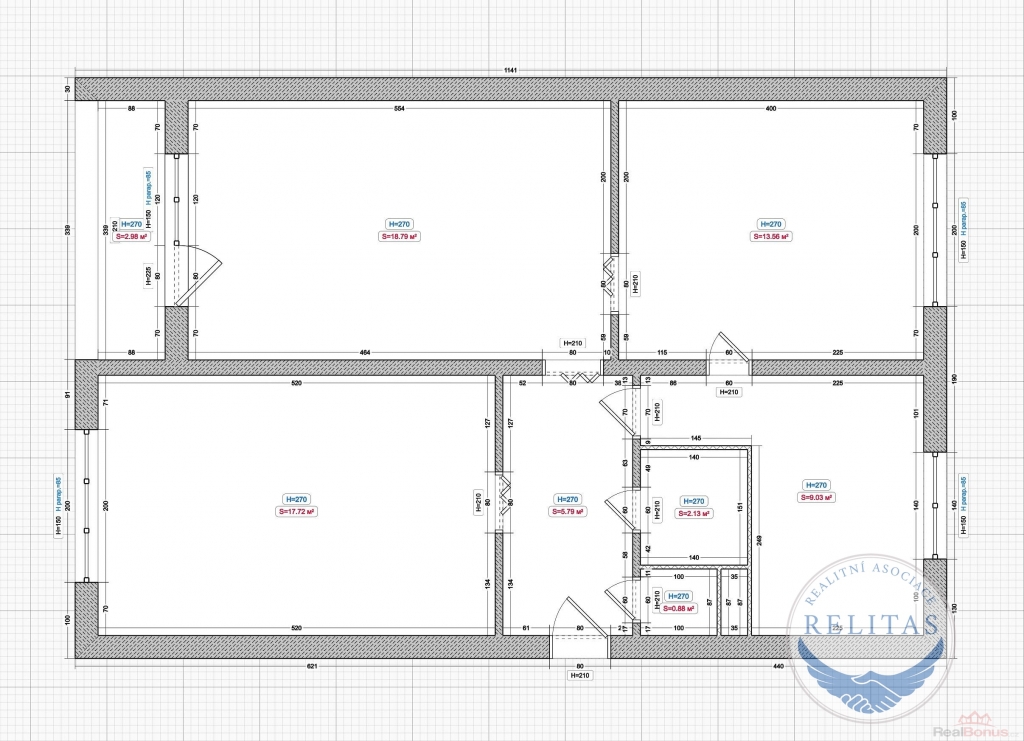
Nabízím Vám byt v OSOBNÍM VLASTNICTVÍ o dispozici 3+1 v ulici Havanská 2096, Kladno Kročehlavy, který představuje skvělou příležitost pro vlastní bydlení i jako investici k pronájmu. Byt se nachází ve 3. patře panelového domu (tedy ve 4. nadzemním podlaží) a má celkovou plochu 73 m včetně příslušenství, z toho balkon 3,3 m a sklep 1,8 m. Dům je klidný, udržovaný a prošel důležitými úpravami má nová okna, zateplenou fasádu a rekonstruovanou střechu, což je pro budoucího majitele příjemný bonus.
Samotný byt je v původním stavu, zároveň je ale obyvatelný i bez nutnosti okamžitých velkých zásahů, takže se nabízí jak postupná rekonstrukce, tak rychlé využití pro nájemní bydlení. Praktickou výhodou je balkon pro ranní kávu nebo odpočinek a sklep pro uložení sezónních věcí. Je pouze potřeba počítat s tím, že v domě není výtah. PENB domu třída B. Celkové zálohy na byt účtované správcem domu na byt pro 2 osoby 6.302 Kč/měsíc (z toho FO 3.212 Kč/měsíc a správní poplatek 630 Kč/měsíc).
Lokalita Kladno Kročehlavy patří mezi oblíbené části města díky velmi dobré občanské vybavenosti. V docházkové i krátké dojezdové vzdálenosti je běžná síť obchodů a služeb, městská část je dobře obsluhována MHD Kladno i linkami PID, které zajišťují pohodlné spojení po městě i směrem na Prahu.
Rodiny s dětmi ocení, že Kladno disponuje širokou sítí mateřských a základních škol. Město má zároveň rozsáhlé zázemí středních i vyšších škol.
Výborně dostupná je i lékařská péče. V Kladně funguje několik poliklinik a hlavně Oblastní nemocnice Kladno s moderní péčí a pohotovostními službami pro dospělé i děti.
Lokalita potěší i nabídkou volnočasových aktivit. Město Kladno má bohaté kulturní najdete zde Městské divadlo Kladno, Divadlo Lampion, Městskou knihovnu, Kladenský zámek, galerii i sportovní areály města, a v Kladně funguje také aquapark. Je zde mnoho sportovních kroužků, oddílů, sportovišť krytých i venkovních. Kladno se profiluje jako město sportu a do sportovních aktivit vedení města investuje nadprůměrné částky.
Dopravní dostupnost do Prahy výrazně usnadňuje rychlodráha směr Hostivice -Praha Dejvice -Praha Masarykovo nádraží a mnoho linek busů směr metro Zličín a metro Veleslavín.
Parkování volně v okolí domu, žádné placené parkovací zóny.
| Cena: |
(za nemovitost) 6 300 000,- Kč
(včetně provize) (včetně právního servisu)
|
|---|
| Dispozice bytu | 3+1 |
|---|---|
| Číslo podlaží v domě | 4 |
| Počet podlaží objektu | 6 |
| Celková podlahová plocha | 73 m² |
| Druh objektu | panelová |
| Stav objektu | před rekonstrukcí |
| Energetická třída | B - Velmi úsporná |
| Vlastnictví | osobní |
| Počet podlaží pod zemí | 1 |
| Plocha balkonu | 3 m² |
| Plocha sklepu | 2 m² |
| Vybavení | balkon |
| Umístění objektu | klidná část obce |
| Doprava | vlak |
| Plyn | Zaveden |
| Rok kolaudace | 1 970 |
| Užitná plocha | 68 m² |
| Charakter okolní zástavby | obytná |




