| Číslo zakázky: | 192 | ![]() Karta nemovitosti |
|---|---|---|
| Typ zakázky: | prodej |
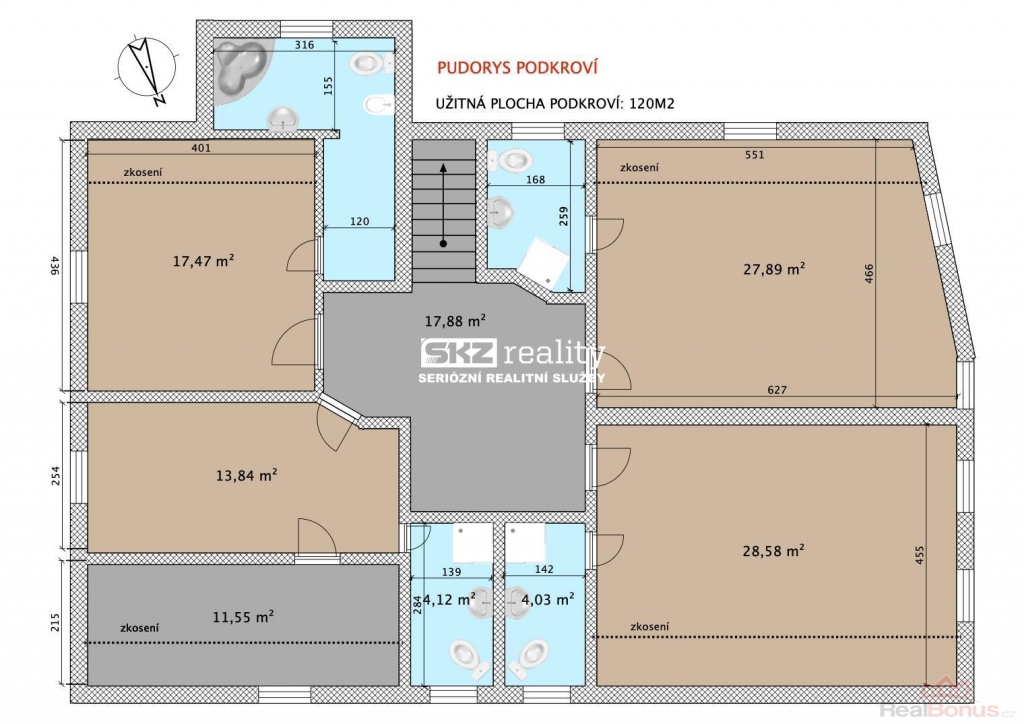
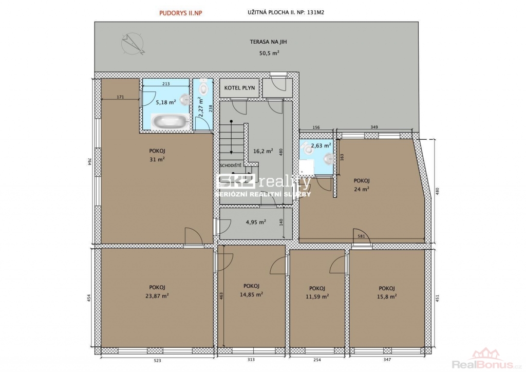
SKZ REALITY Rumburk nabízí dům pro bydlení i podnikání v jednom. Bydlete, pronajímejte a podnikejte v jednom domě. V přízemí domu jsou skladové prostory, kuchyň, prostor cukrárny. Ve II. NP se nachází velký byt ( 5 pokojů a dvě koupelny). S minimálními náklady lze tento byt rozdělit na 2 bytové jednotky. Ubytovací kapacita se tedy zvětší na ubytování pro 20-26 osob. V suterénu se nachází restaurace s barem, která má klenbový strop a podlahové vytápění.. V přízemí je dostatek místa pro podnikatelské aktivity. Dále zde najdete několik skladovacích prostor a sociální zařízení pro muže a ženy. Objekt je veden v souladu s územním plánem jako objekt občanské vybavenosti. Získejte tuto nemovitost za výhodnou cenu dřív než někdo jiný. Kontaktujte nás prostřednictvím formuláře u inzerátu. Ozveme se Vám s termínem prohlídky.
| Cena: |
(za nemovitost) 3 750 000,- Kč
(včetně provize a právního servisu, bez poplatků)
|
|---|
| Číslo podlaží v domě | 3 |
|---|---|
| Počet podlaží objektu | 3 |
| Celková podlahová plocha | 251 m² |
| Druh objektu | cihlová |
| Stav objektu | dobrý |
| Energetická třída | G - Mimořádně nehospodárná |
| Počet podlaží pod zemí | 1 |
| Vybavení | sklep |
| Umístění objektu | centrum |
| Vybaveno | Nezařízeno |
| Topení | Ústřední - plynové |
| Elektřina | 230 V |
| Plyn | Zaveden |
| Připojení na internet | Jiné |
| Užitná plocha | 251 m² |
| Plocha zahrady | 630 m² |
| Inženýrské sítě | Vodovod Kanalizace Plyn Elektřina |
| Druh stavby | rodinný dům, rekreační chalupa, rekreační pozemek |
| Poloha objektu | samostatný |




