| Číslo zakázky: | 728681 | ![]() Karta nemovitosti |
|---|---|---|
| Typ zakázky: | prodej |
Hledáte výjimečnou investiční příležitost nebo soukromý azyl v srdci jižní Moravy? Nabízíme k prodeji rozestavěný objekt vinného sklepa s nadstandardním ubytovacím zázemím v žádané lokalitě Hovorany, přímo v malebné sklepní uličce Na Benátkách, s výhledem na místní rybník.
Stav stavby: Prakticky se jedná o novostavbu. Původní objekt byl kvůli špatnému stavu demolován a od základů postaven znovu. Aktuálně je dokončena hrubá stavba (obvodové i vnitřní zdivo, zateplená střecha, okna, dveře a komín).
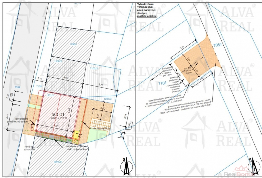
Pozemky: Sklep stojí na pozemku o výměře 86 m?. Součástí prodeje jsou navazující pozemky (bývalý vinohrad) o celkové rozloze 756 m?, které nabízejí prostor pro terasu, zahradu či jiné využití.
Stavební povolení: Platné do 06/2027, což umožňuje okamžité pokračování v pracích bez administrativních průtahů.
Inženýrské sítě: Vybudovány přípojky vody, kanalizace a elektřiny.
Dispoziční řešení (3 podlaží): Objekt je navržen tak, aby poskytoval maximální komfort pro rekreaci i komerční využití, 1. NP (Přízemí) je samostatně využitelné pro degustace nebo jako apartmán. Obsahuje společenskou místnost s přípravou pro kamna, sociální zařízení (WC, koupelna), technickou místnost a vstup do podzemního sklepa. Velkou výhodou je kolárna se samostatným vstupem. Ve druhém podlaží se nachází obytné patro s obývacím pokojem a kuchyňským koutem, ložnicí a vlastní koupelnou s WC. Třetí nadzemní podlaží nabízí klidovou zónu se dvěma ložnicemi, přičemž každá disponuje vlastní koupelnou s WC a šatnou (komorou). Sklep se nachází v první linii u rybníka, v klidné a přitom turisticky atraktivní části obce. Díky stavebnímu oddělení přízemí a dispozici horních pater lze objekt využívat jako celek pro velkou rodinu nebo rozdělit na samostatné ubytovací jednotky. Máte hotovou tu nejtěžší část stavby. Interiéry si můžete dokončit přesně podle vlastního vkusu. Velkorysé pozemky za objektem i před ním (vlastní parkovací stání) jsou v této lokalitě vzácností.
Přijeďte se přesvědčit o potenciálu tohoto místa osobně. Pro více informací a sjednání prohlídky kontaktujte makléře.
| Cena: |
(za nemovitost) 5 142 000,- Kč
(včetně provize a právních služeb) (včetně provize, další pozn.:včetně provize RK)
|
|---|
| Počet podlaží objektu | 3 |
|---|---|
| Druh objektu | cihlová |
| Stav objektu | ve výstavbě (hrubá stavba) |
| Umístění objektu | okrajová zástavba |
| Doprava | silnice MHD autobus |
| Zastavěná plocha | 86 m² |
| Plocha parcely | 842 m² |
| Užitná plocha | 96 m² |
| Plocha kanceláří | 96 m² |
| Poloha objektu | řadový |
