| Číslo zakázky: | 19375 | ![]() Karta nemovitosti |
|---|---|---|
| Typ zakázky: | prodej |
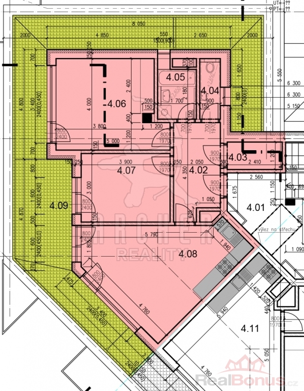
Nabízíme k prodeji byt 3+kk/L/S v OV, 123 m2 (50m2 lodžie, 2m2 sklep), garáž a venkovní parkovací místo, Praha 4 - Komořany, ul. Okružní. Byt č. 15 v projektu Viladům Okružní nabízí promyšlený prostor, který působí klidně, přehledně a přirozeně. Dispozice 3+kk je řešená s citem pro každodenní fungování bytu, denní část orientovaná na jihozápad plynule navazuje na terasu a celek díky tomu působí vzdušně a velmi dobře uspořádaně. Klidová část bytu je orientovaná na sever, což jí dává příjemnější, střídmější charakter. Velkou předností je právě terasa, která svou velikostí i tvarem rozšiřuje interiér směrem ven a vytváří přirozené propojení bydlení s venkovním prostorem i otevřenějšími výhledy do okolí. Byt je ve 4. NP, má dispozici 3+kk, podlahovou plochu 71,13 m a terasu o výměře 50,09 m.
Interiér stojí na kvalitních materiálech a nadčasovém provedení. Dřevěné podlahy, velká dřevěná okna s trojskly, čisté povrchy a vysoký standard koupelny vytvářejí prostředí, které působí kultivovaně, klidně a velmi příjemně.
Rezidenční klid s blízkostí parků, přírodních rezervací a cyklostezek podél Vltavy. Za domem je také oddechová louka v Komořanech s písčitou pláží.
Je to bydlení, které staví na kvalitě, promyšlenosti a příjemném každodenním užívání.
Stavba zahájena (kolaudace 4. čtvrtletí 2027). Prezentace obsahuje vizualizaci. V ceně není zahrnut sklep a vnitřní parkovací místo.
Financování:
při podpisu rezervace: 10%
po zapsání rozestavěné jednotky do KN: 20%
po kolaudaci a podpisu KS: 70%
| Cena: |
(za nemovitost) 14 278 776,- Kč
(včetně provize)
|
|---|
| Dispozice bytu | 3+kk |
|---|---|
| Číslo podlaží v domě | 4 |
| Počet podlaží objektu | 4 |
| Celková podlahová plocha | 123 m² |
| Druh objektu | skeletová |
| Stav objektu | novostavba |
| Energetická třída | B - Velmi úsporná |
| Vlastnictví | osobní |
| Počet podlaží pod zemí | 1 |
| Plocha teras | 50 m² |
| Plocha sklepu | 2 m² |
| Bezbariérový byt | ano |
| Umístění objektu | klidná část obce |
| Vybaveno | Částečně zařízeno |
| Topení | Lokální - plynové |
| Odpad | Městská kanalizace |
| Rok kolaudace | 2 027 |
| Užitná plocha | 123 m² |




