| Číslo zakázky: | 26-07-103 | ![]() Karta nemovitosti |
|---|---|---|
| Typ zakázky: | prodej |
Každý kout zde má svůj příběh, a už při vstupu je jasné, že tohle není žádná tuctová stavba. Zvenku působí dům nenápadně o to větší překvapení čeká uvnitř. Za fasádou se skrývá překvapivě velkorysý prostor, který nabízí víc, než byste čekali.
Tento rodinný dům v samotném centru Hlučína je ideální volbou pro velkou rodinu, vícegenerační bydlení i pro ty, kteří chtějí propojit bydlení s podnikáním nebo investicí. Dispozice domu umožňuje rozdělení na dvě samostatné bytové jednotky, aniž by ztratil svůj charakter a atmosféru skutečného domova. Navíc se na zahradě nachází dřevostavba, sloužící jako kadeřnictví a bistro klub.
Dům se nachází přímo v centru Hlučína, kde máte vše, co potřebujete pro pohodlný každodenní život. Obchody, školy, školky, lékaři i veškeré služby jsou v docházkové vzdálenosti, takže se obejdete bez zdlouhavého dojíždění. Lokalita je ideální jak pro rodinné bydlení, tak pro podnikání centrum města zajišťuje výbornou dostupnost, viditelnost a dlouhodobou hodnotu nemovitosti.
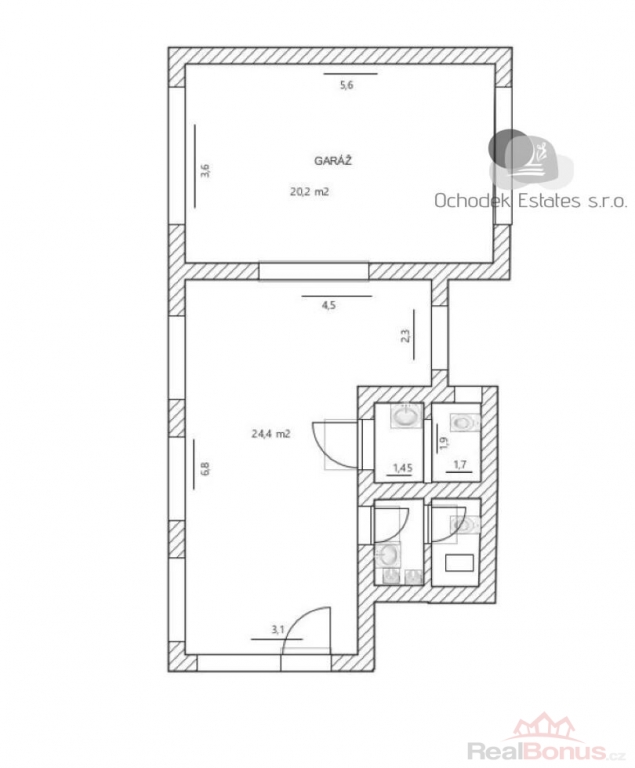
Rodinný dům
- kombinace původní části s přístavbou
- cca 140 m obytné plochy
- plastová okna (pouze dvě původní okna dodávají domu autentický šarm)
- voda v plastu, přístavba zateplená
- velmi dobrý stav dům je obyvatelný ihned
- možnost rozdělení na dvě bytové jednotky
- zahrada s novým přístřeškem na auto, zahradní chata na nářadí, 3 dlážděná parkovací stání
- parkování možné také na ulici před domem
Dispozice RD
V přízemí kuchyň s jídelnou, ložnice, obývák, dětský pokoj, koupelna s vanou i sprchovým koutem, samostatné WC, praktický úložný prostor pod schodištěm
V prvním patře velký otevřený obývací prostor se vstupem do ložnice a druhého pokoje, kde je příprava sítí pro vybudování kuchyně, koupelna s WC, a hlavně vstup na velkou terasu, která výrazně rozšiřuje obytný prostor
Komerční prostor
Podnikatelský bonus, který dává smysl a kde se otevírá obrovský potenciál celé nemovitosti. Od prvního dne zde můžete provozovat kadeřnictví, bistro nebo klidně obojí společně.
- dva samostatné záchody, z toho jeden bezbariérový
- velký otevřený prostor, dříve využívaný k posezení a výčep.
Proč právě tato nemovitost?
_ centrum města
_ bydlení + podnikání nebo pronájem na jednom místě
_ možnost dvou bytových jednotek
_ zachovalý stav, pouze drobné úpravy dle vkusu
_ investice s reálným výnosem
Možná výměna za byt v Hlučíně.
Pozn.: Financování pomůžeme zařídit. Energetický štítek se v současné době zpracovává, prozatím uvádíme zákonné "G". Uvedená kupní cena nezahrnuje zprostředkovatelský poplatek ve výši 3%+DPH z ujednané ceny.
| Cena: | (za nemovitost) 7 600 000,- Kč |
|---|
| Počet podlaží objektu | 2 |
|---|---|
| Celková podlahová plocha | 140 m² |
| Druh objektu | cihlová |
| Stav objektu | velmi dobrý |
| Energetická třída | G - Mimořádně nehospodárná |
| Vlastní pozemek | 502 m² |
| Umístění objektu | centrum |
| Odpad | Městská kanalizace |
| Plyn | Zaveden |
| Počet míst k parkování | 4 |
| Zastavěná plocha | 109 m² |
| Užitná plocha | 140 m² |
| Nebytové prostory | 73 m² |
| Poloha objektu | rohový |




