| Číslo zakázky: | 234796 | ![]() Karta nemovitosti |
|---|---|---|
| Typ zakázky: | prodej |
Nabízíme k prodeji rodinný dům v obci Zastávka u Přeštic, ideální jak pro bydlení, tak pro podnikání.
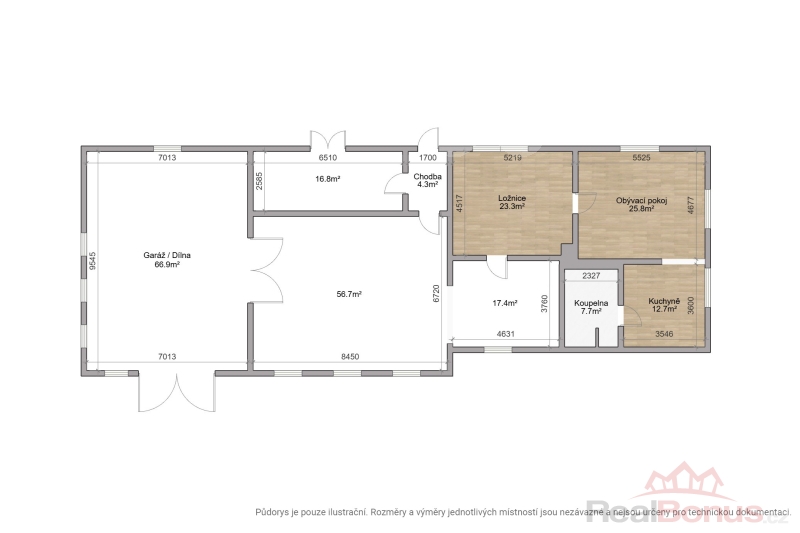
Dům o dispozici 2+kk a užitné ploše 69 m2; je vhodný pro menší rodinu nebo jednotlivce. Součástí nemovitosti je plně vybavená autodílna, která nabízí skvělou příležitost pro pokračování v zavedené činnosti nebo realizaci vlastního podnikatelského záměru.
Základní informace:
Dispozice: 2+kk
Užitná plocha domu: 69 m2;
Zastavěná plocha: necelých 250 m2;
Pozemek: 863 m2;
Topení: lokální na tuhá paliva
Voda: obecní vodovod
Odpad: septik
Plyn: není zaveden
Nemovitost se nachází v klidné lokalitě s dobrou dostupností do Přeštic i Plzně. Díky kombinaci bydlení a podnikatelského zázemí představuje ideální investici pro ty, kteří chtějí spojit práci s domovem.
Pro více informací nebo domluvení prohlídky nás neváhejte kontaktovat.
| Cena: |
(za nemovitost) 4 100 000,- Kč
(cena k jednání)
|
|---|
| Počet podlaží objektu | 1 |
|---|---|
| Druh objektu | smíšená |
| Stav objektu | dobrý |
| Energetická třída | G - Mimořádně nehospodárná |
| Vlastnictví | osobní |
| Vlastní pozemek | 863 m² |
| Vybavení | sklep zahrada |
| Vybaveno | Nezařízeno |
| Topení | Lokální - tuhá paliva |
| Doprava | vlak silnice autobus |
| Elektřina | 380 V |
| Voda | dálkový vodovod |
| Odpad | Septik |
| Plyn | Není |
| Parkování | venkovní stání |
| Zastavěná plocha | 863 m² |
| Plocha parcely | 863 m² |
| Ostatní | Plot Garáž |
| Užitná plocha | 69 m² |
| Počet bytů - celkem | 1 |
| Dílna | 126 m² |
| Plocha zahrady | 613 m² |
| Poloha objektu | samostatný |
| K dispozici od | 27.03.2026 |




