| Číslo zakázky: | 00226 | ![]() Karta nemovitosti |
|---|---|---|
| Typ zakázky: | prodej |
Představujeme vám jedinečnou investiční příležitost v obci Úpice ? obchodní prostory o celkové ploše přibližně 1705 m2, rozprostírající se ve třech nadzemních podlažích. Tento objekt již prošel velmi nákladnou a důkladnou sanací spodní stavby, což představuje zásadní základ pro vaše budoucí plány a minimalizuje rizika spojená s nejnáročnější fází rekonstrukce. Přestože je dům připraven k dalším úpravám a transformaci podle vašich představ, klíčové stavební zásahy odvlhčení již byly dokončeny, což otevírá dveře k realizaci vašich vizí.
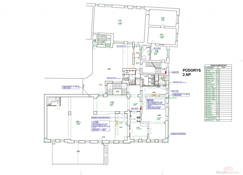
V současné době jsou prostory flexibilně využívány pro skladování nebo jako místo pro pořádání kulturních akcí, což dokazuje jejich okamžitou adaptabilitu. Druhé nadzemní podlaží bylo částečně zrekonstruováno právě pro tyto účely a nabízí moderní vzduchotechniku, kompletně zrekonstruované sociální zařízení a osazené požární hydranty, zajišťující bezpečnost a komfort pro návštěvníky. Tato již existující infrastruktura poskytuje okamžitou hodnotu a možnost generovat příjem, zatímco plánujete další rozvoj.
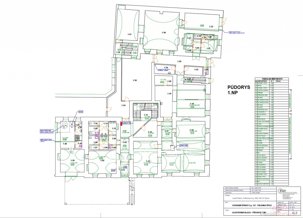
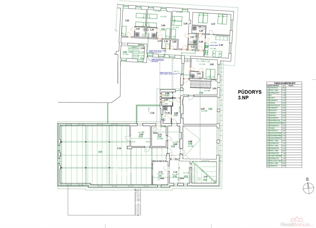
Kromě stávajícího stavu je součástí prodeje i kompletní projektová dokumentace, která detailně rozpracovává potenciál budovy. Podle tohoto projektu se v přízemí může nacházet atraktivní restaurace, v prvním nadzemním podlaží je pak plánován moderní bar, klubovna a veškeré potřebné zázemí. Druhé nadzemní podlaží je ideálně navrženo pro vytvoření komfortních bytových jednotek, což z objektu činí ideální mix pro komerční i rezidenční využití. Tato flexibilita otevírá široké spektrum investičních strategií, od pronájmu komerčních prostor po prodej bytů.
Tato nemovitost představuje mimořádnou šanci pro vizionáře a investory, kteří hledají projekt s pevným základem a jasnou cestou k budoucímu zhodnocení. S již provedenou sanací a připravenou projektovou dokumentací se jedná o investici s obrovským potenciálem v žádané lokalitě. Neváhejte a objevte všechny možnosti, které tento unikátní objekt v Úpici nabízí.
Kontaktujte nás pro bližší informace a prohlídku, abyste si mohli představit vaši budoucí úspěšnou realizaci.
| Cena: |
(za nemovitost) 4 999 999,- Kč
(včetně právního a hypotečního servisu, včetně provize RK)
|
|---|
| Druh objektu | cihlová |
|---|---|
| Stav objektu | dobrý |
| Energetická třída | G - Mimořádně nehospodárná |
| Telekomunikace | Internet |
| Topení | Lokální - elektrické |
| Doprava | silnice MHD autobus |
| Počet míst k parkování | 5 |
| Ostatní | Parkoviště |
| Užitná plocha | 1 705 m² |
| Plocha kanceláří | 1 705 m² |
| Komunikace | asfaltová |
| Druh prostor | Obchodní |




