| Číslo zakázky: | 234909 | ![]() Karta nemovitosti |
|---|---|---|
| Typ zakázky: | prodej |
Hledáte byt, který má atmosféru? Byt, kde večer zatopíte v krbu a opravdu se cítíte doma?
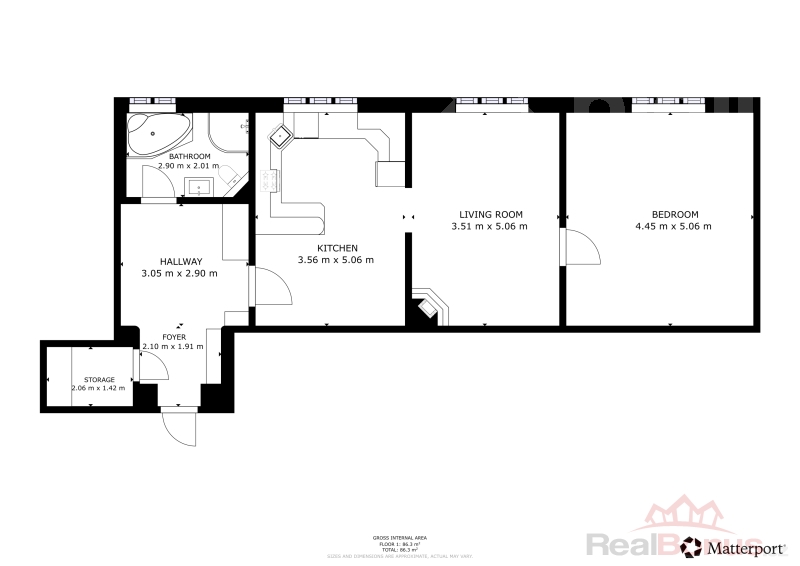
Nabízím k prodeji byt s dispozicí 2+1 o výměře 76,5 m2 na ulici Pražská ve Znojmě.
Byt se nachází se ve 3. patře cihlového domu z roku 1932. Plocha bytu je dle prohlášení vlastníka 76,5m2, k němu náleží sklepní kóje.
Dominantou obývacího pokoje je krb, který vytváří jedinečnou atmosféru a dává bytu charakter.
Nad bytem se nachází půdní prostor, který je možné po dohodě odkoupit a využít pro vytvoření mezonetového bydlení.
Byt prošel částečnou rekonstrukcí: kuchyňská linka včetně spotřebičů, rozvody elektroinstalace v mědi, výměna oken, klimatizace v kuchyni, plovoucí podlaha v ložnici a v kuchyni PVC, koupelna.
V technické místnosti se nachází vlastní vytápění plynovým kotlem, ohřev vody bojlerem a najdete v ní i místo na pračku.
Bytový dům byl revitalizován - nová střecha, výměna oken za plastová, nové stoupačky, nové vstupní dveře.
Měsíční náklady činí 1.690,-Kč, plus záloha na spotřebu zemního plynu a elektřiny.
Byt je k nastěhování od 1.7.2026 ( po domluvě i dříve).
Ulice Pražská nabízí kompletní občanskou vybavenost - školy, školky, obchody, dětské hřiště, služby i dobrou dostupnost do centra Znojma.
Doporučuji osobní prohlídku této nemovitosti. S financováním Vám ráda pomůžu. Pro více informací či domluvení prohlídky mne kontaktujte.
| Cena: |
(za nemovitost) 4 589 800,- Kč
(včetně provize a právních služeb) (včetně právního servisu a provize RK)
|
|---|
| Dispozice bytu | 2+1 |
|---|---|
| Číslo podlaží v domě | 4 |
| Počet podlaží objektu | 4 |
| Celková podlahová plocha | 86 m² |
| Druh objektu | cihlová |
| Stav objektu | dobrý |
| Energetická třída | E - Nehospodárná |
| Vlastnictví | osobní |
| Počet podlaží pod zemí | 1 |
| Vybavení | sklep |
| Vybaveno | Částečně zařízeno |
| Užitná plocha | 76 m² |




