| Číslo zakázky: | 32150 | ![]() Karta nemovitosti |
|---|---|---|
| Typ zakázky: | prodej |
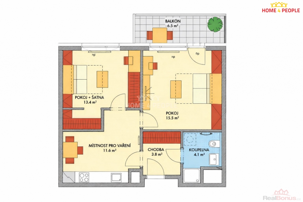
Včetně provize a právního servisu., Nabízíme k prodeji moderní byt 2+1 o celkové ploše 51 m + lodžie 6,5 m, v oblíbeném rezidenčním projektu Kaskády Barrandov společnosti FINEP. Byt se nachází v klidné ulici Gollové s výbornou dostupností do centra města. Jednotka je umístěna v budově Q.
Předpokládané dokončení stavby je 31.12.2027.
Byt bude proveden v nadstandardu, což znamená, že byt disponuje nadstandardně řešenou koupelnou a kvalitními interiérovými dveřmi.
Byt se nachází v 5. nadzemním podlaží z celkových šesti a je v družstevním vlastnictví. Okna i lodžie jsou orientovány na západ a také do vnitrobloku, kde nejsou žádná auta. Orientace bytu je severozápad. Díky praktickému řešení je byt vhodný jak pro vlastní bydlení, tak i jako investice k pronájmu.
Projekt je v současné době ve fázi výstavby. Budoucí majitel tak má stále možnost vybrat si zařizovací předměty, kuchyňskou linku, povrchové materiály i celkovou vnitřní barevnost bytu.
Výhody družstevního vlastnictví:
Bez nutnosti dokládat příjem
Není třeba hypoteční úvěr
Cena bytu je splácena formou měsíčních splátek (anuita)
Platby začínají až po kolaudaci do té doby nic neplatíte
Financování:
Odstupné za byt (zaplatíte teď): 2.790.000,- Kč
Anuita k bytu: 6.632.462,- Kč
Měsíční splátky: 36.780,- Kč. Platí se až po převzetí nemovitosti
Cena za byt celkem: 9.422.462,-
Odstupné za garáž: 250.000,- Kč
Anuita ke garáži: 400.000,- Kč
Měsíční splátka ke garáži: 2.218,- Kč
Možnost mimořádných splátek nebo úplného doplacení anuity s převodem bytu do osobního vlastnictví.
V přímé blízkosti se nachází veškerá občanská vybavenost včetně škol, školek, lékařů, obchodů a restaurací. Nákupní centrum Nový Smíchov je vzdáleno jen 10 minut jízdy. V docházkové vzdálenosti je mnoho možností k relaxaci a sportu, jako jsou Prokopské údolí a Hlubočepy. Výborné dopravní spojení do města: 3 minuty chůze na MHD, 12 minut na metro B, zastávka Smíchovské nádraží, a na letiště Václava Havla jen 20 minut jízdy. Lokalita je vhodná jak k vlastnímu bydlení, tak za účelem pronajímání. Skvělá investiční příležitost. Ev. číslo: 32150. Energetický štítek: B
| Cena: |
(za nemovitost) 2 790 000,- Kč
(Včetně provize a právního servisu.)
|
|---|
| Dispozice bytu | 2+1 |
|---|---|
| Číslo podlaží v domě | 5 |
| Počet podlaží objektu | 6 |
| Celková podlahová plocha | 51 m² |
| Druh objektu | smíšená |
| Stav objektu | ve výstavbě (hrubá stavba) |
| Energetická třída | B - Velmi úsporná |
| Vlastnictví | družstevní |
| Vybavení | balkon |
| Vybaveno | Nezařízeno |
| Užitná plocha | 51 m² |




