| Číslo zakázky: | N/RSB/21613/26 | ![]() Karta nemovitosti |
|---|---|---|
| Typ zakázky: | prodej |
Nabízíme k prodeji administrativní budovu ve vyhledávané brněnské lokalitě, na pomezí Černých Polí a Husovic na ul. Míčkova. Jedná se o 4 podlažní rohový objekt. Součástí prodeje je jedno garážové stání a pozemek za garáží.
Zastavěná plocha: 233 m2 + 20 m2 garáž (vč. 1/10 podílu na zahradě 641 m2 za garáží)
Celková užitná plocha nemovitosti: 559,35 m2
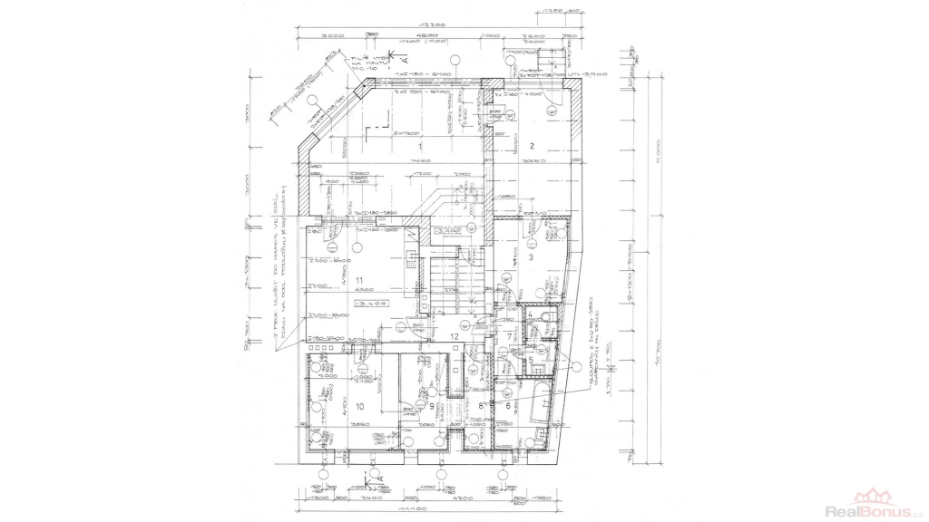
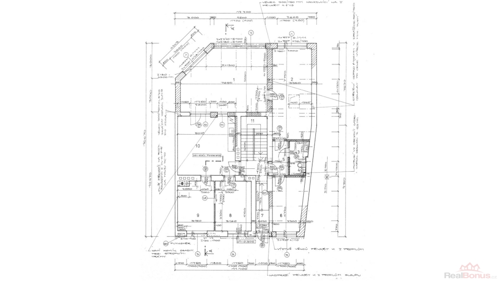
1.PP ? 153,34 m2 ? jedná se o plnohodnotné podlaží - nemovitost ve svahu (zasedačka, kanceláře, koupelna, kuchyňka, technická místnost, trezorová místnost, schodiště výstup na cca 10 m2 zahradu,)
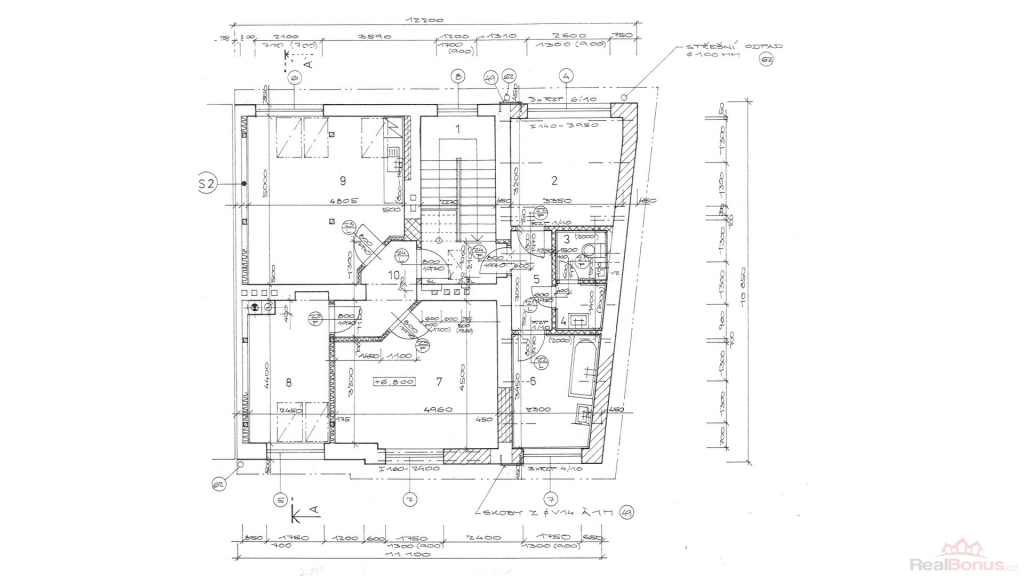
1.NP ? 147,02 m2 ? (kanceláře, kuchyňka, WC, chodba, schodiště)
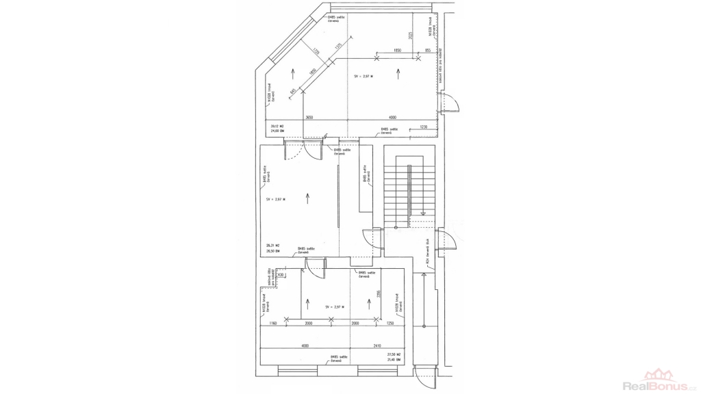
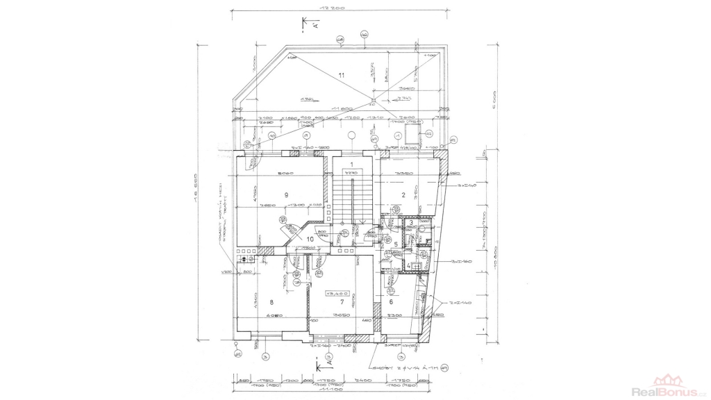
2.NP ? 100,99 m2 kanceláře, kuchyňka, WC, schodiště + 61,62 m2 terasa s překrásným výhledem na Brno
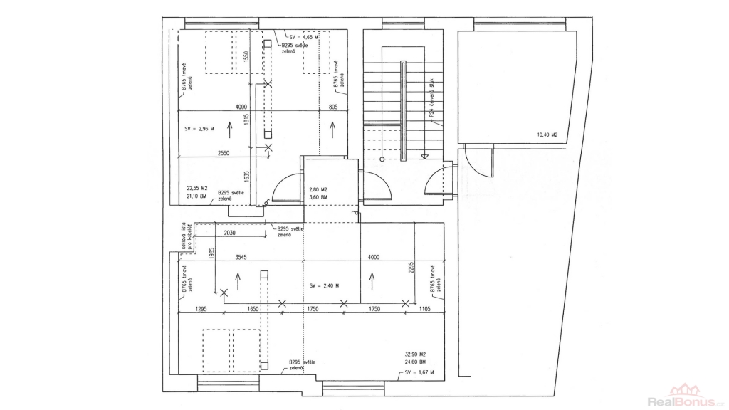
3.NP ? 96,38 m2 ? podkrovní kanceláře, serverovna, schodiště
Nemovitost byla postavena v roce 1947 jako rodinný dům, je v průběžně udržovaném stavu, v roce 1995 byla provedena celková rekonstrukce domu včetně přístavby 1.PP a 1.NP směrem do zahrady a vybudování nového užitného podkroví. Dispozice umožňují zpětné přebudování na bydlení.
Průkaz energetické náročnosti budovy nebyl zpracován, proto uvádíme kategorii G.
Bližší informace rádi poskytneme v naší realitní kanceláři.
| Cena: | (za nemovitost) 28 000 000,- Kč |
|---|
| Počet podlaží objektu | 4 |
|---|---|
| Druh objektu | cihlová |
| Stav objektu | dobrý |
| Energetická třída | G - Mimořádně nehospodárná |
| Počet podlaží pod zemí | 1 |
| Parkování | garáž |
| Počet míst k parkování | 2 |
| Plocha parcely | 233 m² |
| Ostatní | Garáž Parkoviště |
| Užitná plocha | 515 m² |
| Plocha kanceláří | 515 m² |
| Druh prostor | Kanceláře |
