| Číslo zakázky: | 232974 | ![]() Karta nemovitosti |
|---|---|---|
| Typ zakázky: | prodej |
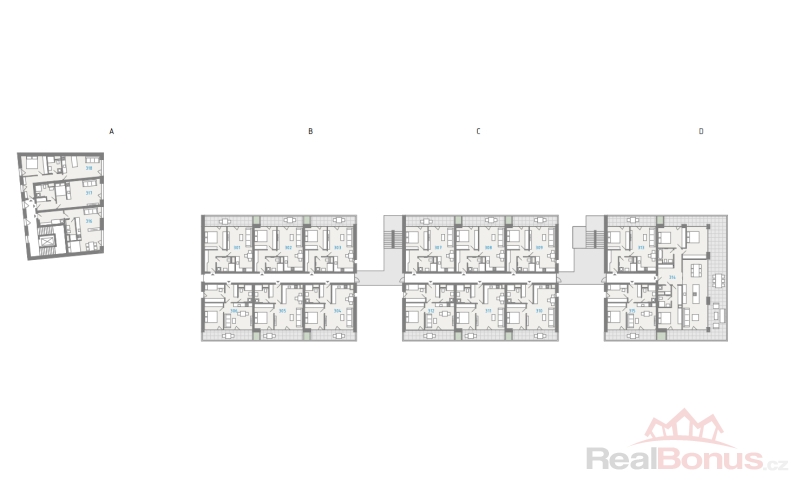
Nový byt 1+kk v moderní rezidenci v Hradci Králové
Nabízíme k prodeji zcela nový byt 1+kk v nově realizovaném developerského projektu Rezidence Pražská 84, který vzniká v atraktivní části Hradce Králové.
Velikost bytu je 42,1 m2, byt je orientovaný na jih a nachází se ve 3.nadzemním podlaží.
Projekt je výsledkem práce renomovaného ateliéru Žárovka Architekti a celkem nabízí 52 bytových jednotek. Od běžného projektu se odlišuje především nízkopodlažní zástavbou, menším počtem bytů v jednotlivých domech a uzavřeným, klidným konceptem bydlení.
Soukromí, bezpečí a technologie budoucnosti
Celá rezidence je navržena s důrazem na komfort, bezpečí a dlouhodobou udržitelnost.
Díky těmto prvkům projekt nabízí nejen moderní bydlení, ale i nižší provozní náklady a vyšší míru bezpečí.
Lokalita, která funguje
Poloha projektu umožňuje rychlé a pohodlné spojení jak do centra města, tak mimo Hradec Králové.
MHD je dostupná 1 minutu chůze,
nájezd na dálnici D11 je vzdálený přibližně 2 minuty jízdy,
do Prahy (Černý Most) se dostanete zhruba za hodinu autem.
V bezprostředním okolí najdete lékaře, školy, školky i nákupní centrum Aupark, což dělá z lokality ideální místo pro každodenní život.
Možnost klientských úprav
Do určité fáze výstavby je možné:
upravit standardy interiéru,
u vybraných bytů měnit dispozici
přizpůsobit bydlení vlastním představám ještě před dokončením.
Parkování a společné prostory
Veškerá parkovací stání jsou řešena v krytých prostorech pod budovou, takže okolí domů zůstává klidné, čisté a bez rušivých prvků. Na projekt navazuje komunitní zahrada, která vytváří přirozený prostor pro setkávání rezidentů i relax.
Kvalitní standard bydlení
Byty jsou navrženy s důrazem na funkční dispozice a nadčasový design. Standard zahrnuje kvalitní podlahy, dveře a obklady v souladu s aktuálními trendy, přičemž je možné zvolit i prémiové materiály.
Financování bez starostí
V případě potřeby vám zajistíme kompletní hypoteční servis a výhodné podmínky financování napříč bankovním trhem - od prvního návrhu až po podpis úvěrové smlouvy.
| Cena: |
(za nemovitost) 4 736 193,- Kč
(včetně provize a právních služeb)
|
|---|
| Dispozice bytu | 1+kk |
|---|---|
| Číslo podlaží v domě | 3 |
| Počet podlaží objektu | 4 |
| Celková podlahová plocha | 42 m² |
| Druh objektu | cihlová |
| Stav objektu | ve výstavbě (hrubá stavba) |
| Energetická třída | B - Velmi úsporná |
| Vlastnictví | osobní |
| Vybavení | výtah sklep |
| Vybaveno | Nezařízeno |
| Topení | Klimatizace |
| Doprava | vlak silnice autobus letiště |
| Voda | dálkový vodovod |
| Odpad | Městská kanalizace |
| Plyn | Není |
| Občanská vybavenost | Škola Školka Zdravotnická zařízení Pošta Supermarket Kompletní síť obchodů a služeb Restaurace Místní úřad Kulturní zařízení Koupaliště |
| Stáří objektu | 1 |
| Rok kolaudace | 2 027 |
| Bytové jádro | Zděné |
| Užitná plocha | 42 m² |




