| Číslo zakázky: | 656575 | ![]() Karta nemovitosti |
|---|---|---|
| Typ zakázky: | prodej |
Cena včetně provize a právního systému, prodej prostorného rodinného domu se dvěma byty (4+1 a 4+kk) v srdci Horních Počernic v ulici Spojenců
Hledáte bydlení, které kombinuje klid předměstí s perfektní dostupností Prahy? Nabízíme vám exkluzivní příležitost ke koupi samostatně stojícího rodinného domu v prestižní části Prahy. Tento dům je díky své dispozici ideální jako vícegenerační bydlení, kombinace vlastního bydlení s podnikáním, nebo jako výhodná investice k pronájmu dvou samostatných jednotek.
Klíčové parametry nemovitosti:
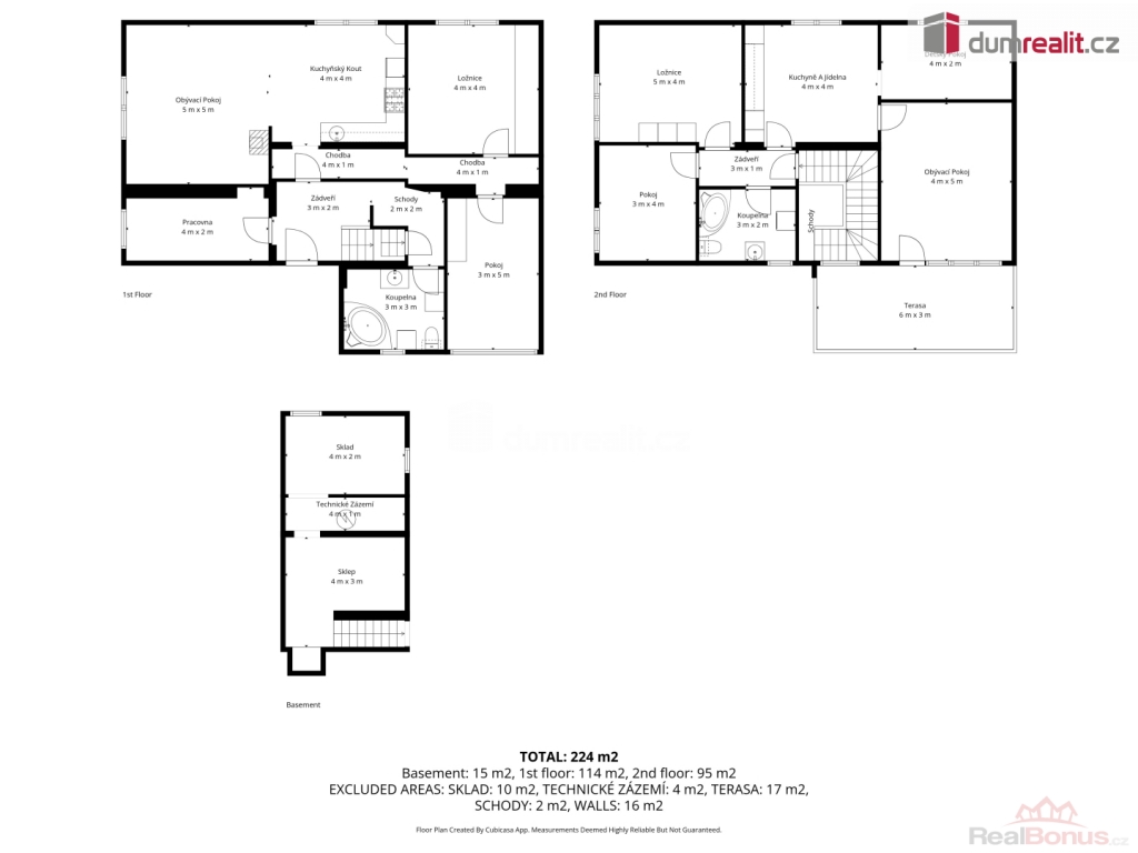
Celková užitná plocha: cca 224 m (včetně příslušenství).
Dispozice: Dvě plnohodnotné bytové jednotky se samostatnými vstupy z centrálního schodiště.
Garáž a parkování: Velkorysá garáž pro více vozů + možnost parkování na pozemku.
Dispozice domu:
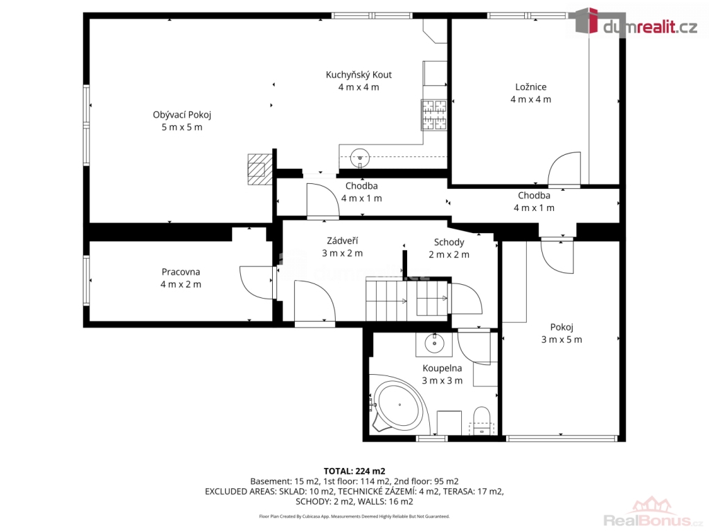
1. patro (114 m) Byt 4+1:
Dominantou tohoto patra je prostorný obývací pokoj s krbem, který dodává interiéru útulnou atmosféru. Kuchyně s jídelním koutem je oddělena, což ocení milovníci klasického uspořádání. Patro dále nabízí tři ložnice/pokoje, koupelnu s vanou a samostatné WC.
2. patro (95 m) Byt 4+kk:
Moderněji koncipované podlaží, kterému vévodí světlý obývací pokoj propojený s kuchyňským koutem a jídelnou. Z obývacího pokoje je přímý vstup na velkou terasu (17 m) s výhledem do zeleně, ideální pro letní snídaně nebo večerní relaxaci. Nachází se zde další tři samostatné neprůchozí pokoje a stylová koupelna s rohovou vířivou vanou.
Technické zázemí (Suterén/Přízemí):
Dům je částečně podsklepen a nabízí bohaté úložné prostory sklad (10 m), technické zázemí (4 m) a další sklepní prostory.
Technické informace:
Vytápění: Primárně řešeno elektrokotlem, v obývacím pokoji krb na tuhá paliva.
Inženýrské sítě: Dům je napojen na obecní vodovod a kanalizaci. Plyn je zaveden do domu, což umožňuje snadnou změnu typu vytápění dle preferencí nového majitele.
Stav: Dům je udržovaný, v interiéru proběhly dílčí modernizace (kuchyňské linky, podlahy, koupelny).
Lokalita, kterou si zamilujete:
Horní Počernice jsou vyhlášené skvělou občanskou vybaveností. V docházkové vzdálenosti najdete školy, školky, lékaře i restaurace.
Doprava: Skvělé napojení na Pražský okruh a dálnici D11. Autobusem jste za pár minut na metru B Černý Most. Vlakové spojení (S-linky) vás doveze do centra Prahy (Masarykovo nádraží) za pouhých 20 minut.
Volný čas: Blízkost Chvalského zámku, cyklostezek a přírodního parku Klánovice-Čihadla.
Cena je včetně kompletního právního servisu.
Tento dům musíte vidět osobně, abyste ocenili jeho potenciál a atmosféru. Kontaktujte nás a domluvte si prohlídku ještě dnes! Ev. číslo: 655961. Energetický štítek: G
| Cena: |
(za nemovitost) 16 999 999,- Kč
(Cena včetně provize a právního systému) (včetně provize)
|
|---|
| Počet podlaží objektu | 2 |
|---|---|
| Celková podlahová plocha | 209 m² |
| Druh objektu | cihlová |
| Stav objektu | dobrý |
| Energetická třída | G - Mimořádně nehospodárná |
| Vlastní pozemek | 596 m² |
| Zastavěná plocha | 132 m² |
| Užitná plocha | 209 m² |
| Poloha objektu | samostatný |
