| Číslo zakázky: | 235082 | ![]() Karta nemovitosti |
|---|---|---|
| Typ zakázky: | prodej |
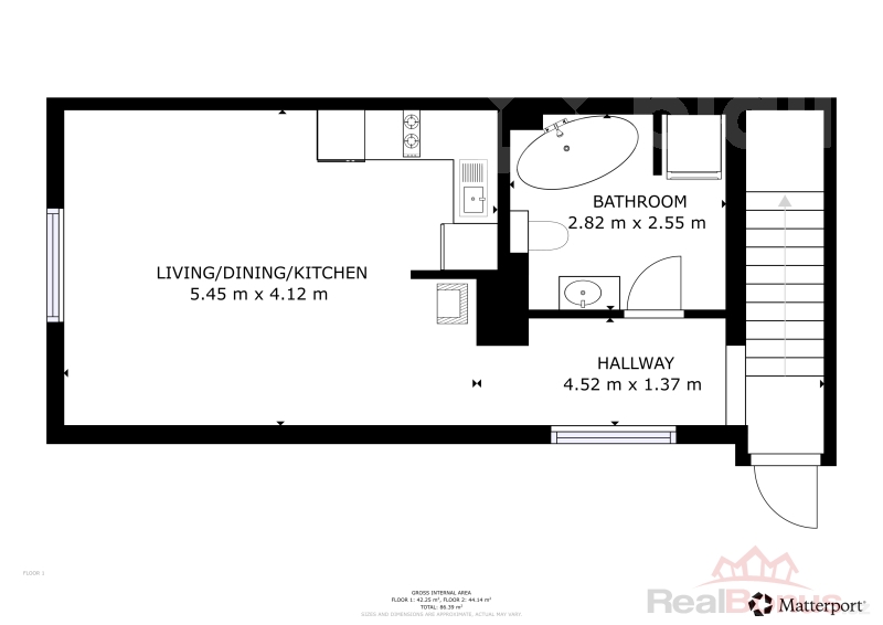
Stavba s dispozicí 3+kk byla kolaudována v r. 1975. Nachází se na rovinatém pozemku o rozloze 548 m2 Zastavěná plocha domu je 52 m2, podlahová plocha činí 104 m2.
V přízemí se nachází vstupní chodba, obývací pokoj, kuchyňský kout, technická místnost a koupelna s vanou a toaletou.
V 1. patře je prostorná ložnice, kterou je možno rozdělit na dvě místnosti, dále dětský pokoj a koupelna se sprchovým koutem a toaletou.
Stavba je zděná (pálená cihla), s pouze částečným zateplením (východní strana 100 mm EPS). Vytápění je řešeno elektrickým kotlem o výkonu 24 kW, ohřev vody pomocí elektrického bojleru o objemu 100 litrů. Jako sekundární zdroj vytápění je možno využít krbovou vložku. V celém domě jsou plastová okna s termoizolačními trojskly. Dům prošel rekonstrukcí, byly instalovány nové rozvody vody, odpadu a elektřiny.
Zálohové platby na elektřinu jsou nastaveny na 2 000,- Kč/měs. Voda 2 000,- Kč/měs.
Dům je napojen na veřejný vodovodní řad a tlakovou kanalizaci.
Nemovitost se nachází v klidné části původní zástavby obce. Před domem možnost parkování pro dvě osobní auta.
Jsou zde všechny základní služby občanské vybavenosti, obchody, restaurace, kavárny, pošta, mateřská a základní škola, dětský lékař, praktický lékař, čerpací stanice, kadeřnictví, knihovna, sportovní oddíly, městské lázně s koupalištěm. Kompletní síť služeb je v Mělníku vzdáleném 20 km. Mšeno leží na železniční trase Mladá Boleslav - Mělník.
Město Mšeno je vstupní branou do CHKO Kokořínsko - Máchův kraj. Okolí nabízí bezpočet turistických, cyklistických i naučných stezek, skalní vyhlídky, jedinečné pískovcové útvary, hrady Kokořín, Bezděz a Houska, Máchovo jezero, a především krásnou přírodu.
Pro bližší informace a prohlídku, mě neváhejte kontaktovat.
| Cena: |
(za nemovitost) 5 290 000,- Kč
(včetně provize a právních služeb) (včetně provize a právního servisu)
|
|---|
| Druh objektu | cihlová |
|---|---|
| Stav objektu | po částečné rekonstrukci |
| Energetická třída | G - Mimořádně nehospodárná |
| Vlastnictví | osobní |
| Vlastní pozemek | 548 m² |
| Umístění objektu | klidná část obce |
| Vybaveno | Částečně zařízeno |
| Občanská vybavenost | Škola Školka Zdravotnická zařízení Pošta Restaurace Kulturní zařízení Koupaliště |
| Zastavěná plocha | 52 m² |
| Plocha parcely | 548 m² |
| Užitná plocha | 104 m² |
| Poloha objektu | samostatný |
| K dispozici od | 30.06.2026 |




