| Číslo zakázky: | 980262 | ![]() Karta nemovitosti |
|---|---|---|
| Typ zakázky: | prodej |
Nabízíme k prodeji útulnou rekreační chatu v klidné a velmi atraktivní lokalitě Křivoklátska, v katastru obce Sýkořice.
Chata se nachází na lesním pozemku v mírném svahu, obklopená přírodou, s dostatkem soukromí a krásnými výhledy do okolní krajiny. Řeka Berounka je v údolí cca 7min. pěšky. Jedná se o ideální místo pro odpočinek, víkendové pobyty i únik z města.
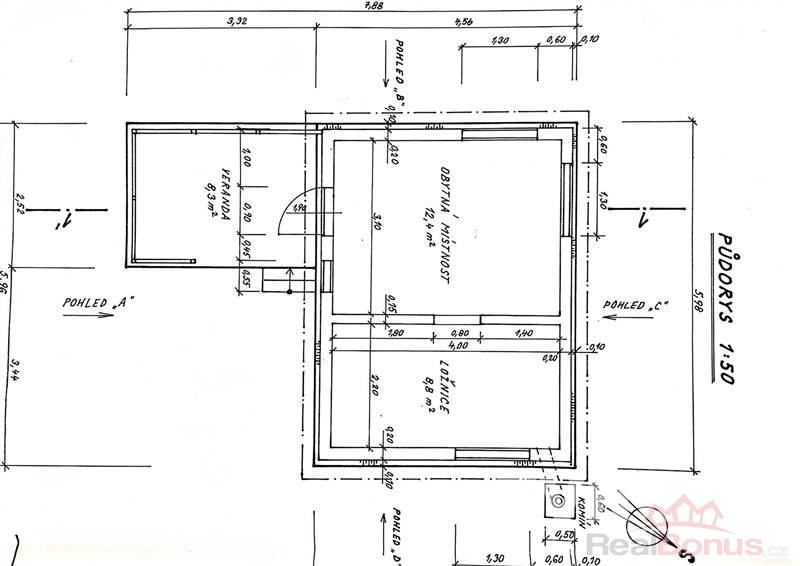
Dispozice chaty 1+1 / terasa, sklípek, úložné podkroví:
obytná místnost (cca 12,4 m)
ložnice (cca 8,8 m)
veranda (cca 8,3 m)
praktický sklípek pod částí objektu a podkroví, část přístupná z obytné místnosti sloužila také na spaní, druhá část na uskladnění věcí.
Chata je napojena na elektřinu, vytápění je řešeno kamny na tuhá paliva (momentálně kamna v chatě nejsou). Voda je zajištěna z nedaleké obecní pumpy, toaleta je suchá.
Stavba je evidována v katastru nemovitostí a je užívána k rekreaci. Objekt je ve funkčním velmi dobrém stavu a připraven k okamžitému užívání. Přístup k chatě je autem k dostupným možnostem parkování a následně lesní pěšinou, možnost je ze dvou stran. Pozemek je užíván na základě nájemní smlouvy (aktuálně sjednána na dobu určitou s možností prodloužení). Roční nájemné činí 10.000 Kč.
Výhody:
krásná a klidná lokalita v CHKO Křivoklátsko
samostatná chata se soukromím
elektřina v objektu
okamžitě využitelné bez nutnosti investic
ideální pro milovníky přírody a klidu
Tato nabídka je vhodná pro zájemce, kteří hledají jednoduché a dostupné rekreační zázemí v přírodě.
Více informací na vyžádání.
| Cena: |
(za nemovitost) 840 000,- Kč
(včetně provize)
|
|---|
| Počet podlaží objektu | 1 |
|---|---|
| Celková podlahová plocha | 21 m² |
| Druh objektu | dřevěná |
| Stav objektu | před rekonstrukcí |
| Energetická třída | G - Mimořádně nehospodárná |
| Vlastnictví | jiné |
| Vlastní pozemek | 35 m² |
| Plocha teras | 8 m² |
| Plocha sklepu | 7 m² |
| Vybaveno | Možno zařídit |
| Rok rekonstrukce | 1 983 |
| Stáří objektu | 1 943 |
| Zastavěná plocha | 35 m² |
| Užitná plocha | 21 m² |
