| Číslo zakázky: | XA-475B | ![]() Karta nemovitosti |
|---|---|---|
| Typ zakázky: | pronájem |
Dobrý den, hledáte byt v dobrém stavu a klidné lokalitě v Chrudimi? Uvítáte částečně zařízený byt? Požadujete byt s balkónem?
Možná právě Vás by mohla zaujmout naše nová nabídka.
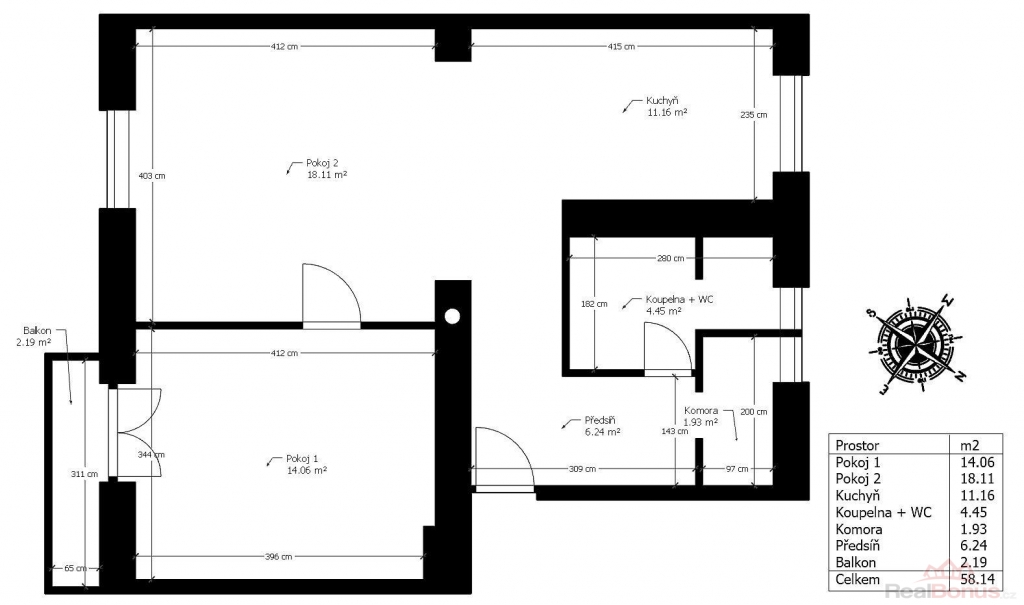
Jedná se o pronájem bytu upraveného z 2+1 na vzdušnou dispozici 2+kk o výměře 55,95 m2 + balkón a sklep. Byt je umístěný v 2.NP zděného bytového domu bez výtahu. V minulosti prošel při změně dispozice částečnou rekonstrukcí. Nyní bude provedena realizace ústředního plynového vytápění.
Lokalita: ulice Fibichova, Chrudim.
Pronájem je včetně vybavení (myčka nádobí, lednička, pračka, sporák, jídelní stůl se židlemi, obývací stěna, křesla, pohovka, botník, věšák, šatní skříň).
Výše nájmu činí 13.000 Kč + 3.500 kč zálohy na energie. Peněžitá jistota (vratná kauce) 30.000 Kč. Provize RK 13.000 Kč.
Volný od 15.5.2026.
Děkuji za pozornost. Václav Růžička, realitní specialista.
Pronajímatel si vyhrazuje právo vybrat nájemce na základě jím zvolených kritérií.
| Cena: |
(za měsíc) 13 000,- Kč
(+ 3.500 Kč záloha na energie a služby)
|
|---|
| Dispozice bytu | 2+kk |
|---|---|
| Číslo podlaží v domě | 2 |
| Počet podlaží objektu | 3 |
| Druh objektu | cihlová |
| Stav objektu | po rekonstrukci |
| Energetická třída | C - Úsporná |
| Vlastnictví | osobní |
| Druh bytu | v nájemním domě (činžovním) |
| Počet podlaží pod zemí | 1 |
| Umístění objektu | centrum |
| Vybaveno | Částečně zařízeno |
| Topení | Ústřední - plynové |
| Druh stavby | budova/y, hala/y |
| Poloha objektu | samostatný |




