| Číslo zakázky: | 32105 | ![]() Karta nemovitosti |
|---|---|---|
| Typ zakázky: | pronájem |
+popl. 3400, + provize RK, převod elektřiny a plynu na nájemce cca 3500,-Kč, poplatky pro dvě osoby cca 3400,-, Zprostředkujeme Vám ve výhradním zastoupení majitele, dlouhodobý pronájem bytu 2+1 v jedné z nejoblíbenějších částí Prahy v těsné blízkosti Letné, přímo ve Veletržní ulici. Byt se nachází v klasickém činžovním domě s historickým kouzlem.
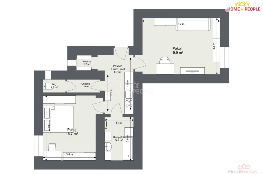
Dispozice bytu aktuálně zahrnuje dvě neprůchozí místnosti, jedna má okna do klidného vnitrobloku, kuchyň v prostorné chodbě, koupelnu a samostatné WC, komora. Byt je kompletně vybaven, ale je možné i část vystěhovat (některý nábytek na fotografiích je již vystěhovaný), vše na dohodě.
Vysoké stropy, původní špaletová okna a dostatek prostoru, který má charakter a atmosféru typickou pro pražské byty z počátku 20. století.
Letná je jednou z nejžádanějších lokalit v Praze v těsné blízkosti bytu se nachází Stromovka a Letenské sady, ideální pro procházky, sport i relaxaci. Kousek od domu najdete množství kaváren, restaurací, obchodů, galerií i kulturních institucí.
Dopravní dostupnost je vynikající stanice metra C a několik tramvajových linek v pěší vzdálenosti zajistí rychlé spojení do centra i dalších částí města.
Pro více informací neváhejte kontaktovat makléře či na mém webu najdete všechny fotografie. K dispozici od 1.5.2026. Prohlídky dle telefonické domluvy, na všechny emaily bude odpovězeno, prosím kontrolu složky spam. Těším se na naše společné setkání na prohlídce. Ev. číslo: 32105. Energetický štítek: G (1 kWh/m2/rok).
| Cena: |
(za měsíc) 19 000,- Kč
(+popl. 3400, + provize RK, převod elektřiny a plynu na nájemce cca 3500,-Kč, poplatky pro dvě osoby cca 3400,-)
|
|---|
| Dispozice bytu | 2+1 |
|---|---|
| Číslo podlaží v domě | 1 |
| Počet podlaží objektu | 6 |
| Celková podlahová plocha | 52 m² |
| Druh objektu | cihlová |
| Stav objektu | dobrý |
| Energetická třída | G - Mimořádně nehospodárná |
| Vlastnictví | osobní |
| Vybaveno | Nezařízeno |
| Užitná plocha | 52 m² |




