| Číslo zakázky: | 28211 | ![]() Karta nemovitosti |
|---|---|---|
| Typ zakázky: | prodej |
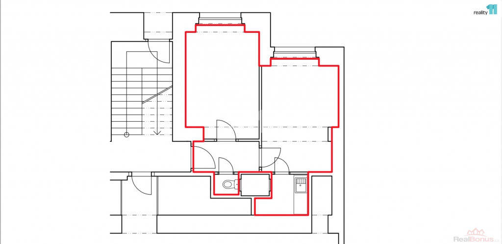
, Prodej ateliéru s parametry bytu dispozice 2+kk o celkové podlahové ploše 36,91 m. Nachází se v úrovni 1. nadzemního podlaží z pohledu dvora a 1. podzemního podlaží z pohledu ulice. Jednotka disponuje obývacím pokojem s kuchyňským koutem, ložnicí, koupelnou se zděným sprchovým koutem a samostatným WC. Místnosti jsou neprůchozí. Vytápěcí systém je elektrickými přímotopy vč. přípravy teplé vody v elektrickém zásobníku. Povrchy podlah jsou plovoucí, keramické a koberec.
Všechny okna, standardní velikosti, jsou směrovány na západní stranu do vnitrobloku s oplocenou zahradou, kam mají přístup jen obyvatelé domu. Tudíž tam nehrozí žádné nebezpečí z ulice, ani hluk. Okna jsou ve výšce cca 2 m nad zemí. Na domě proběhla částečná rekonstrukce střechy, výměna oken, vodoměrů, výmalba společných prostor. Zálohy na služby pro 2 osoby jsou 2.377 Kč, z toho fond oprav 738 Kč.
Lokalita nabízí vynikající spojení s centrem Prahy díky stanici metra a tramvaje Anděl vzdálených pouhých 800 m. Autobusová zastávka se nachází přímo v dosahu, jen 150 m od domu. Pro automobilovou dopravu je lokalita strategicky umístěna v blízkosti dálnice D5 a Pražského okruhu, což umožňuje rychlé spojení do všech směrů.
Veškerá občanská vybavenost je v docházkové vzdálenosti. Smíchov je střediskem dopravním, s vlakovým a autobusovým nádražím, i pro příměstské spoje (zastávka Na Knížecí), a střediskem obchodním s dominujícím centrem Nový Smíchov. Zimní stadion Nikolajka je vzdálen 100 m. Milovníci přírody a aktivního odpočinku si přijdou na své díky blízkým přírodním parkům Šalamounka, Měchurka a Santoška, které poskytují ideální zázemí pro procházky a sport v zeleni.
Jednotka je využívána k bydlení a dlouhodobě pronajímána. Ev. číslo: 28211. Energetický štítek: G
| Cena: | (za nemovitost) 5 290 000,- Kč |
|---|
| Dispozice bytu | 2+kk |
|---|---|
| Číslo podlaží v domě | 1 |
| Počet podlaží objektu | 6 |
| Celková podlahová plocha | 37 m² |
| Druh objektu | cihlová |
| Stav objektu | dobrý |
| Energetická třída | G - Mimořádně nehospodárná |
| Vlastnictví | osobní |
| Vybaveno | Nezařízeno |
| Užitná plocha | 37 m² |




