| Číslo zakázky: | 19536 | ![]() Karta nemovitosti |
|---|---|---|
| Typ zakázky: | prodej |
Exkluzivně nabízíme k prodeji rodinný dům 3+1 s podlahovou plochou 140 m2, s garáží, sklepem, na pozemku 760 m2, Neratovice (okres Mělník), ul. Vojtěšská. Pokud hledáte rodinné bydlení ve městě s kompletní vybaveností v blízkosti, zároveň na klidném místě, pak pro Vás máme jedinečnou nabídku pěkného rodinného domku, umístěného v rozlehlé zahradě na okraji Neratovic.
Dům je z roku 2006 a od roku 2019 je průběžně rekonstruován.
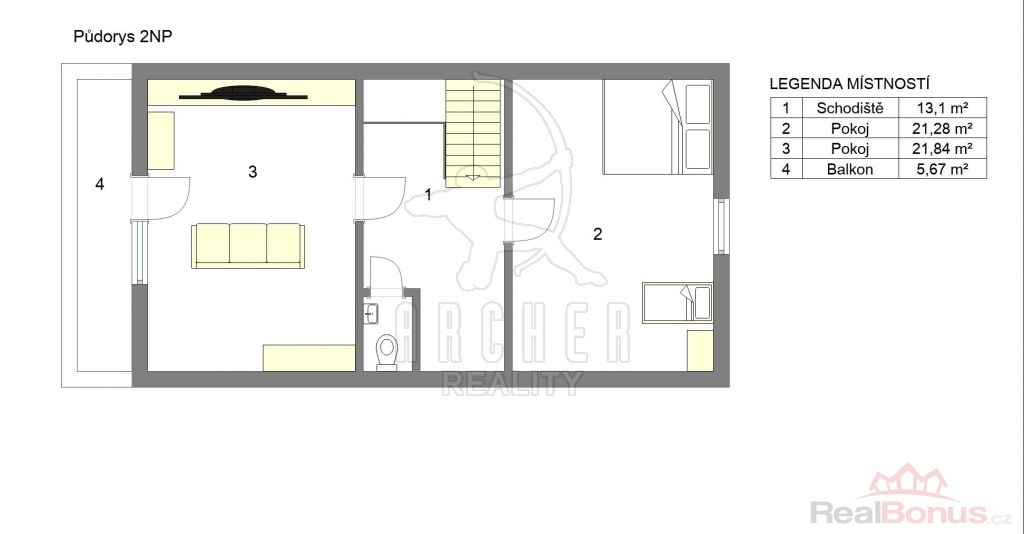
Má dvě podlaží (přízemí a obytné podkroví), menší sklípek a samostatně stojící garáž na pozemku.
V přízemí prostorná chodba, kuchyň, pokoj, který je nyní neobýván a může sloužit jako obývací pokoj, koupelna s vanou a sprchovým koutem, samostatná toaleta a spižírna.
V podkroví slunný obývací pokoj se vstupem na balkon, ložnice a WC s umyvadlem.
Dům je napojen na obecní vodovod, na pozemku také studna s užitkovou vodou. Kanalizace formou ČOV, plyn na hranici pozemku.
Vytápění zajišťuje primárně klimatizace, případně též elektrokotel či zplynovací kotel na dřevo.
Velkým benefitem je fotovoltaická elektrárna (10kWp) včetně baterie a wallbox k nabíjení elektromobilů.
V rámci rekonstrukce v roce 2019 byla provedena úprava rozvodů elektřiny, výměna dveří, kompletní rekonstrukce kuchyně. V roce 2024 pak proběhla instalace klimatizace, fotovoltaické elektrárny a wallboxu.
Dům je umístěn v pěkné rovinaté zahradě, poskytující dostatek soukromí. Na pozemku dále garáž, terasa s přístřeškem vybízející k posezení, relaxaci či grilování s přáteli nebo rodinou.
Kompletní občanská vybavenost v docházkové vzdálenosti, centrum Neratovic se všemi službami je cca 10 minut chůze či minuta autem. Autobusová zastávka s přímým spojem do Prahy 600 metrů od domu, vlaková stanice se spojením do Prahy, Mělníka, Kralup cca 1,2 km od domu.
Autem na okraj Prahy dojedete pohodlně za 15 minut.
Na tuto nemovitost Vám pomůžeme zajistit výhodné financování. Ráda se s Vámi setkám na prohlídce.
| Cena: |
(za nemovitost) 9 790 000,- Kč
(elektřina: 2000, voda: 240) (včetně provize)
|
|---|
| Počet podlaží objektu | 2 |
|---|---|
| Celková podlahová plocha | 140 m² |
| Druh objektu | cihlová |
| Stav objektu | velmi dobrý |
| Energetická třída | D - Méně úsporná |
| Vlastní pozemek | 760 m² |
| Plocha balkonu | 5 m² |
| Plocha sklepu | 4 m² |
| Vybavení | balkon |
| Umístění objektu | klidná část obce |
| Doprava | vlak |
| Rok kolaudace | 2 006 |
| Zastavěná plocha | 95 m² |
| Užitná plocha | 130 m² |
| Plocha zahrady | 620 m² |
| Komunikace | asfaltová |
| Poloha objektu | samostatný |




