| Číslo zakázky: | 06133-8 | ![]() Karta nemovitosti |
|---|---|---|
| Typ zakázky: | pronájem |
V Rezidenci Gajdošova v Brně nabízíme k pronájmu obchodní a kancelářské prostory o velikosti 145 m2. Tyto moderní prostory se nacházejí v přízemí polyfunkčního domu přímo u frekventované ulice Gajdošova, kudy denně projede přibližně 50 000 aut. Výloha zde má větší reklamní hodnotu než billboard u dálnice, což znamená, že váš byznys bude nepřehlédnutelný.
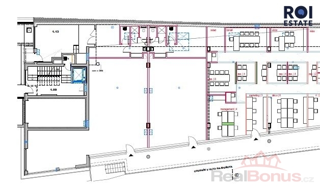
Prostor je navržen v industriálním stylu s betonovými podlahami a přiznanými stropními rozvody. Vstup je situován přímo z ulice Gajdošova, což zajišťuje maximální viditelnost a snadný přístup pro zákazníky. V zadní části je k dispozici sociální zařízení. Elektroinstalace a zásuvky jsou připraveny, takže prostor lze ihned přizpůsobit konkrétním potřebám. Díky své variabilitě se hodí pro obchod, showroom, výdejní místo, lékárnu, ateliér nebo moderní kanceláře, lékařské i zubní ordinace, jógová i jiná studia.
V tuto chvíli jsou zde 2 toalety a umyvadlo, odpady na napojení případných sprch jsou nachystány.
Lokalita nabízí vynikající dopravní dostupnost a přirozený pohyb zákazníků. Objekt se nachází na křižovatce ulic Gajdošova a Táborská v rozvíjející se části Brna. V blízkém okolí jsou zastávky městské hromadné dopravy, například tramvajové linky 8 a 9 nebo autobusové spoje 44, 55, 58, 74, 75, 78 a 84. To znamená snadnou dostupnost jak pro zákazníky, tak pro zaměstnance.
Díky výhodnému umístění lze využít nejen prostor samotný, ale také venkovní plochu k reklamním účelům, například formou světelné reklamy. Velká výloha umožňuje efektivní propagaci a osloví tisíce lidí denně.
Prostor je k dispozici ihned. Pokud hledáte místo, kde bude váš byznys opravdu vidět, domluvte si prohlídku a přijďte se přesvědčit na vlastní oči.
V prezentaci jsou použity AI vizualizace, prostory odpovídají popisu a fotografiím bez vybavení (svítidla ano).
| Cena: |
(za m2 / měsíc) 443,- Kč
(+ 10 996 Kč zálohy na energie a služby + garážové parkovací stání 1 000 Kč + vratná kauce + provize RK)
|
|---|
| Druh objektu | cihlová |
|---|---|
| Stav objektu | novostavba |
| Energetická třída | B - Velmi úsporná |
| Umístění objektu | centrum |
| Doprava | silnice MHD |
| Voda | dálkový vodovod |
| Odpad | Městská kanalizace |
| Stáří objektu | 4 |
| Počet míst k parkování | 1 |
| Ostatní | Parkoviště |
| Užitná plocha | 145 m² |
| Plocha kanceláří | 145 m² |
| Komunikace | asfaltová |
| Inženýrské sítě | Vodovod Kanalizace |
| Charakter okolní zástavby | obchodní a obytná |
| Poloha objektu | samostatný |
| Druh prostor | Kanceláře |
| K dispozici od | 01.10.2025 |
