| Číslo zakázky: | XA-279 | ![]() Karta nemovitosti |
|---|---|---|
| Typ zakázky: | pronájem |
Dobrý den, hledáte pronájem bytu v centru města? Chcete pohodlně zaparkovat a navíc bydlet v dosahu zeleně? Tyto náročnější požadavky může splnit naše nabídka. Dovolte mi, abych Vám ji blíže představil.
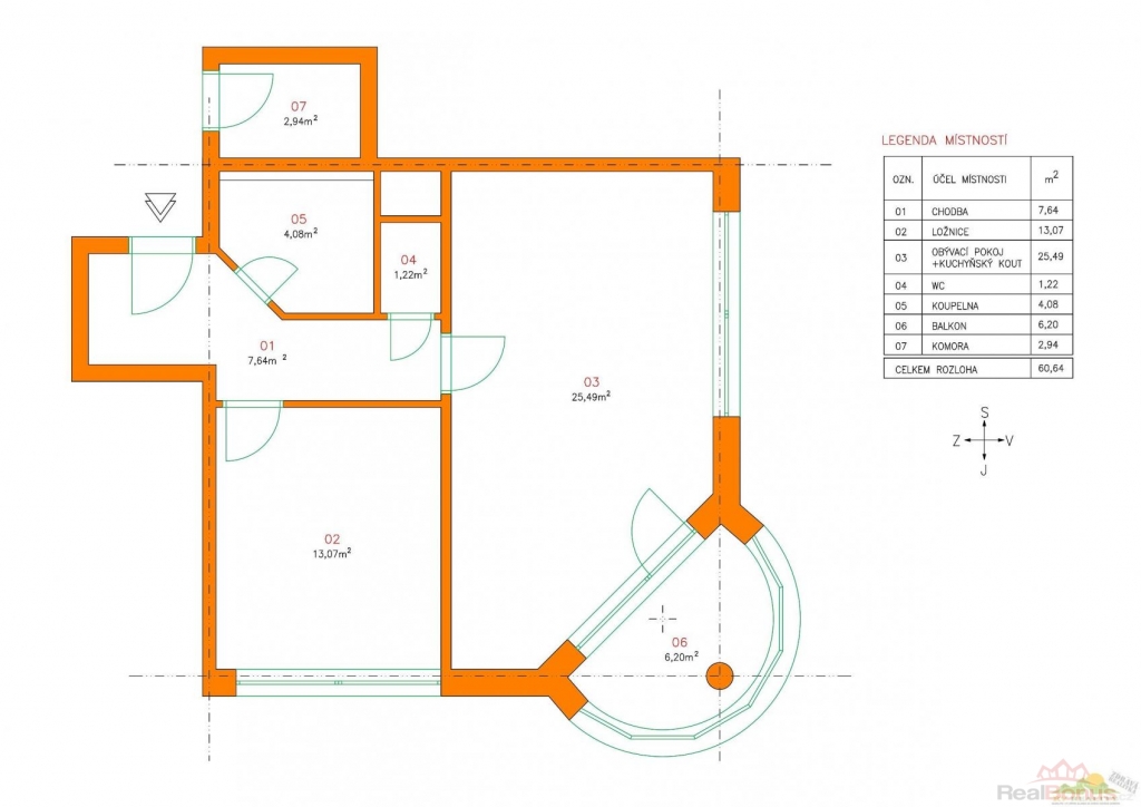
Jedná se o pronájem bytu 2+kk o celkové ploše 60,64 m2 + sklep, který se nachází v 5.NP bytového domu Poseidon. Byt nabízí zajímavou dispozici dvou obytných místností s prodloužením o prostor v dokumentaci uváděný jako balkón, ale v reálu se jedná spíše o zimní zahradu. Z pohledu užívání je velice příjemné, že komora je na chodbě hned vedle bytu. Součástí vybavení je kuchyňská linka včetně spotřebičů (lednička s mrazákem, vestavná trouba, sklokeramická varná deska, odsavač par a mikrovlnná trouba). Na chodbě je vestavěná skříň. Výše měsíčního nájmu činí 18.000,- Kč včetně garážového stání + 3.000,- Kč záloha na energie a služby. Peněžitá jistota (vratná kauce) je ve výši 42.000,- Kč a provize RK 18.000,- Kč. Volný od 1.7.2026.
Na závěr bych Vás chtěl pozvat na prohlídku bytu, aby jste mohli výše popsané posoudit i Vy sami.
Děkuji, Václav Růžička, realitní specialista.
Pronajímatel si vyhrazuje právo vybrat nájemce na základě vlastní úvahy.
| Cena: |
(za měsíc) 18 000,- Kč
(+ 3.000 Kč zálohy na energie)
|
|---|
| Dispozice bytu | 2+kk |
|---|---|
| Číslo podlaží v domě | 5 |
| Počet podlaží objektu | 10 |
| Druh objektu | cihlová |
| Stav objektu | velmi dobrý |
| Energetická třída | C - Úsporná |
| Vlastnictví | osobní |
| Druh bytu | v nájemním domě (činžovním) |
| Počet podlaží pod zemí | 1 |
| Vybavení | výtah |
| Umístění objektu | centrum |
| Vybaveno | Částečně zařízeno |
| Topení | Ústřední - dálkové |
| Celková plocha | 61 m² |
| Druh stavby | budova/y, hala/y |
| Poloha objektu | samostatný |




