
| Číslo zakázky: | 00120 | ![]() Karta nemovitosti |
|---|---|---|
| Typ zakázky: | prodej |
Hledáte ke koupi dům se dvěma bytovými jednotkami i se dvěma garážemi?
Ve výhradním zastoupení majitelů, Vám zprostředkujeme koupi domu se bytovými jednotkami 2+1 a 4+1 v ulici Jaselská č.p. 180/5A v Břeclavi.
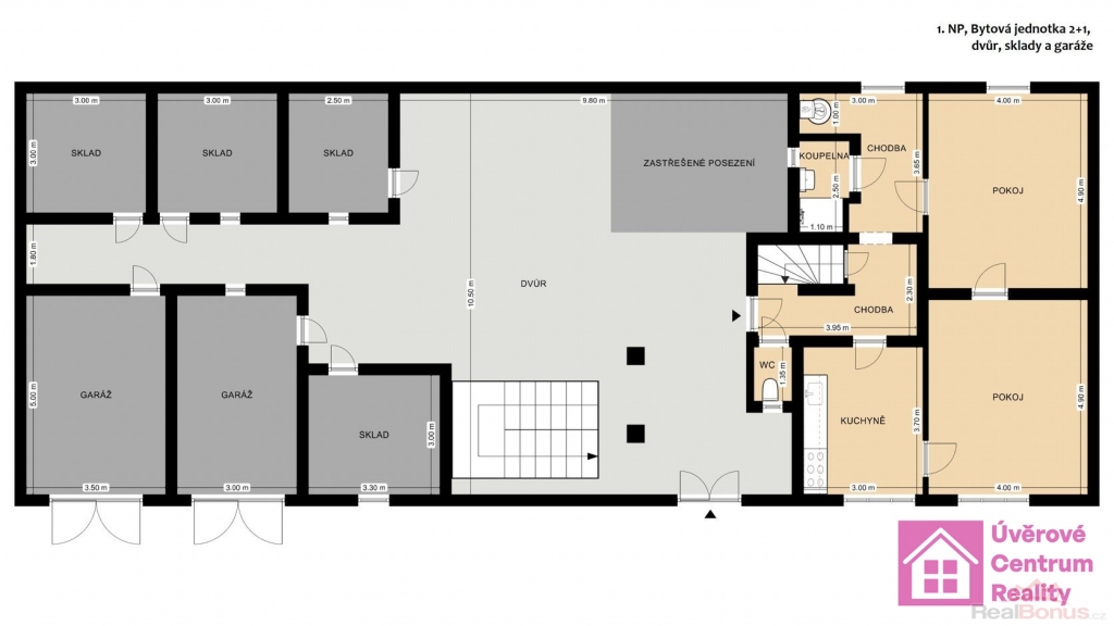
Bytová jednotka bytu 2+1 (1.nadzemní podlaží), užitná plocha bytu 67 m2 s celkovou plochou 86,70 m2.
Dispozice: předsíň, toaleta, chodba, kuchyň, dva pokoje, chodba a koupelna.
Bytová jednotka 4+1 (2.nadzemní podlaží), užitná plocha bytu 77 m2, s celkovou plochou 96 m2.
Dispozice: předsíň, technická místnost, koupelna s WC (sprchový kout), kuchyň a čtyři velké pokoje, z toho tři neprůchozí.
Půdorysy obou bytů naleznete ve fotogalerii.
Každá bytová jednotka má vlastní garáž pro osobní automobil a také zděné skladovací prostory ve dvoře. Dvůr je společný pro obě jednotky.
Ihned k dispozici.
Součástí prodejní ceny je také ? pozemku, na kterém je postavena garáž, skladovací prostory a společný dvůr.
V případě více zájemců o koupi si majitel nemovitosti vyhrazuje právo na výběr kupujícího, dle jeho požadavků.
Zaujala Vás tato nabídka? Máte zájem o prohlídku? Vám vyhovující termín prohlídky (den a čas) s kontakty na Vás (tel. číslo a e-mail) zasílejte na e-mail makléře, formou odpovědi na tuto inzerci. Realitní makléř Vás následně bude telefonicky kontaktovat.
| Cena: |
(za nemovitost) 7 800 000,- Kč
(včetně poplatků, včetně provize, včetně právního servisu)
|
|---|
| Počet podlaží objektu | 2 |
|---|---|
| Celková podlahová plocha | 182 m² |
| Druh objektu | cihlová |
| Stav objektu | dobrý |
| Energetická třída | G - Mimořádně nehospodárná |
| Umístění objektu | centrum |
| Telekomunikace | Internet |
| Topení | Ústřední - plynové |
| Doprava | vlak dálnice silnice MHD autobus |
| Voda | dálkový vodovod |
| Odpad | Městská kanalizace |
| Plyn | Zaveden |
| Parkování | garáž |
| Celková plocha | 182 m² |
| Zastavěná plocha | 209 m² |
| Plocha parcely | 304 m² |
| Ostatní | Garáž |
| Užitná plocha | 144 m² |
| Komunikace | asfaltová |
| Inženýrské sítě | Vodovod Kanalizace Plyn |
| Charakter okolní zástavby | obchodní a obytná |
| Poloha objektu | rohový |
