| Číslo zakázky: | 1032 |  Karta nemovitosti | 
|---|---|---|
| Typ zakázky: | prodej | 
V exkluzivním zastoupení majitele Vám nabízím ke koupi velmi pěkný a prostorný RD 7+kk s nádherným výhledem do zeleně v velmi žádané lokalitě Říčany, Praha východ.
Dispozice domu:
Přízemí: veliká garáž (79,13m2), místnost vhodná jako pracovna, fitness nebo sklad (27,50m2). Chodba (11,51m2).
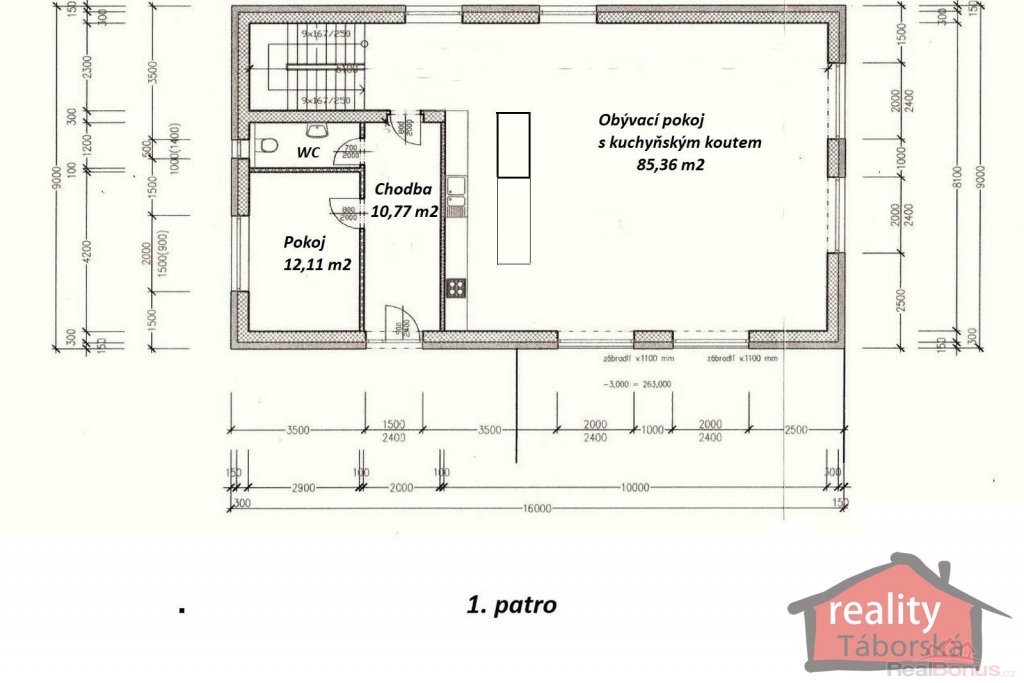
1. patro: chodba (10,77m2), obývací pokoj s kuchyňským koutem včetně spotřebičů (85,36m2), pokoj (12,11m2) a samostatná toaleta s umyvadlem (3,43m2).
2. patro: chodba (11,34m2), pokoj (21,23m2), pokoj (21,61m2), pokoj (16,54m2), pokoj (16,54m2), šatna (13,20m2), koupelna se sprch. koutem, vanou a dvěma umyvadly (8,58m2) a samostatná toaleta (1,90m2).
Celý dům je vytápěn tepelným čerpadlem - teplovodní podlahové topení.
Na podlahách je kvalitní dlažba ve vzoru dřeva, velká okna - trojskla. Dům je zateplen polystyrenem 20 cm.
Součástí domu je samostatně stojící sauna (viz foto). Příjezd k domu od hlavní komunikace je ze zámkové dlažby s bránou na dálkové ovládání, která zajišťuje jak soukromí, tak bezpečnost pro děti hrající si u domu.
Celková užitná plocha včetně garáže 340,75 m2, zastavěná plocha 137 m2, zahrada 495 m2.
Sítě zavedené do domu: veřejný vodovod, elektrika a veřejná kanalizace.
Říčany jsou opakovaně vyhlašovány jako nejlepší obec roku pro život. 
V místě je k dispozici kompletní občanská vybavenost, základní školy, gymnázium, mezinárodní školka, ordinace lékařů, nemocnice, veterina, restaurace, banky, supermarkety (Billa, Tesco, Lidl, Albert a další).  V pěším dosahu je také známé koupaliště Marvánek, tenisové kurty, fotbalové a rugbyové hřiště, zimní stadion, plavecký bazén a další. 
Ve vzdálenosti do 280m od domu jsou dvě autobusové zastávky. Do centra Prahy se pohodlně dostanete i vlakem.
Srdečně Vás spolu s majitelem zveme na prohlídku.
| Cena: | (za nemovitost)   29 300 000,- Kč (Uvedená cena je včetně provize RK a právního servisu) | 
|---|
| Číslo podlaží v domě | 1 | 
|---|---|
| Počet podlaží objektu | 3 | 
| Celková podlahová plocha | 341 m² | 
| Druh objektu | cihlová | 
| Stav objektu | velmi dobrý | 
| Energetická třída | B - Velmi úsporná | 
| Vlastní pozemek | 632 m² | 
| Vybavení | terasa | 
| Umístění objektu | klidná část obce | 
| Vybaveno | Možno zařídit | 
| Topení | Jiné | 
| Elektřina | 230 V | 
| Zastavěná plocha | 137 m² | 
| Plocha parcely | 632 m² | 
| Užitná plocha | 341 m² | 
| Plocha zahrady | 495 m² | 
| Inženýrské sítě | Vodovod Kanalizace Elektřina | 
| Druh stavby | rodinný dům, rekreační chalupa, rekreační pozemek | 
| Poloha objektu | samostatný | 





