| Číslo zakázky: | 319251067 |  Karta nemovitosti | 
|---|---|---|
| Typ zakázky: | prodej | 
Exkluzivní novostavba bytu s balkonem a nádherným výhledem ? Vavřinec u Blanska.
Hledáte domov, který kombinuje klid, soukromí, luxusní prostor a kvalitní stavbu?
Máme pro vás jedinečnou nabídku ? prostorný, slunný byt v exkluzivním viladomě v malebném Vavřinci u Blanska.
Tento cihlový dům nejvyšší kvality byl postaven s maximálním důrazem na energetickou úspornost a dlouhou životnost. Všechny stropy včetně střešní konstrukce jsou monolitické železobetonové, příčkové zdivo zděné, interiérové dveře vysoké 210 cm a po celém bytě je komfortní podlahové vytápění.
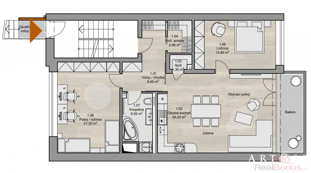
Dominantou bytu je obývací pokoj s kuchyňským koutem o rozloze 34,4 m2 s přímým vstupem na balkon (6,7 m2), odkud vás okouzlí nerušený výhled na okolní louky a lesy. Byt je navržen tak, aby poskytoval maximální ergonomii a prostor ? nechybí ani samostatná zděná spíž v kuchyni a prostorná šatna u vstupu.
Součástí prodeje je vlastní parkovací stání a sklepní kóje v suterénu domu.
Viladům je koncipován s ohledem na absolutní soukromí ? každý byt má promyšlené umístění, aby byl klid a maximální komfort .
Dispozice bytu:
Obývací pokoj s jídelnou: 34,43 m2
Ložnice: 14,85 m2
Pokoj: 21,20 m2
Koupelna: 6,05 m2
Chodba: 8,50 m2
Spíž: 1,30 m2
Balkon: 6,7 m2
Sklep: 4,60 m2
Užitná plocha bez balkonu a sklepa: 89 m2
Lokalita:
Vavřinec nabízí přímé autobusové spojení do Blanska a kouzlo bydlení v přírodě, přesto s dobrou dostupností města.
Aktuálně pracujeme na dokončení bytů, předpokládaný termín kolaudace je koncem tohoto roku. Cena je za dokončený, zkolaudovaný byt bez kuchyňské linky.
 Dopřejte si domov, který má vše, doporučuji osobní prohlídku.
Na konci fotogalerie krátký průběh stavby.
| Cena: | (za nemovitost)   7 315 000,- Kč (včetně provize) | 
|---|
| Dispozice bytu | 3+kk | 
|---|---|
| Číslo podlaží v domě | 1 | 
| Celková podlahová plocha | 89 m² | 
| Druh objektu | cihlová | 
| Stav objektu | novostavba | 
| Energetická třída | B - Velmi úsporná | 
| Vlastnictví | osobní | 
| Plocha balkonu | 7 m² | 
| Vybavení | balkon | 
| Počet míst k parkování | 1 | 
| Ostatní | Parkoviště | 
| Užitná plocha | 89 m² | 





